West End Road, Stratton, Swindon, SN3
By The House Group
£ 550,000
Reviews
3 out of 5 stars
The House Group says ..
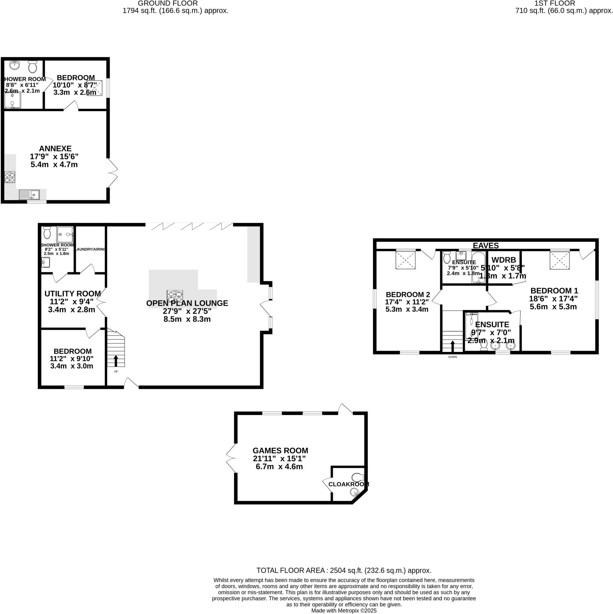
This is a stunning and completely unique home, finished to a very high standard both inside and out, with the added benefit of fully self-contained annexe. Sat on a gated plot offering plenty of privacy, the garden and patio area has been well finished and landscaped, there’s a...
Property Oracle says ..
This detached property on West End Road in Stratton, Swindon, offers four bedrooms and four bathrooms, making it suitable for a family. The house is in good condition, featuring modern interiors and a well-maintained garden with patio and lawn areas. The location provides convenient access to local amenities, schools, and transportation. While the price is above the area average, the property’s features and condition may justify the premium. The additional building in the garden could serve multiple purposes, adding to the property’s versatility. Overall, this property presents a desirable living space in a convenient location.
Therefore, we give this property 6 / 10. *Disclaimer: This is our option and does constitute a recommendation or financial advice. Do your own research. *
- Price
- 6
- Condition
- 8
- Location
- 7
- Land
- 6
- Bedrooms
- 4
- Bathrooms
- 4
The heatmap indicates the level of crime in the area. The color of the heatmap indicates the crime severity and recency.
Metrics Year-on-Year
- Average area value
- 279,444.00 £Decreased by 15.29 %
- Average area rental value
- 1,200.00 £/moDecreased by 2.83 %
- Est rental Yield
- 5.15 %Increased by 14.70 %
- Crime Rate
- 5.00 %Unchanged by 0.00 %
Agent Activity
The House Group created the listing.
Nearby Schools
| Name | Type | Ofsted | Distance |
|---|---|---|---|
| Horizons College | Special Post 16 Institution | Requires improvement | 0.63 KM |
| Grange Junior School | Academy Sponsor Led | 0.93 KM | |
| Grange Infants' School | Academy Converter | 1.12 KM | |
| Ruskin Junior School | Academy Sponsor Led | Requires improvement | 1.32 KM |
| Mountford Manor Primary School | Academy Converter | Good | 1.57 KM |
Images
Nearby Streets
| Name | Average Price | Average Sqft | Distance |
|---|---|---|---|
| Heath Way | £ 0 | 0 | 0.00 KM |
| Crampton Square | £ 370,000 | 0 | 0.00 KM |
| School Close | £ 0 | 0 | 0.00 KM |
| Colebrook Close | £ 0 | 0 | 0.00 KM |
| Stratton Road | £ 0 | 0 | 0.00 KM |
Nearby Transport
| Name | NLC | TLC | Distance |
|---|---|---|---|
| Swindon (Wilts) | 3333 | SWI | 3.61 KM |
Nearby Listings
| Address | Price | Type | Score | Distance |
|---|---|---|---|---|
| West End Road, Stratton, Swindon, SN3 | £ 550,000 | BUY | 6 / 10 | 0.00 KM |
| Days Close, Stratton St Margaret, Swindon, SN3 | £ 285,000 | BUY | 7 / 10 | 0.09 KM |
| Hardie Close, Stratton St Margaret, Swindon, SN3 | £ 311,500 | BUY | 7 / 10 | 0.10 KM |
| Hardie Close, Stratton, Swindon | £ 475,000 | BUY | 7 / 10 | 0.11 KM |
| Days Close, Stratton St. Margaret, Swindon, SN3 | £ 290,000 | BUY | Unknown | 0.11 KM |
Nearby Properties
| Address | Price | Distance |
|---|---|---|
| Fairholmes | £ 305,000 | 0.04 KM |
| 6 West End Road | £ 71,500 | 0.04 KM |
| 16 West End Road | £ 100,000 | 0.04 KM |
| 11 West End Road | £ 80,000 | 0.04 KM |
| 21 West End Road | £ 392,000 | 0.06 KM |