Highclere, Biddick Woods, Houghton-Le-Spring, Tyne & Wear, DH4
By Jill Moore Select Properties
£ 390,000
Reviews
4 out of 5 stars
Jill Moore Select Properties says ..
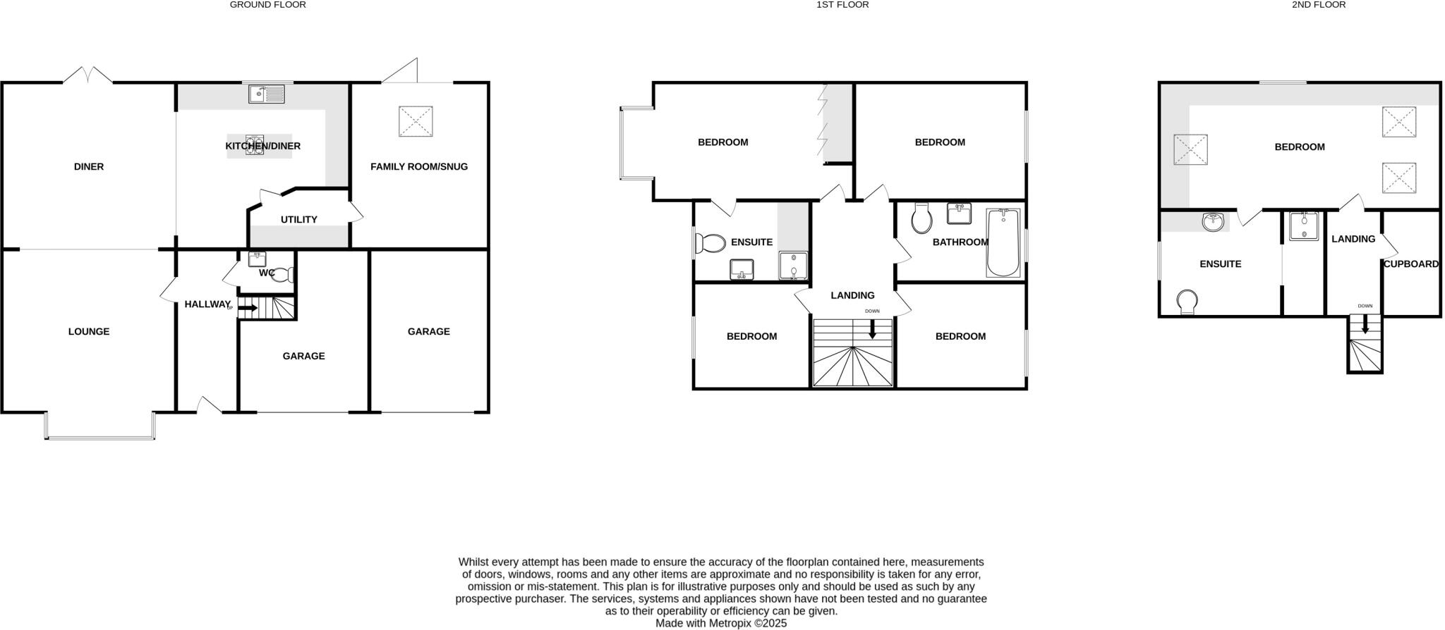
A true credit to the current owners! Jill Moore are thrilled to present this perfectly finished five bedroom detached family home, boasting two en-suite bedrooms and an open plan kitchen/diner/lounge to the sales market. Benefitting from a large private driveway with double garage and modern fini...
Property Oracle says ..
This property is a 5 bedroom detached house located in Biddick Woods, Houghton-le-Spring. The area benefits from good local schools such as Bournmoor Primary School and Barnwell Academy, both rated as “Good” by Ofsted. The property itself appears to be in excellent condition, recently modernised with a contemporary kitchen and bathrooms. There is also a good-sized rear garden with patio and lawn areas. The asking price of £390,000 is higher than the average house price in the area (£174,939), but comparable to other similar properties in the immediate vicinity. However, without knowing the square footage of the property, it is difficult to definitively assess the value for money.
Therefore, we give this property 8 / 10. *Disclaimer: This is our option and does constitute a recommendation or financial advice. Do your own research. *
- Price
- 7
- Condition
- 10
- Location
- 8
- Land
- 8
- Bedrooms
- 5
- Bathrooms
- 3
The heatmap indicates the level of crime in the area. The color of the heatmap indicates the crime severity and recency.
Metrics Year-on-Year
- Average area value
- 163,932.00 £Decreased by 14.20 %
- Average area rental value
- 598.00 £/moDecreased by 27.07 %
- Est rental Yield
- 4.38 %Decreased by 14.95 %
- Crime Rate
- 1.00 %Unchanged by 0.00 %
Agent Activity
Jill Moore Select Properties created the listing.
Nearby Schools
| Name | Type | Ofsted | Distance |
|---|---|---|---|
| Bournmoor Primary School | Community School | Good | 1.17 KM |
| Our Lady Queen Of Peace Catholic Primary School | Academy Converter | 1.44 KM | |
| Shiney Row Primary School | Community School | Good | 1.72 KM |
| Barnwell Academy | Academy Converter | Good | 1.86 KM |
| Woodlea Primary School | Community School | Good | 1.90 KM |
Images
Nearby Streets
| Name | Average Price | Average Sqft | Distance |
|---|---|---|---|
| Aspen Close | £ 0 | 0 | 0.00 KM |
| Boundary Cottages | £ 0 | 0 | 0.00 KM |
| Twizzell Burn | £ 0 | 0 | 0.00 KM |
| Whitworth Park Drive | £ 298,750 | 0 | 0.00 KM |
| Axewell Park | £ 395,000 | 0 | 0.00 KM |
Nearby Transport
| Name | NLC | TLC | Distance |
|---|---|---|---|
| Chester-Le-Street | 7736 | CLS | 7.89 KM |
Nearby Listings
| Address | Price | Type | Score | Distance |
|---|---|---|---|---|
| Highclere, Biddick Woods, Houghton-Le-Spring, Tyne & Wear, DH4 | £ 390,000 | BUY | 8 / 10 | 0.00 KM |
| Weymouth Drive, Biddick Woods, Houghton Le Spring | £ 499,950 | BUY | 8 / 10 | 0.05 KM |
| Weymouth Drive, Houghton Le Spring, Tyne and Wear, DH4 | £ 300,000 | BUY | 6 / 10 | 0.15 KM |
| Hornbeam, Shiney Row, Houghton Le Spring, DH4 | £ 280,000 | BUY | 6 / 10 | 0.26 KM |
| Weymouth Drive, Biddick Woods, Houghton le Spring, DH4 | £ 280,000 | BUY | Unknown | 0.26 KM |
Nearby Properties
| Address | Price | Distance |
|---|---|---|
| 2 Highclere | £ 220,000 | 0.05 KM |
| 8 Highclere | £ 270,000 | 0.05 KM |
| 3 Highclere | £ 215,000 | 0.05 KM |
| 8 Shummard Close | £ 385,000 | 0.14 KM |
| 8 Foxglove | £ 212,000 | 0.14 KM |