Godwin Curtis Ltd says ..
A Victorian mid-terrace property, in need of refurbishment and situated close to the city and Canterbury East railway station. The property has benefitted from good quality double glazing and a Worcester central heating boiler, but will require a full or partial rewire, full redecoration, ne (cont.)
Property Oracle says ..
This three-bedroom terraced house in Wincheap, Canterbury, presents a mixed bag of advantages and disadvantages. The property benefits from a convenient location, close to Canterbury East railway station and several well-regarded primary schools. This makes it potentially attractive to families and commuters. However, the provided photographs reveal that the property is in need of substantial modernisation. The interior décor is dated, and the rooms show signs of wear and tear requiring considerable renovation work to improve the aesthetics and functionality. The external space is also quite limited, comprising a small, overgrown garden. The overall condition needs attention. While comparable properties in the area are also in a similar price bracket, the significant renovations needed affect the overall value. A prospective buyer should factor in substantial refurbishment costs before making an offer.
Therefore, we give this property 5 / 10. *Disclaimer: This is our option and does constitute a recommendation or financial advice. Do your own research. *
- Price
- 6
- Condition
- 4
- Location
- 7
- Land
- 3
- Bedrooms
- 3
- Bathrooms
- 1
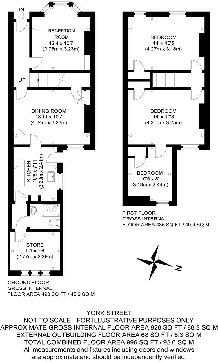
- Sqft (est)
- 996.00
The heatmap indicates the level of crime in the area. The color of the heatmap indicates the crime severity and recency.
Metrics Year-on-Year
- Average area value
- 524,167.00 £Increased by 32.74 %
- Est sale value
- 362,544.00 £Increased by 1.96 %
- Average area rental value
- 1,420.00 £/moIncreased by 24.02 %
- Est letting value
- 0.00 £/moDecreased by 100.00 %
- Est rental Yield
- 3.25 %Decreased by 6.61 %
- Crime Rate
- 9.00 %Unchanged by 0.00 %
Agent Activity
Godwin Curtis Ltd marked this listing as sold.
Godwin Curtis Ltd created the listing.
Nearby Schools
| Name | Type | Ofsted | Distance |
|---|---|---|---|
| Little Hands Children'S Centre | Children's Centre | 0.48 KM | |
| Wincheap Foundation Primary School | Foundation School | Good | 0.51 KM |
| The Orchard School | Foundation Special School | Good | 0.56 KM |
| St Nicholas' School | Community Special School | Good | 0.73 KM |
| St Peter'S Methodist Primary School | Voluntary Controlled School | Good | 0.90 KM |
Images
Nearby Streets
| Name | Average Price | Average Sqft | Distance |
|---|---|---|---|
| Victory Court | £ 0 | 0 | 0.00 KM |
| St. Mildreds Place | £ 0 | 0 | 0.00 KM |
| Rheims Way | £ 0 | 0 | 0.00 KM |
| Gas Street | £ 0 | 0 | 0.00 KM |
| Maynard Road | £ 0 | 0 | 0.00 KM |
Nearby Transport
| Name | NLC | TLC | Distance |
|---|---|---|---|
| Canterbury East | 5164 | CBE | 0.33 KM |
| Canterbury West | 5007 | CBW | 1.33 KM |
| Sturry | 5029 | STU | 6.25 KM |
| Chartham | 5008 | CRT | 6.38 KM |
| Bekesbourne | 5198 | BKS | 7.07 KM |
Nearby Listings
| Address | Price | Type | Score | Distance |
|---|---|---|---|---|
| Claremont Place, Canterbury, Kent, CT1 | £ 240,000 | BUY | 6 / 10 | 0.03 KM |
| York Road, Canterbury, Kent, CT1 | £ 200,000 | BUY | 6 / 10 | 0.04 KM |
| York Road, Canterbury | £ 325,000 | BUY | 6 / 10 | 0.05 KM |
| Martyrs Field, Canterbury | £ 260,000 | BUY | 5 / 10 | 0.09 KM |
| Martyrs Field Road, Canterbury, Kent, CT1 | £ 260,000 | BUY | 7 / 10 | 0.09 KM |
Nearby Properties
| Address | Price | Distance |
|---|---|---|
| 43 York Road | £ 255,000 | 0.03 KM |
| 52 York Road | £ 251,000 | 0.03 KM |
| 37 York Road | £ 284,000 | 0.03 KM |
| 29a York Road | £ 155,000 | 0.03 KM |
| 39 York Road | £ 246,000 | 0.03 KM |