Bradwell Road, New Bradwell, Milton Keynes, Buckinghamshire, MK13 0EJ
By Reynolds Estate And Letting Agents
£ 185,000
Reviews
2 out of 5 stars
Reynolds Estate And Letting Agents says ..
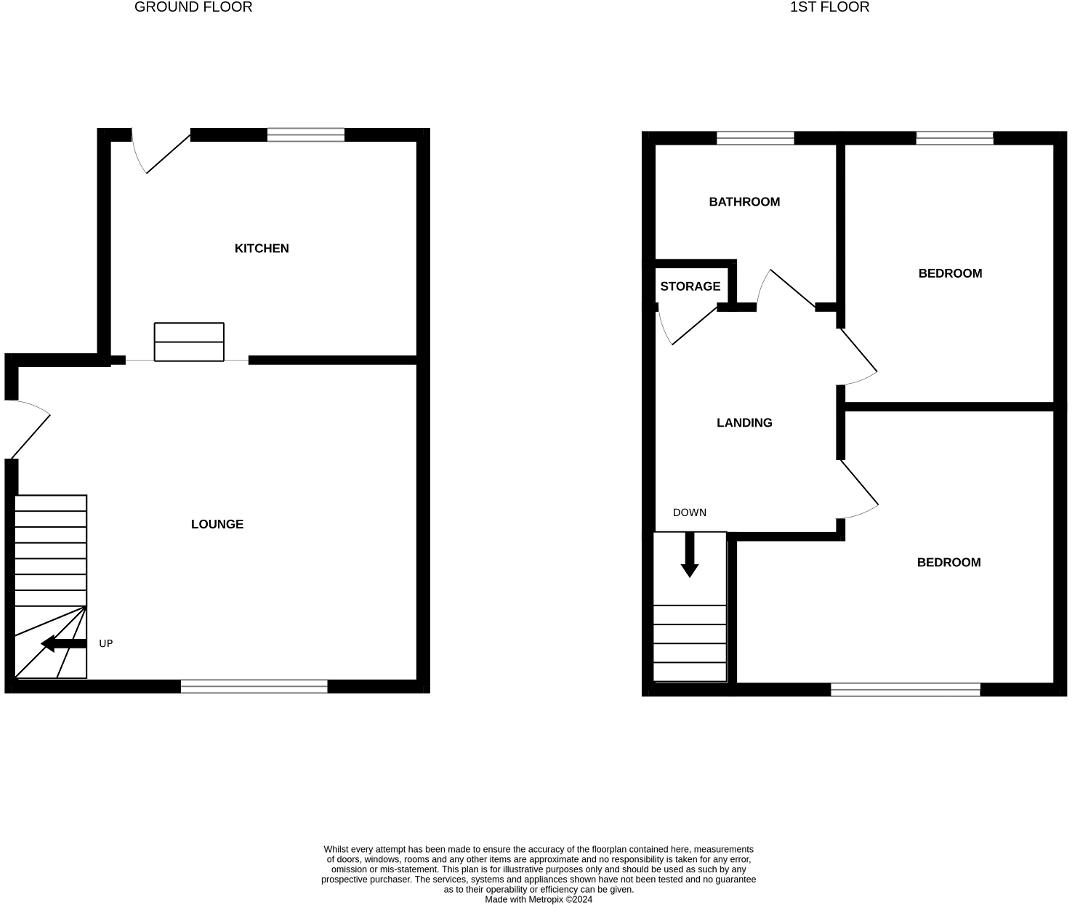
*NEW BRADWELL* *TWO DOUBLE BEDROOMS* *BATHROOM* *LARGE KITCHEN* *HIGH CEILINGS* *UPVC DOUBLE GLAZING* *WALKING DISTANCE TO WOLVERTON STATION* * GOOD PUBLIC TRANSPORT LINKS* *CLOSE TO LOCAL AMENITIES* ...
Property Oracle says ..
This two bedroom property is located in New Bradwell, Milton Keynes. The property benefits from being close to local amenities and transport links, including Wolverton Train Station approximately 1.72km away. There are also several schools within a reasonable distance, including Pepper Hill School (0.42km) and New Bradwell Primary School (0.53km). The property itself appears to be in need of some modernisation and updating. The kitchen and bathroom appear dated, and some cosmetic work may be required throughout. The property does have a small rear garden. While the list price is below the average price for the area, it is important to consider the condition of the property and the need for potential renovations when assessing value. The average price per sqft in the area is £348, and this property is listed at a lower price per sqft. However, this is likely due to the condition of the property requiring modernisation.
Therefore, we give this property 5 / 10. *Disclaimer: This is our option and does constitute a recommendation or financial advice. Do your own research. *
- Price
- 6
- Condition
- 4
- Location
- 7
- Land
- 3
- Bedrooms
- 2
- Bathrooms
- 1
- Sqft (est)
- 725.00
The heatmap indicates the level of crime in the area. The color of the heatmap indicates the crime severity and recency.
Metrics Year-on-Year
- Average area value
- 414,375.00 £Increased by 32.13 %
- Est sale value
- 485,025.00 £Increased by 124.50 %
- Average area rental value
- 1,335.00 £/moDecreased by 2.20 %
- Est letting value
- 1,450.00 £/moIncreased by 100.00 %
- Est rental Yield
- 3.87 %Decreased by 25.86 %
- Crime Rate
- 19.00 %Unchanged by 0.00 %
Agent Activity
Reynolds Estate And Letting Agents created the listing.
Nearby Schools
| Name | Type | Ofsted | Distance |
|---|---|---|---|
| Pepper Hill School | Community School | Good | 0.42 KM |
| Rainbow Children'S Centre | Children's Centre | 0.42 KM | |
| New Bradwell Primary School | Academy Converter | 0.53 KM | |
| The Windmill Children'S Centre | Children's Centre | 0.58 KM | |
| Stanton School | Foundation School | Outstanding | 1.41 KM |
Images
Nearby Streets
| Name | Average Price | Average Sqft | Distance |
|---|---|---|---|
| Glyn Street | £ 0 | 0 | 0.00 KM |
| St Peters Way | £ 180,000 | 0 | 0.00 KM |
| Brampton Court | £ 0 | 0 | 0.00 KM |
| Townsend Grove | £ 0 | 0 | 0.00 KM |
| Fairfax | £ 250,000 | 0 | 0.00 KM |
Nearby Transport
| Name | NLC | TLC | Distance |
|---|---|---|---|
| Wolverton | 1364 | WOL | 1.72 KM |
| Milton Keynes Central | 1378 | MKC | 3.76 KM |
| Bletchley | 1360 | BLY | 9.67 KM |
Nearby Listings
| Address | Price | Type | Score | Distance |
|---|---|---|---|---|
| Bradwell Road, New Bradwell, Milton Keynes, Buckinghamshire, MK13 0EJ | £ 185,000 | BUY | 5 / 10 | 0.00 KM |
| Bradwell Road, New Bradwell, Milton Keynes, Buckinghamshire, MK13 0EJ | £ 120,000 | BUY | 4 / 10 | 0.05 KM |
| Bradwell Road, New Bradwell, Milton Keynes, Buckinghamshire, MK13 0EJ | £ 225,000 | BUY | 6 / 10 | 0.05 KM |
| North Street, New Bradwell, Milton Keynes | £ 240,000 | BUY | 6 / 10 | 0.05 KM |
| Harwood Street, New Bradwell, MK13 | £ 280,000 | BUY | 6 / 10 | 0.07 KM |
Nearby Properties
| Address | Price | Distance |
|---|---|---|
| 9 Bradwell Road | £ 250,000 | 0.02 KM |
| 6 Harwood Street | £ 149,995 | 0.03 KM |
| 12 Harwood Street | £ 255,000 | 0.03 KM |
| 9 North Street | £ 177,000 | 0.05 KM |
| 1 North Street | £ 218,000 | 0.05 KM |