Belleville Drive, Oadby
By Signature Homes. Powered by eXp
£ 480,000
Reviews
3 out of 5 stars
Signature Homes. Powered by eXp says ..
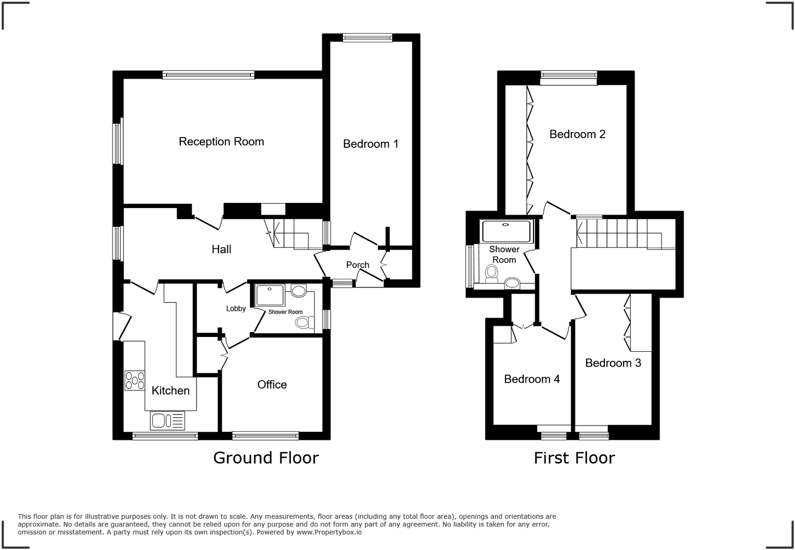
A charming 3/4 bedroom detached home ideally located upon Belleville Drive, a quiet residential road tucked away just off Launde Road in the ever popular Oadby.
Property Oracle says ..
This is a detached property in Oadby Uplands, Leicestershire, featuring four bedrooms and two bathrooms. The house spans 945 sqft and is listed for £480,000. The property includes a modern kitchen, a large garden, and is located near local schools and transportation. While generally well-maintained, some areas could use updating. The price per square foot is below the local average, but comparable sales data suggests the listing price may be slightly high.
Therefore, we give this property 7 / 10. *Disclaimer: This is our option and does constitute a recommendation or financial advice. Do your own research. *
- Price
- 6
- Condition
- 7
- Location
- 7
- Land
- 8
- Bedrooms
- 4
- Bathrooms
- 2
- Sqft (est)
- 945.00
The heatmap indicates the level of crime in the area. The color of the heatmap indicates the crime severity and recency.
Metrics Year-on-Year
- Average area value
- 366,250.00 £Decreased by 10.05 %
- Est sale value
- 574,560.00 £Increased by 87.65 %
- Average area rental value
- 1,450.00 £/moIncreased by 21.04 %
- Est letting value
- 1,890.00 £/mo
- Est rental Yield
- 4.75 %Increased by 34.56 %
- Crime Rate
- 2.00 %Unchanged by 0.00 %
Agent Activity
Signature Homes. Powered by eXp created the listing.
Nearby Schools
| Name | Type | Ofsted | Distance |
|---|---|---|---|
| Launde Primary School | Academy Converter | 0.87 KM | |
| Brookside Primary School | Academy Converter | 0.96 KM | |
| Manor High School | Academy Converter | Good | 1.12 KM |
| Beauchamp College | Academy Converter | 1.40 KM | |
| Gartree High School | Academy Converter | Outstanding | 1.43 KM |
Images
Nearby Streets
| Name | Average Price | Average Sqft | Distance |
|---|---|---|---|
| Wyndham Close | £ 0 | 0 | 0.00 KM |
| Ann's Way | £ 0 | 0 | 0.00 KM |
| Alexandra Court | £ 180,000 | 0 | 0.00 KM |
| Meadow View | £ 0 | 0 | 0.00 KM |
| Tamar Road | £ 500,000 | 0 | 0.00 KM |
Nearby Transport
| Name | NLC | TLC | Distance |
|---|---|---|---|
| Leicester | 1947 | LEI | 7.02 KM |
| South Wigston | 1949 | SWS | 7.38 KM |
Nearby Listings
| Address | Price | Type | Score | Distance |
|---|---|---|---|---|
| Belleville Drive, Oadby | £ 495,000 | BUY | 7 / 10 | 0.00 KM |
| Belleville Drive, Oadby | £ 480,000 | BUY | 7 / 10 | 0.00 KM |
| Belleville Drive, Oadby, Leicester | £ 575,000 | BUY | 6 / 10 | 0.01 KM |
| Belleville Drive, Oadby, Leicester | £ 500,000 | BUY | Unknown | 0.08 KM |
| Covert Close, Oadby, Leicester | £ 700,000 | BUY | 7 / 10 | 0.15 KM |
Nearby Properties
| Address | Price | Distance |
|---|---|---|
| 20 Belleville Drive | £ 370,000 | 0.01 KM |
| 8 Belleville Drive | £ 367,000 | 0.01 KM |
| 16 Belleville Drive | £ 312,500 | 0.01 KM |
| 17 Belleville Drive | £ 283,000 | 0.02 KM |
| 14 Belleville Drive | £ 206,000 | 0.02 KM |