Sparrow Close, Edleston, CW5
By James Du Pavey
£ 450,000
Reviews
3 out of 5 stars
James Du Pavey says ..
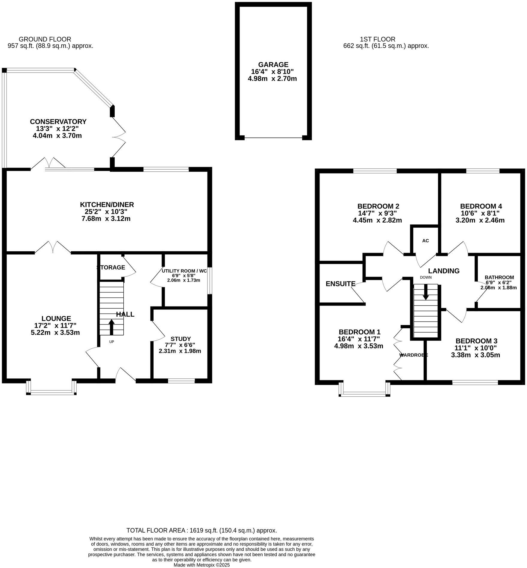
Stunning 4 bed detached house with open plan kitchen/diner, lounge with electric fire, chic study, and recently added conservatory. Master suite, landscaped garden, garage, and electric car port.
Property Oracle says ..
The property is located in Sparrow Close, Edleston, Cheshire East, which is a desirable area known for its family-friendly atmosphere and proximity to Nantwich. The nearby schools are rated as good or better, and Nantwich train station provides convenient access to other parts of the UK. The property itself appears to be in excellent condition, with modern fixtures and finishes throughout. The images show a well-maintained interior and exterior, including a landscaped garden. The plot size is 1,619 sqft, which is a decent size for a family home. Given the property’s condition, location, and amenities, the list price of £450,000 seems reasonable, although a precise determination would require a more detailed comparison to similar recently sold properties in the area.
Therefore, we give this property 7 / 10. *Disclaimer: This is our option and does constitute a recommendation or financial advice. Do your own research. *
- Price
- 7
- Condition
- 9
- Location
- 8
- Land
- 7
- Bedrooms
- 4
- Bathrooms
- 2
- Sqft (est)
- 1,429.70
- Lot (est)
- 1,619.00
The heatmap indicates the level of crime in the area. The color of the heatmap indicates the crime severity and recency.
Metrics Year-on-Year
- Average area value
- 851,250.00 £Increased by 58.60 %
- Est sale value
- 1,086,572.00 £Increased by 199.21 %
- Average area rental value
- 1,400.00 £/moIncreased by 7.78 %
- Est letting value
- 1,429.70 £/mo
- Est rental Yield
- 1.97 %Decreased by 32.07 %
- Crime Rate
- 19.00 %Unchanged by 0.00 %
Agent Activity
James Du Pavey created the listing.
Nearby Schools
| Name | Type | Ofsted | Distance |
|---|---|---|---|
| Millfields Primary School And Nursery | Community School | Good | 0.75 KM |
| Malbank School And Sixth Form College | Foundation School | Requires improvement | 1.16 KM |
| St Anne'S Catholic Primary School | Voluntary Aided School | Good | 1.42 KM |
| Nantwich Primary Academy | Academy Sponsor Led | Good | 1.77 KM |
| Nantwich And Rural Children'S Centre | Children's Centre | 1.77 KM |
Images
Nearby Streets
| Name | Average Price | Average Sqft | Distance |
|---|---|---|---|
| Nightingale Place | £ 435,000 | 0 | 0.00 KM |
| Blackberry Close | £ 0 | 0 | 0.00 KM |
| Green Lane | £ 0 | 0 | 0.00 KM |
| Tudor Way | £ 460,000 | 0 | 0.00 KM |
| Crown Mews | £ 0 | 0 | 0.00 KM |
Nearby Transport
| Name | NLC | TLC | Distance |
|---|---|---|---|
| Nantwich | 1247 | NAN | 1.63 KM |
| Wrenbury | 1350 | WRE | 8.24 KM |
Nearby Listings
| Address | Price | Type | Score | Distance |
|---|---|---|---|---|
| Sparrow Close, Edleston, CW5 | £ 450,000 | BUY | 7 / 10 | 0.00 KM |
| Sparrow Close, Edleston, Nantwich, Cheshire, CW5 | £ 51,250 | BUY | 5 / 10 | 0.07 KM |
| Hazel Way, Edleston, Nantwich | £ 565,000 | BUY | 8 / 10 | 0.07 KM |
| Hazel Way, Nantwich | £ 495,000 | BUY | 7 / 10 | 0.10 KM |
| Blossom Grove, Edleston, Nantwich, Cheshire, CW5 | £ 435,000 | BUY | 7 / 10 | 0.10 KM |
Nearby Properties
| Address | Price | Distance |
|---|---|---|
| 23 Hazel Way | £ 305,000 | 0.18 KM |
| 1 Honeysuckle Drive | £ 197,000 | 0.20 KM |
| 203 Queens Drive | £ 177,500 | 0.21 KM |
| 199 Queens Drive | £ 225,000 | 0.21 KM |
| 205 Queens Drive | £ 185,000 | 0.21 KM |