Ruskin Avenue, Acklam
By Harvey Brooks Properties Ltd
£ 225,000
Reviews
3 out of 5 stars
Harvey Brooks Properties Ltd says ..
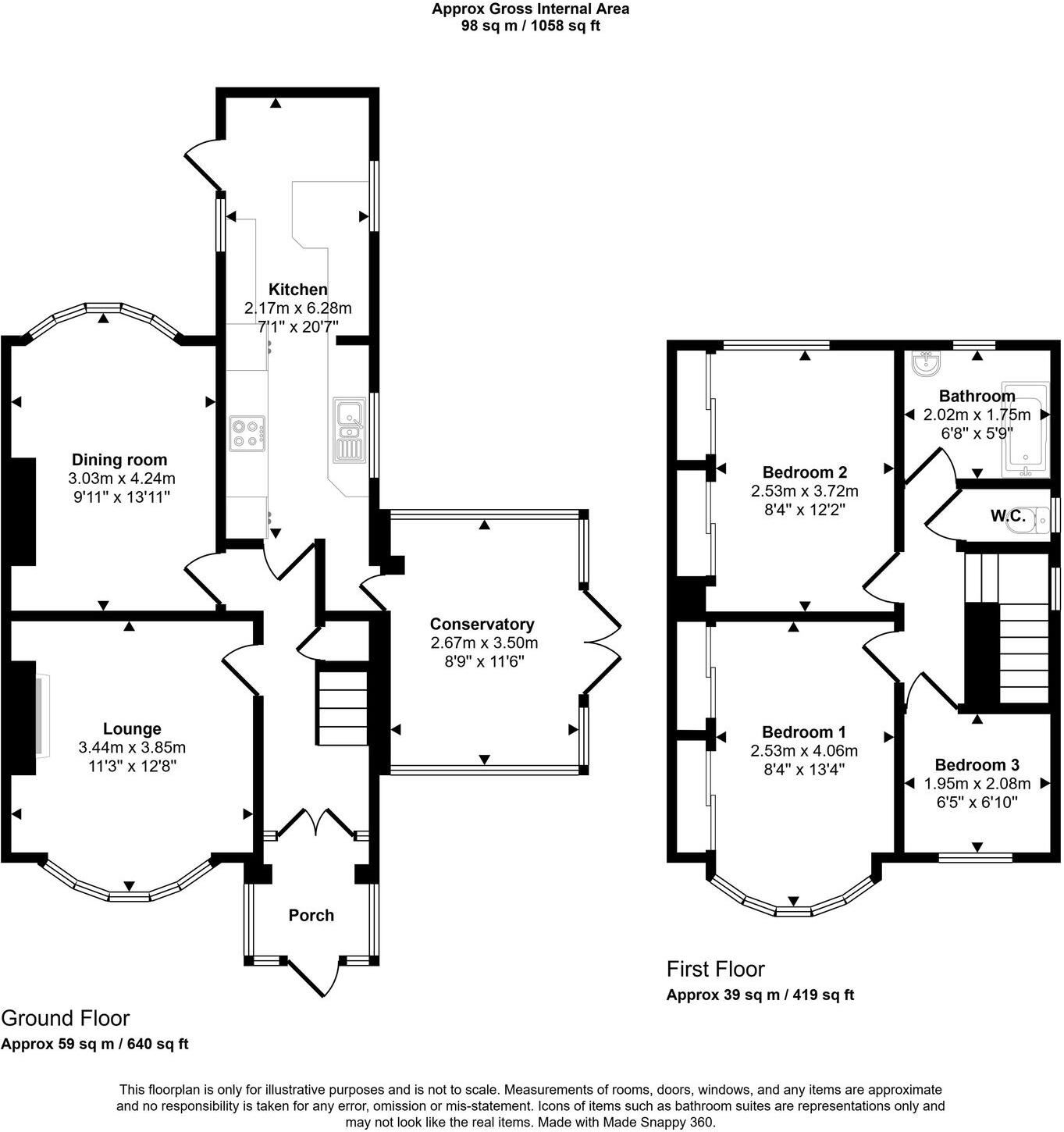
A bright and inviting family home set on a standout corner plot in one of Acklam’s popular residential areas. With two reception rooms, a conservatory, and generous gardens, this is a property that delivers space, comfort, and great potential in equal measure.
Property Oracle says ..
This is a three-bedroom semi-detached property located on Ruskin Avenue in Acklam, Middlesbrough. The property is in generally good condition, with a modern kitchen and bathroom. It has a good-sized garden and a driveway. The property is located close to schools and transportation links. The listing price of £225,000 seems reasonable, given the property’s condition and location.
Therefore, we give this property 7 / 10. *Disclaimer: This is our option and does constitute a recommendation or financial advice. Do your own research. *
- Price
- 7
- Condition
- 7
- Location
- 7
- Land
- 7
- Bedrooms
- 3
- Bathrooms
- 1
The heatmap indicates the level of crime in the area. The color of the heatmap indicates the crime severity and recency.
Metrics Year-on-Year
- Average area value
- 157,588.00 £Increased by 5.09 %
- Average area rental value
- 938.00 £/moIncreased by 7.32 %
- Est rental Yield
- 7.14 %Increased by 2.15 %
- Crime Rate
- 29.00 %Unchanged by 0.00 %
Agent Activity
Harvey Brooks Properties Ltd created the listing.
Nearby Schools
| Name | Type | Ofsted | Distance |
|---|---|---|---|
| Acklam Grange School | Academy Converter | 0.48 KM | |
| Kader Academy | Academy Converter | Good | 0.71 KM |
| Acklam Whin Primary School | Foundation School | Good | 1.08 KM |
| Whinney Banks Primary School | Community School | Good | 1.11 KM |
| West Middlesbrough Children'S Centre | Children's Centre | 1.15 KM |
Images
Nearby Streets
| Name | Average Price | Average Sqft | Distance |
|---|---|---|---|
| Ruskin Avenue | £ 246,000 | 0 | 0.00 KM |
| Grasmere Avenue | £ 0 | 0 | 0.00 KM |
| Heythrop Drive | £ 0 | 0 | 0.00 KM |
| Church Drive | £ 364,975 | 0 | 0.00 KM |
| Hall Drive | £ 316,667 | 0 | 0.00 KM |
Nearby Transport
| Name | NLC | TLC | Distance |
|---|---|---|---|
| Middlesbrough | 7929 | MBR | 4.66 KM |
| Thornaby | 7976 | TBY | 4.88 KM |
| James Cook University Hospital | 9507 | JCH | 5.69 KM |
| Marton | 7947 | MTO | 6.76 KM |
| Stockton | 7975 | STK | 7.06 KM |
Nearby Listings
| Address | Price | Type | Score | Distance |
|---|---|---|---|---|
| Ruskin Avenue, Acklam | £ 225,000 | BUY | 7 / 10 | 0.00 KM |
| Marlsford Grove, Middlesbrough, North Yorkshire, TS5 | £ 230,000 | BUY | Unknown | 0.06 KM |
| Ruskin Avenue, Acklam, Middlesbrough, TS5 8PJ | £ 230,000 | BUY | 7 / 10 | 0.07 KM |
| Marlsford Grove, Middlesbrough | £ 240,000 | BUY | 7 / 10 | 0.07 KM |
| Wordsworth Vale, Acklam | £ 215,000 | BUY | 7 / 10 | 0.12 KM |
Nearby Properties
| Address | Price | Distance |
|---|---|---|
| 20 Ruskin Avenue | £ 136,000 | 0.01 KM |
| 27 Ruskin Avenue | £ 151,000 | 0.01 KM |
| 29 Ruskin Avenue | £ 150,000 | 0.01 KM |
| 35 Ruskin Avenue | £ 249,500 | 0.01 KM |
| 18 Ruskin Avenue | £ 153,000 | 0.01 KM |