Foxtons says ..
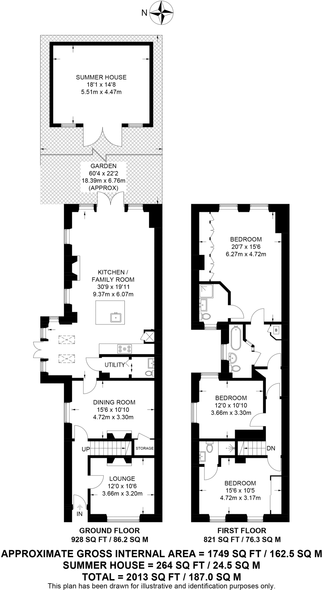
Spacious 3-double bedroom family home which has been extended to accommodate a large open plan kitchen with island, as well 2 reception rooms, 3 bathrooms and a sunny rear garden with summer house.
Property Oracle says ..
This 3-bedroom, 3-bathroom semi-detached house in Pinkneys Green, Maidenhead, offers a blend of desirable features and areas needing attention. The property’s location in Pinkneys Green is a major advantage, providing a tranquil suburban setting with access to green spaces and good schools like Courthouse Junior School and Newlands Girls’ School (both within approximately 2km). The proximity to several train stations, though not extremely close, offers reasonable commuting options.
The internal layout appears spacious, especially the extended kitchen/living area, which seems well-designed. However, the provided images reveal that some rooms would benefit from modernization and redecoration. The current décor and furnishings seem dated in some areas and may need updating to enhance the overall appeal and market value. This could include refreshing the living room spaces, which appear cluttered in the photographs.
The garden seems adequate in size, providing outdoor space for relaxation and entertainment. The presence of multiple sheds is a plus for extra storage. However, a precise plot size is missing which makes it impossible to gauge the exact extent of outdoor space. Overall, this property presents a promising investment opportunity for buyers who are willing to potentially invest in upgrades to fully realize its potential. The current asking price appears relatively competitive within the local market, but a more detailed comparison would depend on having precise square footage measurements for the similar properties which were given in the data provided. In the context of the presented information the price seems reasonable.
Therefore, we give this property 6 / 10. *Disclaimer: This is our option and does constitute a recommendation or financial advice. Do your own research. *
- Price
- 7
- Condition
- 6
- Location
- 7
- Land
- 5
- Bedrooms
- 3
- Bathrooms
- 3
- Sqft (est)
- 2,012.85
The heatmap indicates the level of crime in the area. The color of the heatmap indicates the crime severity and recency.
Metrics Year-on-Year
- Average area value
- 208,333.00 £Decreased by 17.92 %
- Est sale value
- 772,934.40 £Increased by 51.78 %
- Average area rental value
- 806.00 £/moDecreased by 15.34 %
- Est letting value
- 2,012.85 £/mo
- Est rental Yield
- 4.64 %Increased by 3.11 %
- Crime Rate
- 7.00 %Unchanged by 0.00 %
Agent Activity
Foxtons created the listing.
Nearby Schools
| Name | Type | Ofsted | Distance |
|---|---|---|---|
| Courthouse Junior School | Community School | Good | 1.83 KM |
| Newlands Girls' School | Academy Converter | Outstanding | 1.87 KM |
| Alwyn Infant School | Community School | Good | 2.00 KM |
| Furze Platt Senior School | Academy Converter | Good | 2.27 KM |
| Furze Platt Infant School | Community School | Good | 2.35 KM |
Images
Nearby Streets
| Name | Average Price | Average Sqft | Distance |
|---|---|---|---|
| Arlington Close | £ 625,000 | 0 | 0.00 KM |
| A404(M) | £ 600,000 | 0 | 0.00 KM |
| Berkeley Close | £ 0 | 0 | 0.00 KM |
| Arundel Close | £ 595,000 | 0 | 0.00 KM |
| Tavistock Close | £ 650,000 | 0 | 0.00 KM |
Nearby Transport
| Name | NLC | TLC | Distance |
|---|---|---|---|
| Marlow | 3021 | MLW | 3.62 KM |
| Furze Platt | 3144 | FZP | 3.65 KM |
| Cookham | 3019 | COO | 4.77 KM |
| Maidenhead | 3147 | MAI | 4.80 KM |
| Bourne End | 3018 | BNE | 7.02 KM |
Nearby Listings
| Address | Price | Type | Score | Distance |
|---|---|---|---|---|
| Pinkneys Green, Maidenhead, SL6 | £ 875,000 | BUY | 6 / 10 | 0.00 KM |
| Golden Ball Lane, Maidenhead, Berkshire, SL6 | £ 625,000 | BUY | 7 / 10 | 0.15 KM |
| Golden Ball Lane, Pinkneys Green, Maidenhead, Berkshire, SL6 | £ 565,000 | BUY | 7 / 10 | 0.17 KM |
| Golden Ball Lane, Maidenhead, SL6 | £ 650,000 | BUY | 7 / 10 | 0.17 KM |
| Pinkneys Green | £ 630,000 | BUY | 7 / 10 | 0.17 KM |
Nearby Properties
| Address | Price | Distance |
|---|---|---|
| Dene Cottage | £ 778,000 | 0.04 KM |
| Little Holme | £ 130,000 | 0.04 KM |
| Park Cottage | £ 471,000 | 0.04 KM |
| 49 Golden Ball Lane | £ 415,000 | 0.17 KM |
| 17 Golden Ball Lane | £ 290,000 | 0.17 KM |