Development Opportunity, Swallows Nest, Troutbeck, LA23 1PN
By Matthews Benjamin
£ 199,950
Reviews
3 out of 5 stars
Matthews Benjamin says ..
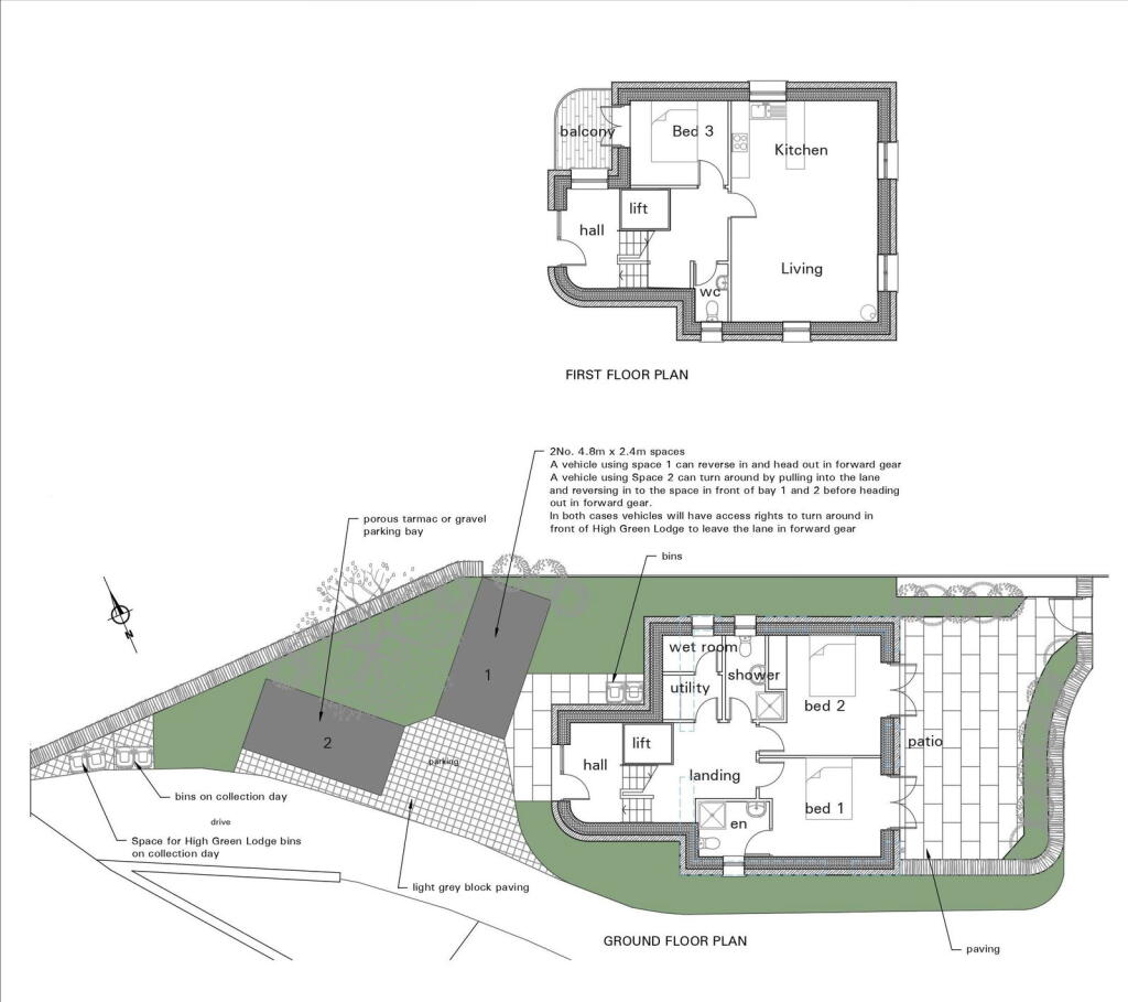
An exciting development opportunity to convert and extend an existing detached garage into a unique Lakeland home enjoying a splendid position in the desirable Troutbeck village with views of the Lakeland Fells and Troutbeck Valley. Troutbeck is a highly sought after and attract...
Property Oracle says ..
The property, located in Troutbeck, presents a unique opportunity for development. Currently, it appears to be a stone-built garage or outbuilding requiring significant renovation to transform it into a habitable dwelling. Architectural plans suggest a proposed renovation, offering a glimpse of the property’s potential. The location is desirable, being situated in the Lake District, offering a blend of rural charm and accessibility, with Windermere and its rail links approximately 5km away. The property includes some land, providing space for a garden or landscaping. Priced at £199,950, it is below the average property price in the area, reflecting the work required. This property offers potential value for money for those willing to undertake a renovation project in a sought-after location.
Therefore, we give this property 6 / 10. *Disclaimer: This is our option and does constitute a recommendation or financial advice. Do your own research. *
- Price
- 8
- Condition
- 4
- Location
- 7
- Land
- 6
- Bedrooms
- 3
- Bathrooms
- 2
- Sqft (est)
- 850.00
The heatmap indicates the level of crime in the area. The color of the heatmap indicates the crime severity and recency.
Metrics Year-on-Year
- Average area value
- 603,889.00 £Increased by 40.02 %
- Est sale value
- 425,000.00 £Increased by 46.63 %
- Average area rental value
- 1,340.00 £/moIncreased by 1.44 %
- Est letting value
- 850.00 £/moUnchanged by 0.00 %
- Est rental Yield
- 2.66 %Decreased by 27.72 %
- Crime Rate
- 277.00 %Unchanged by 0.00 %
Agent Activity
Matthews Benjamin created the listing.
Nearby Schools
| Name | Type | Ofsted | Distance |
|---|---|---|---|
| The Lakes School | Community School | Good | 4.00 KM |
| Windermere School | Other Independent School | 4.81 KM | |
| St Martin & St Mary Church Of England Primary School | Voluntary Aided School | Good | 5.84 KM |
| St Cuthberts Catholic Primary School, Windermere | Academy Converter | 5.88 KM | |
| Goodly Dale Primary School | Community School | Good | 6.13 KM |
Images
Nearby Streets
| Name | Average Price | Average Sqft | Distance |
|---|---|---|---|
| Townhead Brow | £ 0 | 0 | 0.00 KM |
| Stonethwaite Cottages | £ 0 | 0 | 0.00 KM |
| Low Gate | £ 0 | 0 | 0.00 KM |
| Robin Lane | £ 0 | 0 | 0.00 KM |
Nearby Transport
| Name | NLC | TLC | Distance |
|---|---|---|---|
| Windermere | 1978 | WDM | 5.08 KM |
Nearby Listings
| Address | Price | Type | Score | Distance |
|---|---|---|---|---|
| Development Opportunity, Swallows Nest, Troutbeck, LA23 1PN | £ 199,950 | BUY | 6 / 10 | 0.00 KM |
| High Green Lodge, Troutbeck, Cumbria LA23 1PN | £ 475,000 | BUY | 7 / 10 | 0.00 KM |
| The Curious Orange, Troutbeck, Windermere, Cumbria LA23 1PN | £ 525,000 | BUY | 6 / 10 | 0.10 KM |
| Thornthwaite Cottage, Town Head, Troutbeck, Windermere, LA23 1PP | £ 850,000 | BUY | 7 / 10 | 0.36 KM |
| 2 Orchard Mount, Troutbeck, Windermere, The Lake District, LA23 1PJ | £ 950,000 | BUY | 7 / 10 | 0.70 KM |
Nearby Properties
| Address | Price | Distance |
|---|---|---|
| Thornthwaite Barn | £ 375,000 | 0.40 KM |
| Gara Garth | £ 907,500 | 0.40 KM |
| 3 Hogarth Cottages | £ 45,000 | 0.62 KM |
| 1 Orchard Mount | £ 455,000 | 0.63 KM |
| 1 Birkhead Cottages | £ 344,000 | 0.98 KM |