Buttershaw Lane, Bradford, BD6
Robert Watts logo

Buttershaw Lane, Bradford, BD6

By Robert Watts

£ 375,000

Reviews

3 out of 5 stars

Robert Watts says ..

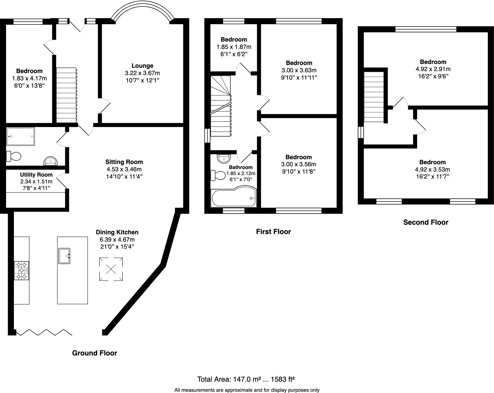
** SUPERB SEMI DETACHED ** FIVE/SIX BEDROOMS ** EXCELLENT RECENTLY COMPLETED SIDE AND REAR EXTENSION ** STUNNING THROUGHOUT ** NO EXPENSE HAS BEEN SPARED ** . Viewing is strongly advised for this SEMI DETACHED property which has undergone a refurbishment and now briefly comprises: entrance hallwa...

Property Oracle says ..

This is a semi-detached property located on Buttershaw Lane, Bradford. It features 5 bedrooms and 1 bathroom. The property has been modernised to a high standard, with a contemporary kitchen and stylish bathrooms. While the square footage is not listed, the images suggest a spacious interior. The property benefits from a garden, although it requires some landscaping. Nearby amenities include schools and transportation links. The property is listed with Robert Watts estate agents for £375,000. The average price in the area is £856,250, but nearby listings suggest a range of property types and prices. Overall, this property offers a modern living space in a convenient location, making it an attractive option for families.

Therefore, we give this property 7 / 10. *Disclaimer: This is our option and does constitute a recommendation or financial advice. Do your own research. *

Price
7
Condition
9
Location
7
Land
6
Bedrooms
5
Bathrooms
1

The heatmap indicates the level of crime in the area. The color of the heatmap indicates the crime severity and recency.

Metrics Year-on-Year

Average area value
856,250.00 £
Increased by 15.74 %
from 739,779.00 £
Average area rental value
2,000.00 £/mo
Decreased by 15.25 %
from 2,360.00 £/mo
Est rental Yield
2.80 %
Decreased by 26.89 %
from 3.83 %
Crime Rate
3.00 %
Unchanged by 0.00 %
from 3.00 %

Agent Activity

  • Robert Watts created the listing.

Nearby Schools

NameTypeOfstedDistance
St Paul'S Cofe Primary SchoolVoluntary Aided SchoolGood0.36 KM
Broadbeck Learning CentreOther Independent Special SchoolGood0.37 KM
St Winefride'S Catholic Primary School, A Voluntary AcademyAcademy ConverterGood0.56 KM
Wibsey Primary SchoolCommunity SchoolGood0.88 KM
Woodside Children'S CentreChildren's Centre0.89 KM

Images

Utility Bedroom Lounge Picture No. 35 Kitchen Lounge Kitchen Open Plan Area Bathroom Hall Picture No. 36 Bedroom Open Plan Area Dining Bedroom House Kitchen Open Plan Area Ensuite Ensuite Bedroom Bedroom Bedroom Bedroom Bedroom Bedroom Bedroom Rear Rear Bedroom Hall Lounge Bedroom Landing Utility Bedroom Landing Rear Front Title Plan Google Maps Image

Nearby Streets

NameAverage PriceAverage SqftDistance
Brearcliffe Road £ 000.00 KM
Church Lane £ 000.00 KM
Slack Bottom Road £ 135,00000.00 KM
Somerville Avenue £ 325,00000.00 KM
Ormond Road £ 119,97500.00 KM

Nearby Transport

NameNLCTLCDistance
Low Moor8416LMR3.23 KM
Bradford Interchange8345BDI4.74 KM
Bradford Forster Square8346BDQ4.98 KM
Frizinghall8556FZH6.69 KM
Brighouse8514BGH7.02 KM

Nearby Listings

AddressPriceTypeScoreDistance
Buttershaw Lane, Bradford, BD6 £ 375,000BUY7 / 100.00 KM
Buttershaw Lane, Wibsey, Bradford, BD6 £ 359,995BUY7 / 100.00 KM
Ivy Terrace, Wibsey, Bradford £ 140,000BUY6 / 100.03 KM
Brearcliffe Drive, Bradford, BD6 2LE £ 250,000BUY6 / 100.16 KM
Cemetery Road, Buttershaw, Bradford, BD6 £ 290,000BUY7 / 100.17 KM

Nearby Properties

AddressPriceDistance
6 Buttershaw Lane £ 60,0000.01 KM
19 Buttershaw Lane £ 118,0000.01 KM
18 Ivy Terrace £ 95,0000.02 KM
17 Ivy Terrace £ 112,0000.02 KM
20 Ivy Terrace £ 95,0000.02 KM