Clyde Crescent, Upminster, RM14
By Accord Sales & Lettings
£ 500,000
Reviews
3 out of 5 stars
Accord Sales & Lettings says ..
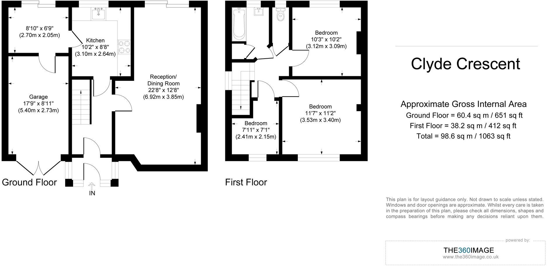
This three-bedroom semi-detached home on Clyde Crescent is offered with no onward chain and has recently been updated with a new kitchen, bathroom and central heating system.
Property Oracle says ..
This end-of-terrace property is located in Cranham, Upminster, offering a blend of suburban living with convenient access to London. The property benefits from a modern kitchen and bathroom, suggesting recent updates. While the exterior could use some cosmetic improvements, the interior is well-maintained. The property includes a garden, providing valuable outdoor space. The location is favorable, with proximity to schools and transportation links. The asking price of £500,000 is slightly above the average for the area, but this is balanced by the property’s condition and desirable features.
Therefore, we give this property 6 / 10. *Disclaimer: This is our option and does constitute a recommendation or financial advice. Do your own research. *
- Price
- 6
- Condition
- 7
- Location
- 7
- Land
- 7
- Bedrooms
- 3
- Bathrooms
- 1
The heatmap indicates the level of crime in the area. The color of the heatmap indicates the crime severity and recency.
Metrics Year-on-Year
- Average area value
- 430,989.00 £Increased by 6.80 %
- Average area rental value
- 1,439.00 £/moIncreased by 15.21 %
- Est rental Yield
- 4.01 %Increased by 8.09 %
- Crime Rate
- 18.00 %Unchanged by 0.00 %
Agent Activity
Accord Sales & Lettings created the listing.
Nearby Schools
| Name | Type | Ofsted | Distance |
|---|---|---|---|
| Engayne Primary School | Community School | Good | 0.30 KM |
| Hall Mead School | Academy Converter | Outstanding | 1.00 KM |
| The James Oglethorpe Primary School | Community School | Good | 1.61 KM |
| The Coopers' Company And Coborn School | Academy Converter | Good | 1.81 KM |
| Upminster Junior School | Academy Converter | Good | 2.56 KM |
Images
Nearby Streets
| Name | Average Price | Average Sqft | Distance |
|---|---|---|---|
| Marlborough Close | £ 608,333 | 0 | 0.00 KM |
| Tees Close | £ 0 | 0 | 0.00 KM |
| Hall Lane | £ 0 | 0 | 0.00 KM |
| Masefield Drive | £ 0 | 0 | 0.00 KM |
| The Chase | £ 0 | 0 | 0.00 KM |
Nearby Transport
| Name | NLC | TLC | Distance |
|---|---|---|---|
| Upminster | 7464 | UPM | 2.30 KM |
| Harold Wood | 6879 | HRO | 4.60 KM |
| Emerson Park | 7473 | EMP | 5.32 KM |
| Brentwood | 6872 | BRE | 5.92 KM |
| Ockendon | 7451 | OCK | 5.94 KM |
Nearby Listings
| Address | Price | Type | Score | Distance |
|---|---|---|---|---|
| Clyde Crescent, Upminster, RM14 | £ 500,000 | BUY | 6 / 10 | 0.00 KM |
| Front Lane, Cranham, Essex | £ 450,000 | BUY | 6 / 10 | 0.07 KM |
| Gadsden Close, Upminster, RM14 | £ 250,000 | BUY | Unknown | 0.13 KM |
| Kennet Close, Upminster, RM14 | £ 475,000 | BUY | 7 / 10 | 0.13 KM |
| Isis Drive, Upminster, RM14 | £ 475,000 | BUY | 6 / 10 | 0.14 KM |
Nearby Properties
| Address | Price | Distance |
|---|---|---|
| 74 Clyde Crescent | £ 220,000 | 0.02 KM |
| 20 Clyde Crescent | £ 222,000 | 0.02 KM |
| 28 Clyde Crescent | £ 237,000 | 0.02 KM |
| 22 Clyde Crescent | £ 510,000 | 0.02 KM |
| 18 Clyde Crescent | £ 405,000 | 0.02 KM |