DE
Bramwell Close, Lower Sunbury, TW16
By Devenports
£ 799,950
Reviews
3 out of 5 stars
Devenports says ..
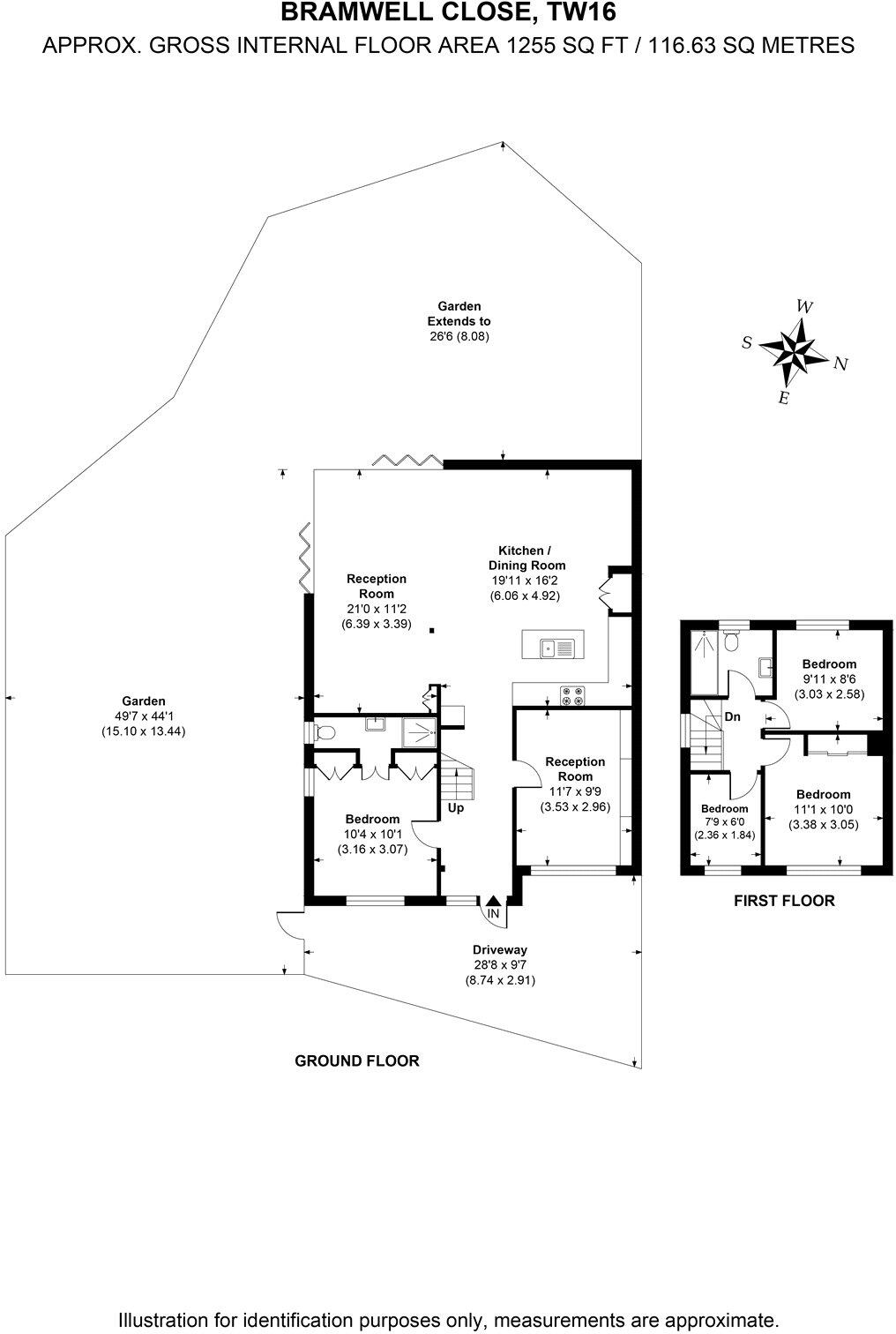
“Sure to go down a storm is this standout, four double bedroom end of terrace townhouse occupying a large corner plot in a seriously sought-after part of Lower Sunbury”. – James Owner Devenports This extended house is sure to be a hit with families looking for the env...
Property Oracle says ..
Therefore, we give this property 7 / 10. *Disclaimer: This is our option and does constitute a recommendation or financial advice. Do your own research. *
- Price
- 7
- Condition
- 8
- Location
- 7
- Land
- 7
- Bedrooms
- 4
- Bathrooms
- 2
- Sqft (est)
- 1,255.00
- Lot (est)
- 2,183.00
The heatmap indicates the level of crime in the area. The color of the heatmap indicates the crime severity and recency.
Metrics Year-on-Year
- Average area value
- 679,929.00 £Decreased by 2.36 %
- Est sale value
- 778,100.00 £Decreased by 3.28 %
- Average area rental value
- 2,750.00 £/moIncreased by 2.61 %
- Est letting value
- 2,510.00 £/moUnchanged by 0.00 %
- Est rental Yield
- 4.85 %Increased by 4.98 %
- Crime Rate
- 1.00 %Unchanged by 0.00 %
from 696,391.00 £
from 804,455.00 £
from 2,680.00 £/mo
from 2,510.00 £/mo
from 4.62 %
from 1.00 %
Agent Activity
Devenports created the listing.
Nearby Schools
| Name | Type | Ofsted | Distance |
|---|---|---|---|
| Beauclerc Infant And Nursery School | Community School | Good | 0.56 KM |
| Chennestone Primary School | Community School | Good | 0.87 KM |
| Lindon Bennett School | Community Special School | Good | 1.69 KM |
| St Paul'S Catholic College | Voluntary Aided School | Outstanding | 1.83 KM |
| St Richard'S Church Of England Primary School | Academy Converter | 1.97 KM |
Images
Nearby Streets
| Name | Average Price | Average Sqft | Distance |
|---|---|---|---|
| The Markway | £ 260,000 | 0 | 0.00 KM |
| Church Street | £ 0 | 0 | 0.00 KM |
| Orchard Road | £ 0 | 0 | 0.00 KM |
| Poppins Close | £ 0 | 0 | 0.00 KM |
| Birch Road | £ 0 | 0 | 0.00 KM |
Nearby Transport
| Name | NLC | TLC | Distance |
|---|---|---|---|
| Kempton Park Racecourse | 5678 | KMP | 1.59 KM |
| Sunbury | 5608 | SUU | 2.27 KM |
| Hampton | 5560 | HMP | 2.88 KM |
| Upper Halliford | 5613 | UPH | 3.64 KM |
| Hersham | 5590 | HER | 4.10 KM |
Nearby Listings
| Address | Price | Type | Score | Distance |
|---|---|---|---|---|
| Bramwell Close, Lower Sunbury, TW16 | £ 799,950 | BUY | 7 / 10 | 0.00 KM |
| Staines Road East, Sunbury-On-Thames | £ 1,300,000 | BUY | 6 / 10 | 0.13 KM |
| Staines Road East, Sunbury-On-Thames | £ 1,150,000 | BUY | 5 / 10 | 0.14 KM |
| Bramwell Close, Lower Sunbury, TW16 | £ 700,000 | BUY | 6 / 10 | 0.17 KM |
| Bramwell Close, Sunbury-On-Thames | £ 799,950 | BUY | Unknown | 0.17 KM |
Nearby Properties
| Address | Price | Distance |
|---|---|---|
| 45 Oakington Drive | £ 375,000 | 0.10 KM |
| 41 Oakington Drive | £ 420,000 | 0.10 KM |
| 33 Oakington Drive | £ 610,000 | 0.10 KM |
| 35 Oakington Drive | £ 570,000 | 0.10 KM |
| 49 Oakington Drive | £ 435,000 | 0.10 KM |