RE
Long Beam Road, Sandbach, Cheshire, CW11
By Redwing
£ 97,500
Reviews
3 out of 5 stars
Redwing says ..
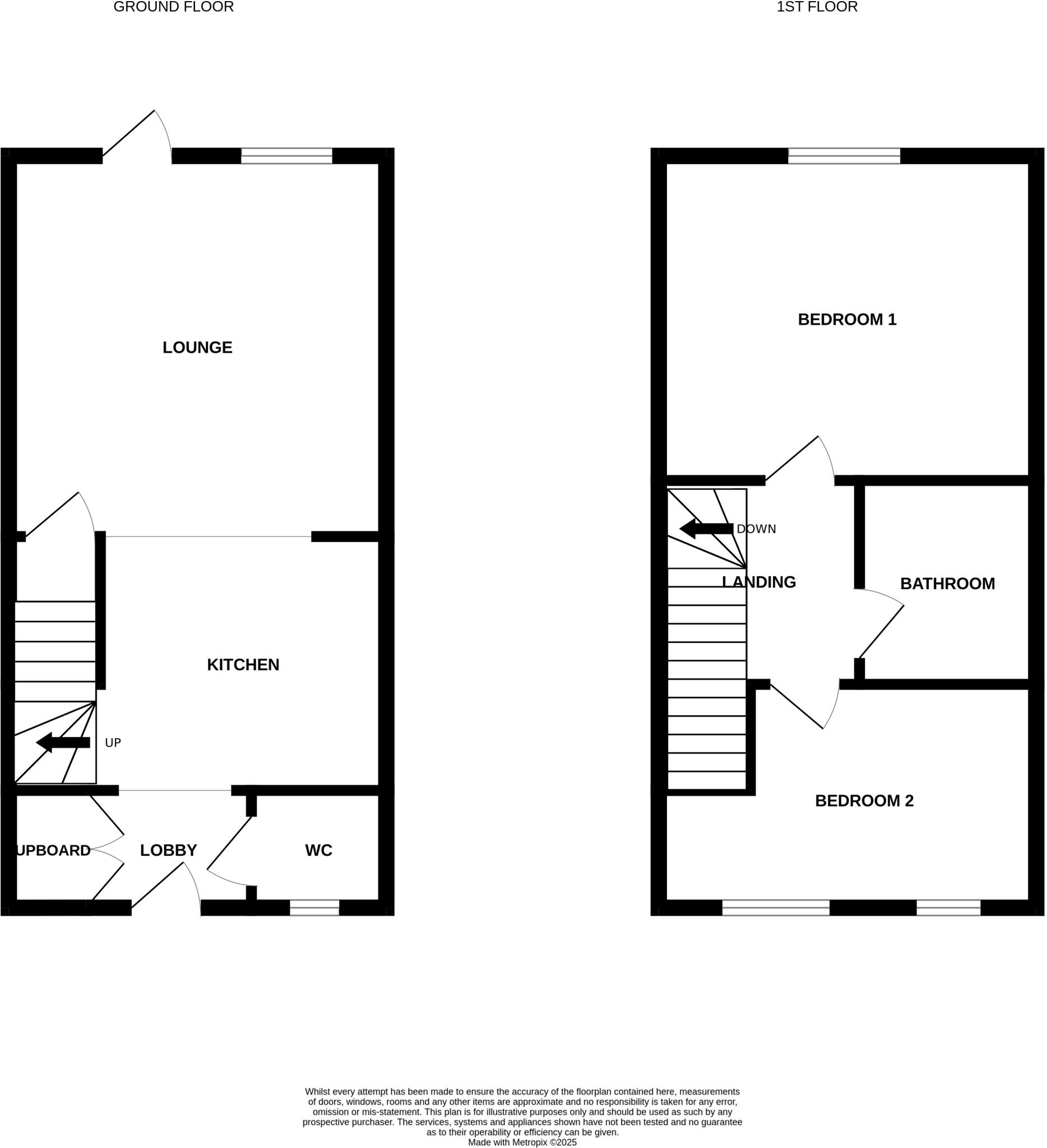
Redwing are delighted to offer for sale this well presented two-bedroom semi-detached. Sought after residential development. Tastefully presented and providing bright well-planned accommodation comprising, an entrance lobby, cloakroom / WC, an open plan lounge with access out onto the rear garden...
Property Oracle says ..
Therefore, we give this property 7 / 10. *Disclaimer: This is our option and does constitute a recommendation or financial advice. Do your own research. *
- Price
- 9
- Condition
- 8
- Location
- 7
- Land
- 6
- Bedrooms
- 2
- Bathrooms
- 2
- Sqft (est)
- 710.00
The heatmap indicates the level of crime in the area. The color of the heatmap indicates the crime severity and recency.
Metrics Year-on-Year
- Average area value
- 246,667.00 £Increased by 6.08 %
- Est sale value
- 204,480.00 £Increased by 10.77 %
- Average area rental value
- 1,000.00 £/moDecreased by 7.41 %
- Est letting value
- 710.00 £/moUnchanged by 0.00 %
- Est rental Yield
- 4.86 %Decreased by 12.75 %
- Crime Rate
- 10.00 %Unchanged by 0.00 %
from 232,521.00 £
from 184,600.00 £
from 1,080.00 £/mo
from 710.00 £/mo
from 5.57 %
from 10.00 %
Agent Activity
Redwing created the listing.
Nearby Schools
| Name | Type | Ofsted | Distance |
|---|---|---|---|
| Offley Primary Academy | Academy Converter | Good | 0.27 KM |
| Sandbach Children'S Centre | Children's Centre | 1.27 KM | |
| Sandbach School | Free Schools | Good | 1.31 KM |
| Sandbach Primary Academy | Academy Converter | Good | 1.32 KM |
| Sandbach High School And Sixth Form College | Academy Converter | 1.34 KM |
Images
Nearby Streets
| Name | Average Price | Average Sqft | Distance |
|---|---|---|---|
| Sutton Place | £ 450,000 | 0 | 0.00 KM |
| The Willows | £ 0 | 0 | 0.00 KM |
| Plant Street | £ 400,000 | 0 | 0.00 KM |
| Commons Mill | £ 0 | 0 | 0.00 KM |
| Robin Close | £ 0 | 0 | 0.00 KM |
Nearby Transport
| Name | NLC | TLC | Distance |
|---|---|---|---|
| Sandbach | 1261 | SDB | 3.37 KM |
| Holmes Chapel | 1221 | HCH | 5.41 KM |
| Goostrey | 1220 | GTR | 8.85 KM |
| Alsager | 1223 | ASG | 9.64 KM |
Nearby Listings
| Address | Price | Type | Score | Distance |
|---|---|---|---|---|
| Long Beam Road, Sandbach, Cheshire, CW11 | £ 97,500 | BUY | 7 / 10 | 0.00 KM |
| Long Beam Road, Sandbach, CW11 | £ 110,000 | BUY | 7 / 10 | 0.02 KM |
| Mellors Field Close, Sandbach | £ 207,750 | BUY | Unknown | 0.03 KM |
| Mellors Field Close, Sandbach | £ 500,000 | BUY | 7 / 10 | 0.06 KM |
| Pipers Hollow, Sandbach | £ 351,750 | BUY | 7 / 10 | 0.06 KM |
Nearby Properties
| Address | Price | Distance |
|---|---|---|
| 32 Mellors Field Close | £ 72,800 | 0.07 KM |
| 142 Congleton Road | £ 775,000 | 0.35 KM |
| 146 Congleton Road | £ 780,000 | 0.35 KM |
| 44 Elgan Crescent | £ 235,000 | 0.35 KM |
| 18 Twemlow Avenue | £ 270,000 | 0.36 KM |