Lushington Road, Kensal Rise (Borders), NW10
WE

Lushington Road, Kensal Rise (Borders), NW10

By Wenlock & Taylor

£ 699,950

Reviews

3 out of 5 stars

Wenlock & Taylor says ..

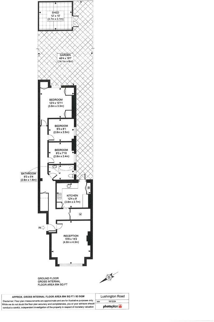
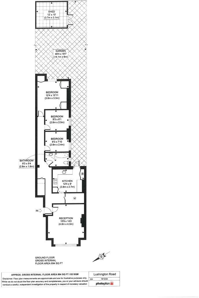
This substantial 894 sq.ft (83 sq.m) approx Ground Floor converted Flat comprises 3 bedrooms (one with fitted wardrobes), 16ft reception with period style fireplace, modern fitted eat-in kitchen, bathroom/wc and 45ft southeast facing rear garden. The flat is offered with no upper chain and has la...

Property Oracle says ..

This three-bedroom ground floor flat in Kensal Rise, NW10, offers a compelling blend of space, location, and outdoor amenity. The property’s notable feature is its substantial 45ft southeast-facing rear garden, which is rare and valuable in London. The interior is presented in a reasonable condition, with a recently updated kitchen. However, some areas, such as the dated decor in various rooms, may require cosmetic improvements to match contemporary standards. The property’s location in Kensal Rise benefits from proximity to good schools, and several transport links including the Overground and Underground. Given the scarcity of similar properties with extensive gardens in this area, the list price seems relatively reasonable, although a definitive price-per-square-foot analysis is hampered by missing data from some nearby listings. Overall, it represents a decent buy for a family or professional looking for spacious accommodation and a garden, within a convenient location, but would benefit from some interior updating.

Therefore, we give this property 6 / 10. *Disclaimer: This is our option and does constitute a recommendation or financial advice. Do your own research. *

Price
7
Condition
6
Location
7
Land
7
Bedrooms
3
Bathrooms
1
Sqft (est)
893.40

The heatmap indicates the level of crime in the area. The color of the heatmap indicates the crime severity and recency.

Metrics Year-on-Year

Average area value
745,000.00 £
Decreased by 11.71 %
from 843,775.00 £
Est sale value
683,451.00 £
Decreased by 15.09 %
from 804,953.40 £
Average area rental value
2,378.00 £/mo
Increased by 14.49 %
from 2,077.00 £/mo
Est letting value
1,786.80 £/mo
Unchanged by 0.00 %
from 1,786.80 £/mo
Est rental Yield
3.83 %
Increased by 29.83 %
from 2.95 %
Crime Rate
2.00 %
Unchanged by 0.00 %
from 2.00 %

Agent Activity

  • Wenlock & Taylor created the listing.

Nearby Schools

NameTypeOfstedDistance
Kenmont Primary SchoolCommunity SchoolGood0.44 KM
Treetops Children'S CentreChildren's Centre0.46 KM
Capital City AcademyAcademy Sponsor LedGood0.47 KM
Furness Primary SchoolAcademy ConverterGood0.62 KM
College Green School And ServicesLocal Authority Nursery SchoolOutstanding0.66 KM

Images

07-66c2GCWT - GFF 37 Lushington Road - Exterior -O 05-ebef15-c8cdGCWT - GFF 37 Lushington Road - Rece 04-6f8414-d859GCWT - GFF 37 Lushington Road - Rece 10-ded9GCWT - GFF 37 Lushington Road - Kitchen 3 - 09-5e80GCWT - GFF 37 Lushington Road - Kitchen 2 - 11-3555GCWT - GFF 37 Lushington Road - Kitchen -Or 06-864fGCWT - GFF 37 Lushington Road - Bedroom -Or 03-534fGCWT - GFF 37 Lushington Road - Bedroom 3 - 04-44a3GCWT - GFF 37 Lushington Road - Bedroom 4 - 02-8058GCWT - GFF 37 Lushington Road - Bedroom 2 - 05-2003GCWT - GFF 37 Lushington Road - Bedroom 5 - 01-d65bGCWT - GFF 37 Lushington Road - Batrhoom -O 01-5e1204-174dextras GCWT - GFF 37 Lushington Road 08-0dbcGCWT - GFF 37 Lushington Road - Garden -Ori 12-af34GCWT - GFF 37 Lushington Road - Rear -Origi

Nearby Streets

NameAverage PriceAverage SqftDistance
Wrottesley Road £ 000.00 KM
Wrottesley Road £ 000.00 KM
Wrottesley Road £ 000.00 KM
Wrottesley Road £ 000.00 KM
Wrottesley Road £ 000.00 KM

Nearby Transport

NameNLCTLCDistance
Kensal Green1447KNL1.05 KM
Willesden Junction1457WIJ1.27 KM
Kensal Rise1448KNR1.49 KM
Brondesbury Park1438BSP2.65 KM
Harlesden1521HDN2.69 KM

Nearby Listings

AddressPriceTypeScoreDistance
Lushington Road, Kensal Rise (Borders), NW10 £ 699,950BUY6 / 100.00 KM
Holland Road, Kensal, London £ 665,000BUY8 / 100.06 KM
Lushington Road, London NW10 £ 600,000BUY5 / 100.10 KM
Holland Road, Kensal Rise, NW10 £ 500,000BUYUnknown0.10 KM
Lushington Road, Kensal Green, London NW10 £ 750,000BUY8 / 100.10 KM

Nearby Properties

AddressPriceDistance
21 Lushington Road £ 59,9500.07 KM
44 All Souls Avenue £ 1,000,0000.08 KM
38 All Souls Avenue £ 980,0000.08 KM
28a Holland Road £ 685,0000.08 KM
42 Holland Road £ 1,097,0000.08 KM