Irlams says ..
A beautifully presented two bedroom first floor apartment for the over 55's forming part of the Grade II listed Barclay Hall with stunning views over landscaped formal gardens.
Property Oracle says ..
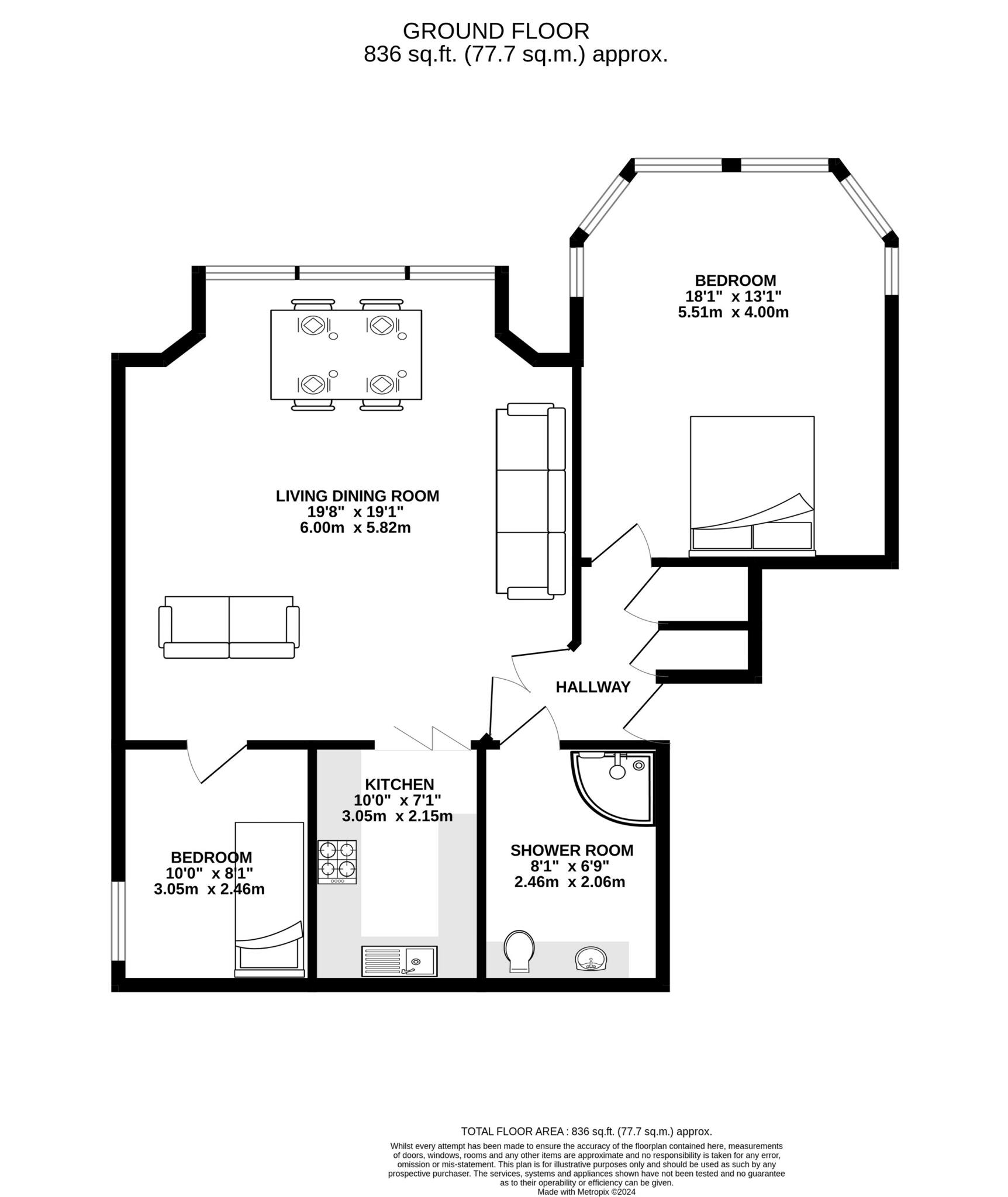
This property is a two-bedroom, one-bathroom apartment situated within the Grade II listed Barclay Hall in Mobberley, Cheshire. The apartment is part of a retirement development for those over 55. The provided photographs showcase a well-maintained interior with a modern bathroom. The apartment benefits from access to extensive communal gardens which are well-landscaped. The development is located in a desirable village setting with good access to primary schools. Mobberley train station is relatively nearby. The apartment itself is within the range of similar listed properties in the area however lacks any private outdoor space. Whilst presented well, the apartment feels somewhat generic and lacking any individual character. The location is a strong point for buyers prioritizing convenient access to amenities and good schools. Overall, it’s a suitable property for those seeking a comfortable retirement option in a convenient and prestigious setting; however, buyers should be aware that this is a retirement apartment without a private garden and potentially lacking in character.
Therefore, we give this property 5 / 10. *Disclaimer: This is our option and does constitute a recommendation or financial advice. Do your own research. *
- Price
- 7
- Condition
- 6
- Location
- 7
- Land
- 2
- Bedrooms
- 2
- Bathrooms
- 1
- Sqft (est)
- 836.36
The heatmap indicates the level of crime in the area. The color of the heatmap indicates the crime severity and recency.
Metrics Year-on-Year
- Average area value
- 607,999.00 £Decreased by 19.74 %
- Est sale value
- 356,289.36 £Decreased by 8.58 %
- Average area rental value
- 1,708.00 £/moDecreased by 59.57 %
- Est letting value
- 836.36 £/moDecreased by 50.00 %
- Est rental Yield
- 3.37 %Decreased by 49.63 %
- Crime Rate
- 0.00 %
Agent Activity
Irlams created the listing.
Nearby Schools
| Name | Type | Ofsted | Distance |
|---|---|---|---|
| Mobberley Cofe Primary School | Voluntary Controlled School | Outstanding | 1.31 KM |
| The David Lewis Centre | Special Post 16 Institution | Outstanding | 3.68 KM |
| David Lewis School | Non-maintained Special School | Good | 3.68 KM |
| Chelford Cofe Primary School | Voluntary Controlled School | Good | 5.10 KM |
| Lindow Community Primary School | Community School | Good | 5.18 KM |
Images
Nearby Streets
| Name | Average Price | Average Sqft | Distance |
|---|---|---|---|
| Warford Park | £ 0 | 0 | 0.00 KM |
Nearby Transport
| Name | NLC | TLC | Distance |
|---|---|---|---|
| Mobberley | 2849 | MOB | 3.64 KM |
| Chelford (Cheshire) | 2764 | CEL | 5.57 KM |
| Ashley | 2850 | ASY | 6.17 KM |
| Manchester Airport | 2961 | MIA | 6.60 KM |
| Alderley Edge | 2760 | ALD | 7.55 KM |
Nearby Listings
| Address | Price | Type | Score | Distance |
|---|---|---|---|---|
| Hall Lane, Mobberley | £ 185,000 | BUY | 7 / 10 | 0.00 KM |
| Hall Lane, Mobberley | £ 199,000 | BUY | 5 / 10 | 0.00 KM |
| Barclay Hall, Hall Lane, Mobberley | £ 240,000 | BUY | 7 / 10 | 0.03 KM |
| Barclay Hall, Hall Lane, Mobberley | £ 220,000 | BUY | 7 / 10 | 0.30 KM |
| Spring Gardens, Stubbs Lane, Knutsford, WA16 7LE. | £ 450,000 | BUY | 8 / 10 | 0.31 KM |
Nearby Properties
| Address | Price | Distance |
|---|---|---|
| Pine Tree Cottage | £ 1,370,000 | 0.35 KM |
| Tanda Tula | £ 600,000 | 0.35 KM |
| Pump Cottage | £ 515,000 | 0.36 KM |
| Rose Cottage | £ 687,000 | 0.54 KM |
| Bramerton | £ 895,000 | 0.59 KM |