Fieldside Road, Birkenhead, Merseyside
By The Asset Brokers Ltd
£ 200,000
Reviews
2 out of 5 stars
The Asset Brokers Ltd says ..
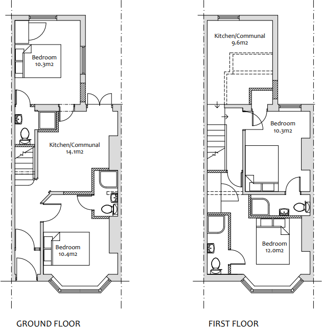
The Asset Brokers are pleased to present this high yielding 4 bed HMO in Birkenhead. Offering a gross income of £23,748 and a gross yield of 11.87% this is a fantastic investment opportunity.
Property Oracle says ..
This four-bedroom, four-bathroom property located on Fieldside Road in Rock Ferry, Birkenhead, presents itself as a potentially good investment opportunity. Its proximity to Rock Ferry train station and several highly-rated primary schools adds to its appeal, particularly to families or those seeking easy access to public transportation. The interior appears adequately maintained, though some rooms may benefit from a deep clean and minor updates. The most notable drawback is the absence of any garden or outdoor space, as indicated by the 0.00 SQFT plot size. This should be considered by prospective buyers looking for additional space. Comparable properties in the area show a range of prices, making the £200,000 asking price seem to fall within the market range for properties of this type in this location, though without detailed square footage information for comparables, a more precise price-per-square-foot comparison cannot be made. Potential buyers should conduct their own comprehensive investigation into the property and the local market before making an offer.
Therefore, we give this property 5 / 10. *Disclaimer: This is our option and does constitute a recommendation or financial advice. Do your own research. *
- Price
- 7
- Condition
- 6
- Location
- 7
- Land
- 1
- Bedrooms
- 4
- Bathrooms
- 4
- Sqft (est)
- 499.45
The heatmap indicates the level of crime in the area. The color of the heatmap indicates the crime severity and recency.
Metrics Year-on-Year
- Average area value
- 248,333.00 £Increased by 73.97 %
- Est sale value
- 102,387.25 £Increased by 22.02 %
- Average area rental value
- 733.00 £/moIncreased by 10.39 %
- Est letting value
- 0.00 £/mo
- Est rental Yield
- 3.54 %Decreased by 36.56 %
- Crime Rate
- 7.00 %Unchanged by 0.00 %
Agent Activity
The Asset Brokers Ltd created the listing.
Nearby Schools
| Name | Type | Ofsted | Distance |
|---|---|---|---|
| Well Lane Primary School | Community School | Good | 0.50 KM |
| Rock Ferry Primary School | Community School | Good | 0.74 KM |
| Rock Ferry Children'S Centre | Children's Centre | 0.78 KM | |
| St Anne'S Catholic Primary School | Voluntary Aided School | Good | 0.86 KM |
| Bedford Drive Primary School | Community School | Good | 0.87 KM |
Images
Nearby Streets
| Name | Average Price | Average Sqft | Distance |
|---|---|---|---|
| Meadow Lane | £ 0 | 0 | 0.00 KM |
| Well Lane | £ 0 | 0 | 0.00 KM |
| Shakespeare Avenue | £ 0 | 0 | 0.00 KM |
| Richardson Road | £ 130,000 | 0 | 0.00 KM |
| Victoria Park Road | £ 0 | 0 | 0.00 KM |
Nearby Transport
| Name | NLC | TLC | Distance |
|---|---|---|---|
| Rock Ferry | 2189 | RFY | 0.63 KM |
| Green Lane | 2218 | GNL | 1.27 KM |
| Birkenhead Central | 2217 | BKC | 1.89 KM |
| Bebington | 2188 | BEB | 2.12 KM |
| Conway Park | 3624 | CNP | 2.49 KM |
Nearby Listings
| Address | Price | Type | Score | Distance |
|---|---|---|---|---|
| Fieldside Road, Birkenhead, Merseyside | £ 200,000 | BUY | 5 / 10 | 0.00 KM |
| Old Chester Road, Birkenhead, Merseyside, CH423XF | £ 135,000 | BUY | 7 / 10 | 0.01 KM |
| Old Chester Road, Birkenhead, Wirral | £ 130,000 | BUY | 5 / 10 | 0.05 KM |
| Old Chester Road, Birkenhead | £ 145,000 | BUY | 7 / 10 | 0.06 KM |
| Clarke Avenue, Birkenhead, CH42 | £ 110,000 | BUY | 6 / 10 | 0.09 KM |
Nearby Properties
| Address | Price | Distance |
|---|---|---|
| 57 Fieldside Road | £ 112,750 | 0.01 KM |
| 45 Fieldside Road | £ 95,000 | 0.01 KM |
| 19 Fieldside Road | £ 125,250 | 0.01 KM |
| 41 Fieldside Road | £ 205,000 | 0.01 KM |
| 35 Fieldside Road | £ 17,500 | 0.01 KM |