AB
Verdala Park, Calderstones, Liverpool, L18
By Abode
£ 215,000
Reviews
3 out of 5 stars
Abode says ..
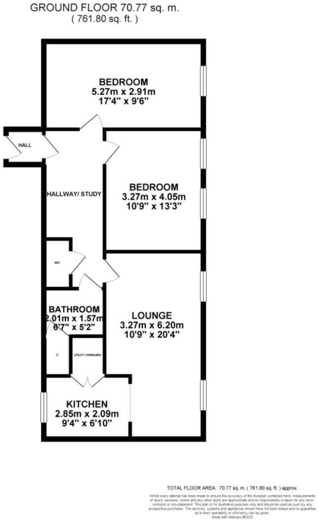
Nestled in the extremely desirable Verdala Park area of Calderstones, Liverpool, this truly stunning top floor apartment offers a perfect blend of modern living and serene surroundings. Just a stone's throw from the picturesque Calderstones Park, residents can enjoy the beauty of nature right on ...
Property Oracle says ..
Therefore, we give this property 6 / 10. *Disclaimer: This is our option and does constitute a recommendation or financial advice. Do your own research. *
- Price
- 7
- Condition
- 8
- Location
- 7
- Land
- 3
- Bedrooms
- 2
- Bathrooms
- 1
- Sqft (est)
- 623.77
The heatmap indicates the level of crime in the area. The color of the heatmap indicates the crime severity and recency.
Metrics Year-on-Year
- Average area value
- 261,363.00 £Decreased by 17.32 %
- Est sale value
- 220,814.58 £Increased by 53.25 %
- Average area rental value
- 1,055.00 £/moDecreased by 3.56 %
- Est letting value
- 623.77 £/mo
- Est rental Yield
- 4.84 %Increased by 16.63 %
- Crime Rate
- 3.00 %Unchanged by 0.00 %
from 316,116.00 £
from 144,090.87 £
from 1,094.00 £/mo
from 0.00 £/mo
from 4.15 %
from 3.00 %
Agent Activity
Abode created the listing.
Nearby Schools
| Name | Type | Ofsted | Distance |
|---|---|---|---|
| Calderstones School | Community School | Requires improvement | 0.91 KM |
| Carleton House Preparartory School | Other Independent School | 1.06 KM | |
| Booker Avenue Junior School | Community School | Good | 1.14 KM |
| Booker Avenue Infant School | Community School | Outstanding | 1.14 KM |
| Our Lady'S Bishop Eton Catholic Primary School | Voluntary Aided School | Outstanding | 1.41 KM |
Images
Nearby Streets
| Name | Average Price | Average Sqft | Distance |
|---|---|---|---|
| Fawley Road | £ 712,500 | 0 | 0.00 KM |
| Keswick Road | £ 0 | 0 | 0.00 KM |
| Burnham Road | £ 551,667 | 0 | 0.00 KM |
| Cedar Close | £ 1,700,000 | 0 | 0.00 KM |
| Yewtree Road | £ 804,444 | 0 | 0.00 KM |
Nearby Transport
| Name | NLC | TLC | Distance |
|---|---|---|---|
| West Allerton | 2266 | WSA | 1.34 KM |
| Mossley Hill | 2171 | MSH | 2.06 KM |
| Liverpool South Parkway | 9709 | LPY | 2.22 KM |
| Cressington | 2225 | CSG | 2.54 KM |
| Broad Green | 2240 | BGE | 3.40 KM |
Nearby Listings
| Address | Price | Type | Score | Distance |
|---|---|---|---|---|
| Verdala Park, Calderstones, Liverpool, L18 | £ 215,000 | BUY | 6 / 10 | 0.00 KM |
| Verdala Park, Mossley Hill, L18 | £ 160,000 | BUY | 5 / 10 | 0.01 KM |
| Verdala Park, Calderstones, Liverpool, L18 | £ 200,000 | BUY | 6 / 10 | 0.07 KM |
| Verdala Park, Liverpool | £ 215,000 | BUY | 6 / 10 | 0.07 KM |
| Glenathol Road, Liverpool, Merseyside, L18 | £ 800,000 | BUY | Unknown | 0.07 KM |
Nearby Properties
| Address | Price | Distance |
|---|---|---|
| 62 Verdala Park | £ 110,000 | 0.07 KM |
| 96 Verdala Park | £ 119,950 | 0.07 KM |
| 54 Verdala Park | £ 152,500 | 0.07 KM |
| 81 Verdala Park | £ 49,500 | 0.07 KM |
| 68 Verdala Park | £ 136,000 | 0.07 KM |