Walderslade Road, Walderslade, Chatham, ME5
By Greyfox Estate Agents
£ 350,000
Reviews
3 out of 5 stars
Greyfox Estate Agents says ..
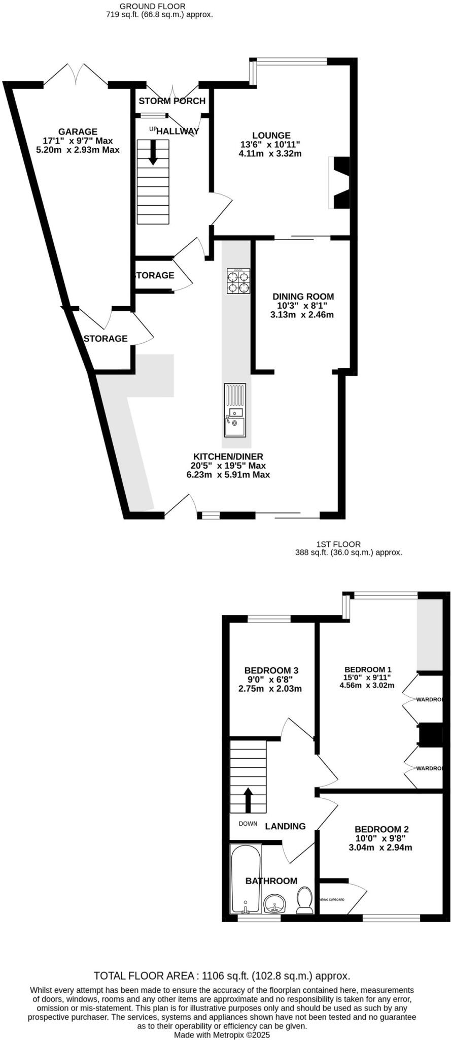
Well presented throughout. This lovely family home has been owned by our current vendor for many years. Having been extended, the house offers versatile living space and is situated in the popular area of Walderslade with local amenities to hand. Accommodation comprises: entrance p...
Property Oracle says ..
This three-bedroom semi-detached house is located on Walderslade Road in Chatham, Kent. The property benefits from being close to several schools, including Walderslade Girls’ School and Greenacre Academy, both rated as ‘Good’ by Ofsted. Chatham train station is approximately 3.13km away, providing convenient access to transport links. The house itself appears to be in reasonable condition, although some modernisation may be desirable. It has a garden, and the list price of £350,000 seems relatively reasonable compared to the average price of similar properties in the area (£348,897). However, a lack of information on the square footage of comparable properties makes a precise price comparison difficult. The property includes a garage.
Therefore, we give this property 7 / 10. *Disclaimer: This is our option and does constitute a recommendation or financial advice. Do your own research. *
- Price
- 7
- Condition
- 7
- Location
- 8
- Land
- 6
- Bedrooms
- 3
- Bathrooms
- 1
- Sqft (est)
- 1,080.00
- Lot (est)
- 1,106.00
The heatmap indicates the level of crime in the area. The color of the heatmap indicates the crime severity and recency.
Metrics Year-on-Year
- Average area value
- 394,944.00 £Increased by 20.71 %
- Est sale value
- 554,040.00 £Increased by 36.07 %
- Average area rental value
- 1,293.00 £/moDecreased by 22.11 %
- Est letting value
- 1,080.00 £/moUnchanged by 0.00 %
- Est rental Yield
- 3.93 %Decreased by 35.47 %
- Crime Rate
- 13.00 %Unchanged by 0.00 %
Agent Activity
Greyfox Estate Agents created the listing.
Nearby Schools
| Name | Type | Ofsted | Distance |
|---|---|---|---|
| Walderslade Girls' School | Academy Converter | Good | 0.37 KM |
| Greenacre Academy | Academy Converter | Good | 0.38 KM |
| Inspire Free Special School | Free Schools Special | Good | 0.48 KM |
| Bradfields Academy | Academy Special Converter | Outstanding | 0.48 KM |
| Oaklands Children'S Centre | Children's Centre | 0.58 KM |
Images
Nearby Streets
| Name | Average Price | Average Sqft | Distance |
|---|---|---|---|
| Spencer Close | £ 413,000 | 0 | 0.00 KM |
| Hurst Close | £ 290,000 | 0 | 0.00 KM |
| Mountbatten Avenue | £ 295,000 | 0 | 0.00 KM |
| Hurstwood | £ 301,667 | 0 | 0.00 KM |
| Larkspur Road | £ 260,000 | 0 | 0.00 KM |
Nearby Transport
| Name | NLC | TLC | Distance |
|---|---|---|---|
| Chatham | 5199 | CTM | 3.13 KM |
| Rochester | 5203 | RTR | 3.96 KM |
| Gillingham (Kent) | 5169 | GLM | 4.84 KM |
| Strood (Kent) | 5191 | SOO | 5.53 KM |
| Cuxton | 5201 | CUX | 7.18 KM |
Nearby Listings
| Address | Price | Type | Score | Distance |
|---|---|---|---|---|
| Walderslade Road, Walderslade, Chatham, ME5 | £ 350,000 | BUY | 7 / 10 | 0.00 KM |
| Walderslade Road, Chatham | £ 950,000 | BUY | 7 / 10 | 0.07 KM |
| Five-Bedroom Contemporary Residence - Walderslade Fringes | £ 850,000 | BUY | 7 / 10 | 0.07 KM |
| Walderslade Road, Walderslade, Kent. ME5 | £ 315,000 | BUY | 7 / 10 | 0.11 KM |
| Meadside Walk, Chatham, ME5 | £ 300,000 | BUY | 6 / 10 | 0.16 KM |
Nearby Properties
| Address | Price | Distance |
|---|---|---|
| 155 Walderslade Road | £ 165,000 | 0.10 KM |
| 151 Walderslade Road | £ 292,000 | 0.10 KM |
| 119 Walderslade Road | £ 131,000 | 0.10 KM |
| 153 Walderslade Road | £ 310,000 | 0.10 KM |
| 149 Walderslade Road | £ 275,000 | 0.11 KM |