Bradleys says ..
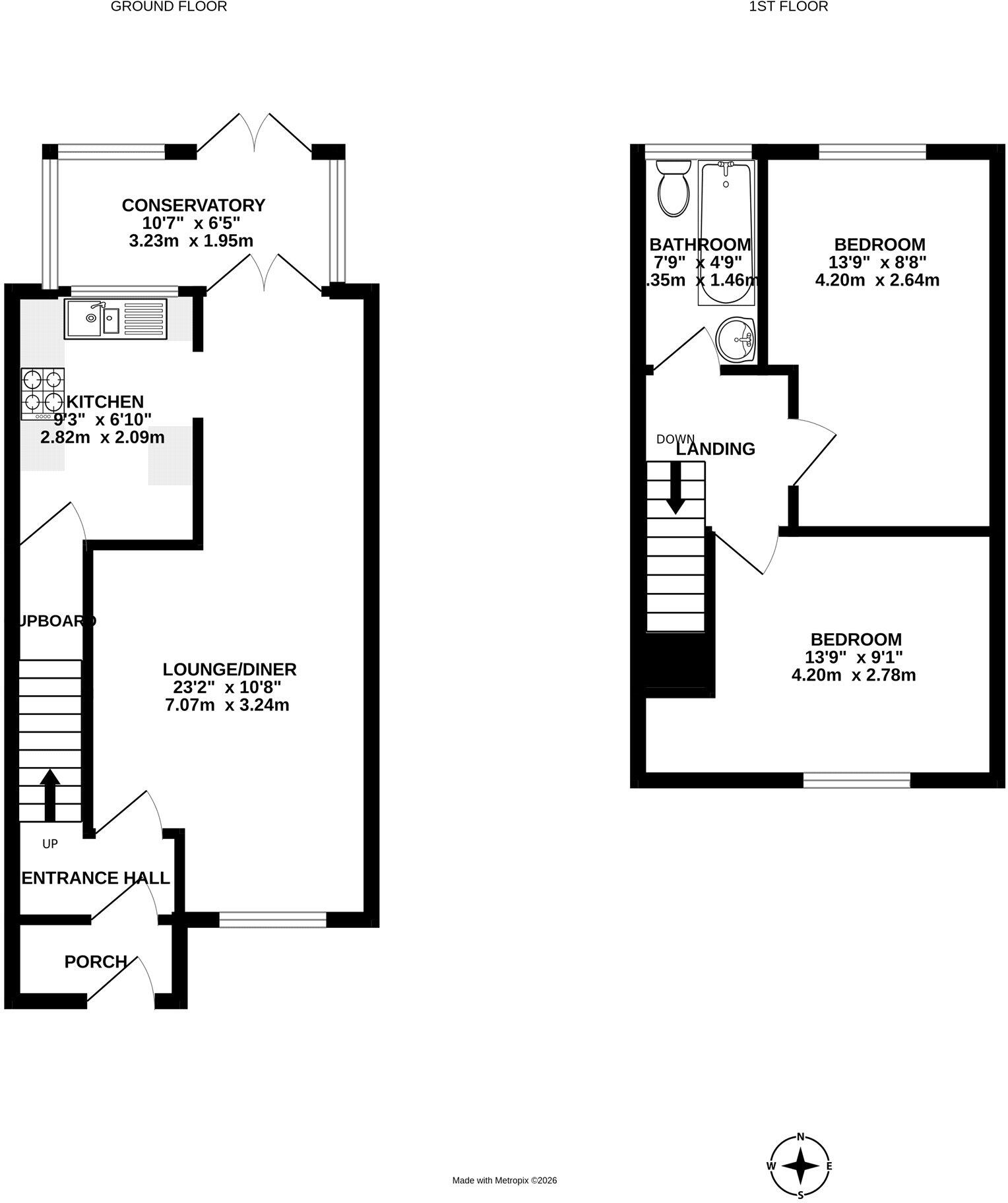
Well-proportioned mid-terrace with conservatory Located within a quiet cul-de-sac, this mid-terrace home is offered with no onward chain. The property benefits from uPVC double glazing, gas central heating and an installed air ventilation system. Accommodation includes a porch, lounge/d...
Property Oracle says ..
This is a two-bedroom terraced house in Exmouth, Devon. The property is listed for £200,000. It’s located in a residential area with nearby schools and transportation links. The house appears to be in a fair condition, but it would benefit from some modernization, particularly in the kitchen and bathroom. The garden is sloped and requires some work. Overall, the property offers a good opportunity for first-time buyers or investors willing to undertake some renovation work. The price seems reasonable for the location and potential.
Therefore, we give this property 5 / 10. *Disclaimer: This is our option and does constitute a recommendation or financial advice. Do your own research. *
- Price
- 7
- Condition
- 5
- Location
- 6
- Land
- 4
- Bedrooms
- 2
- Bathrooms
- 0
The heatmap indicates the level of crime in the area. The color of the heatmap indicates the crime severity and recency.
Metrics Year-on-Year
- Average area value
- 322,940.00 £Decreased by 9.74 %
- Average area rental value
- 1,284.00 £/moIncreased by 22.29 %
- Est rental Yield
- 4.77 %Increased by 35.51 %
- Crime Rate
- 15.00 %Unchanged by 0.00 %
Agent Activity
Bradleys created the listing.
Nearby Schools
| Name | Type | Ofsted | Distance |
|---|---|---|---|
| Bassetts Farm Primary School | Foundation School | Good | 0.43 KM |
| Marpool Primary School | Foundation School | Good | 0.89 KM |
| Exmouth & District Children'S Centre | Children's Centre | 1.09 KM | |
| Brixington Primary Academy | Academy Sponsor Led | Requires improvement | 1.23 KM |
| Littleham Church Of England Primary School | Voluntary Controlled School | Requires improvement | 1.32 KM |
Images
Nearby Streets
| Name | Average Price | Average Sqft | Distance |
|---|---|---|---|
| Wade Close | £ 0 | 0 | 0.00 KM |
| Copperfield Close | £ 385,000 | 0 | 0.00 KM |
| Somerville Close | £ 0 | 0 | 0.00 KM |
| The Crescent | £ 0 | 0 | 0.00 KM |
| Concorde Road | £ 0 | 0 | 0.00 KM |
Nearby Transport
| Name | NLC | TLC | Distance |
|---|---|---|---|
| Exmouth | 5756 | EXM | 3.29 KM |
| Lympstone Village | 5761 | LYM | 5.32 KM |
| Starcross | 3413 | SCS | 6.78 KM |
| Lympstone Commando | 5762 | LYC | 6.99 KM |
| Dawlish Warren | 3409 | DWW | 7.22 KM |
Nearby Listings
| Address | Price | Type | Score | Distance |
|---|---|---|---|---|
| Parthia Place, Exmouth, Devon | £ 200,000 | BUY | 5 / 10 | 0.00 KM |
| Cumberland Close, Exmouth | £ 270,000 | BUY | 7 / 10 | 0.12 KM |
| Wade Close, Exmouth | £ 229,950 | BUY | 7 / 10 | 0.16 KM |
| Sturges Road, Exmouth, EX8 4BH | £ 280,000 | BUY | 6 / 10 | 0.19 KM |
| Sturges Road, Exmouth, EX8 4BH | £ 290,000 | BUY | 6 / 10 | 0.19 KM |
Nearby Properties
| Address | Price | Distance |
|---|---|---|
| 10 Parthia Place | £ 145,000 | 0.01 KM |
| 6 Parthia Place | £ 135,000 | 0.01 KM |
| 8 Parthia Place | £ 182,500 | 0.01 KM |
| 5 Parthia Place | £ 146,000 | 0.01 KM |
| 2 Parthia Place | £ 147,500 | 0.01 KM |