Princes Street, Hawick
BA

Princes Street, Hawick

By Bannerman Burke Properties

£ 80,000

Reviews

3 out of 5 stars

Bannerman Burke Properties says ..

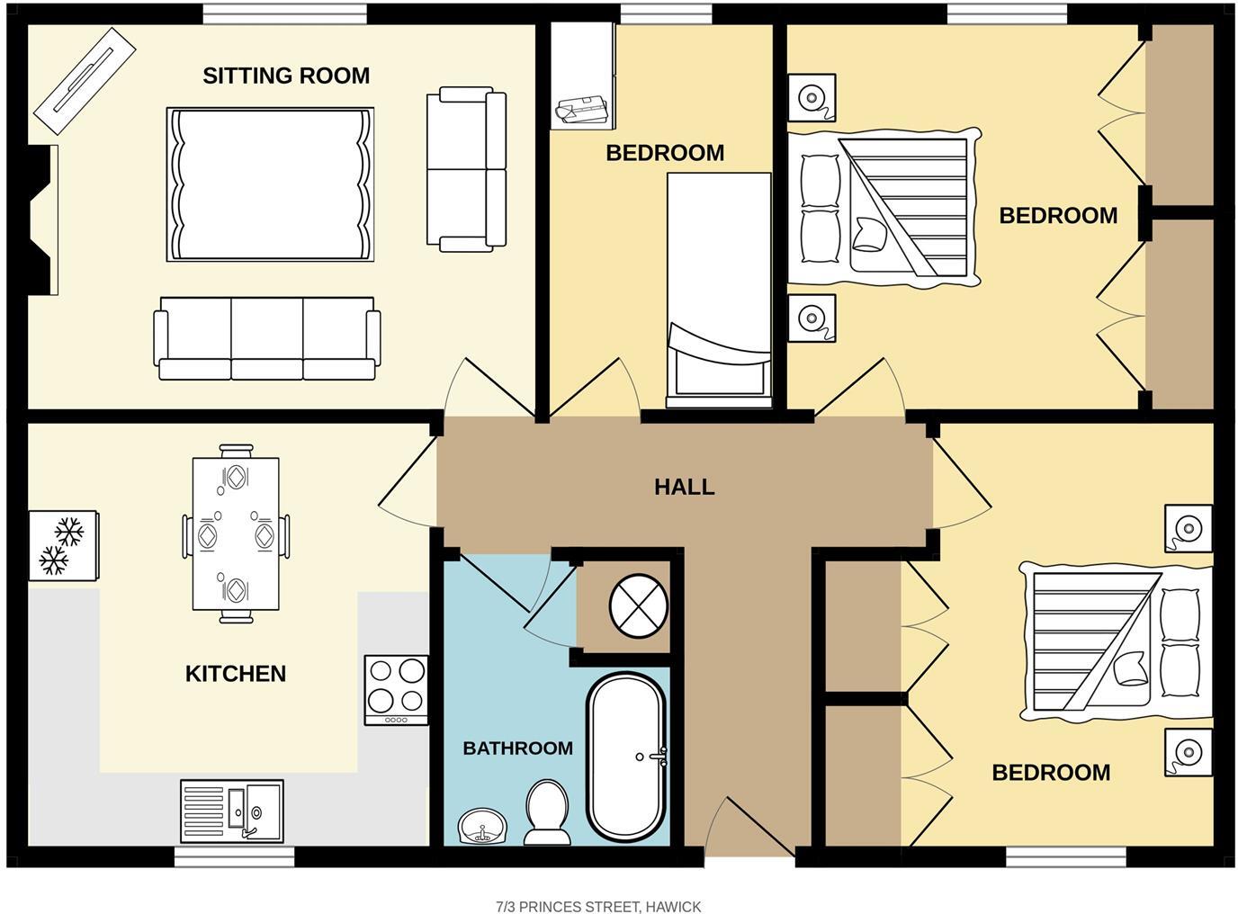
This spacious 3 bedroom top floor flat is presented for sale in good decorative order and offers superb views over the town and surrounding countryside. Located just a short walk to the town centre and local amenities, this property would make an ideal starter home, buy to let investment or holi...

Property Oracle says ..

This property is a 3-bedroom flat located on Princes Street in Hawick, Scottish Borders. The flat has recently been renovated to a good standard, with a modern kitchen and bathroom. It benefits from a good-sized garden. While the average price per square foot in the area is £295, this property is listed at a significantly lower price, making it potentially good value for money. However, further investigation into the specific location and its proximity to amenities such as schools and transportation would be beneficial to fully assess its value.

Therefore, we give this property 7 / 10. *Disclaimer: This is our option and does constitute a recommendation or financial advice. Do your own research. *

Price
8
Condition
9
Location
7
Land
7
Bedrooms
3
Bathrooms
1
Sqft (est)
420.00

The heatmap indicates the level of crime in the area. The color of the heatmap indicates the crime severity and recency.

Metrics Year-on-Year

Average area value
376,133.00 £
Increased by 50.19 %
from 250,445.00 £
Est sale value
267,960.00 £
Increased by 131.16 %
from 115,920.00 £
Average area rental value
1,250.00 £/mo
Increased by 20.42 %
from 1,038.00 £/mo
Est letting value
840.00 £/mo
Increased by 100.00 %
from 420.00 £/mo
Est rental Yield
3.99 %
Decreased by 19.72 %
from 4.97 %
Crime Rate
0.00 %
from 0.00 %

Agent Activity

  • Bannerman Burke Properties created the listing.

Images

IMG_0503.jpg IMG_0425.jpg IMG_0452.jpg IMG_0461.jpg IMG_0466.jpg IMG_0457.jpg IMG_0435.jpg IMG_0427.jpg IMG_0447.jpg IMG_0463.jpg IMG_0489.jpg IMG_0476.jpg IMG_0496.jpg IMG_0445.jpg IMG_0438.jpg IMG_0439.jpg IMG_0454.jpg IMG_0468.jpg IMG_0471.jpg IMG_0488.jpg IMG_0493.jpg IMG_0477.jpg

Nearby Streets

NameAverage PriceAverage SqftDistance
Dovemount Place £ 000.00 KM
West Stewart Place £ 265,00000.00 KM
Hunter Terrace £ 000.00 KM
East Stewart Place £ 235,00000.00 KM
Dovecote Mews £ 130,00000.00 KM

Nearby Listings

AddressPriceTypeScoreDistance
Princes Street, Hawick £ 80,000BUY7 / 100.00 KM
Hawick £ 80,000BUY7 / 100.03 KM
Dovemount Place, Hawick, TD9 £ 60,000BUY7 / 100.03 KM
3 Ground Floor, Dovemount Place Hawick, TD9 8AZ £ 130,000BUY7 / 100.04 KM
5/4 , Dovemount Place Hawick, TD9 8AZ £ 95,000BUY6 / 100.04 KM