DR
Willow Tree Close, Herne Bay
By Dreams Estate Agency
£ 525,000
Reviews
3 out of 5 stars
Dreams Estate Agency says ..
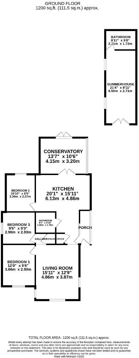
A stunning family bungalow situated in a sought after cul-de-sac in Beltinge, Herne Bay, with off street parking and a summerhouse perfect for a guest house. Call us today to arrange a viewing
Property Oracle says ..
Therefore, we give this property 7 / 10. *Disclaimer: This is our option and does constitute a recommendation or financial advice. Do your own research. *
- Price
- 6
- Condition
- 8
- Location
- 7
- Land
- 7
- Bedrooms
- 3
- Bathrooms
- 2
- Sqft (est)
- 1,200.00
The heatmap indicates the level of crime in the area. The color of the heatmap indicates the crime severity and recency.
Metrics Year-on-Year
- Average area value
- 408,070.00 £Increased by 4.43 %
- Est sale value
- 459,600.00 £Increased by 1.86 %
- Average area rental value
- 1,700.00 £/moDecreased by 13.57 %
- Est letting value
- 1,200.00 £/moUnchanged by 0.00 %
- Est rental Yield
- 5.00 %Decreased by 17.22 %
- Crime Rate
- 16.00 %Unchanged by 0.00 %
from 390,757.00 £
from 451,200.00 £
from 1,967.00 £/mo
from 1,200.00 £/mo
from 6.04 %
from 16.00 %
Agent Activity
Dreams Estate Agency created the listing.
Nearby Schools
| Name | Type | Ofsted | Distance |
|---|---|---|---|
| Reculver Church Of England Primary School | Academy Sponsor Led | Outstanding | 2.36 KM |
| Herne Church Of England Infant And Nursery School | Voluntary Controlled School | Outstanding | 2.66 KM |
| Herne Bay Junior School | Foundation School | Good | 2.77 KM |
| Herne Bay Infant School | Community School | Good | 2.80 KM |
| Herne Church Of England Junior School | Voluntary Aided School | Outstanding | 2.85 KM |
Images
Nearby Streets
| Name | Average Price | Average Sqft | Distance |
|---|---|---|---|
| Sycamore Close | £ 575,000 | 0 | 0.00 KM |
| Salisbury Road | £ 700,000 | 0 | 0.00 KM |
| Hogweed Way | £ 0 | 0 | 0.00 KM |
| Oyster Bay Trail | £ 0 | 0 | 0.00 KM |
| Reculver Road | £ 460,000 | 0 | 0.00 KM |
Nearby Transport
| Name | NLC | TLC | Distance |
|---|---|---|---|
| Herne Bay | 5174 | HNB | 4.06 KM |
| Sturry | 5029 | STU | 8.30 KM |
| Chestfield And Swalecliffe | 5200 | CSW | 9.70 KM |
Nearby Listings
| Address | Price | Type | Score | Distance |
|---|---|---|---|---|
| Willow Tree Close, Herne Bay | £ 525,000 | BUY | 7 / 10 | 0.00 KM |
| Willow Tree Close, Beltinge, Herne Bay, CT6 6PA | £ 525,000 | BUY | 7 / 10 | 0.02 KM |
| Willow Tree Close, Herne Bay, Kent | £ 435,000 | BUY | 7 / 10 | 0.05 KM |
| Osborne Gardens, Herne Bay, Kent | £ 349,950 | BUY | 7 / 10 | 0.07 KM |
| Willow Tree Close, Herne Bay, Kent | £ 450,000 | BUY | 6 / 10 | 0.08 KM |
Nearby Properties
| Address | Price | Distance |
|---|---|---|
| 2 Willow Tree Close | £ 307,000 | 0.03 KM |
| 7 Willow Tree Close | £ 400,000 | 0.03 KM |
| 16 Willow Tree Close | £ 260,000 | 0.03 KM |
| 13 Willow Tree Close | £ 230,000 | 0.03 KM |
| 12 Willow Tree Close | £ 247,000 | 0.03 KM |