Ben Rose says ..
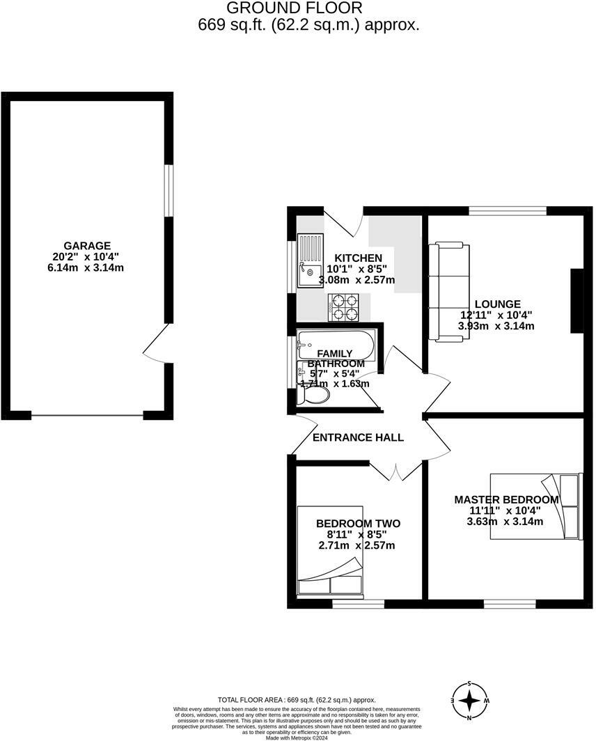
Ben Rose Estate Agents are pleased to present to market this delightful two-bedroom, semi-detached bungalow situated in the charming village of Coppull, offered with NO ONWARDS CHAIN. This lovely home is ideal for first-time buyers or those seeking the convenience of single-storey living. Set jus...
Property Oracle says ..
This two-bedroom semi-detached bungalow in Coppull, Chorley, is presented as a suitable option for first-time buyers or those seeking single-storey living. Located in a charming village setting, it benefits from relatively easy access to local primary schools and train stations, although further transport links require slightly longer commutes.
The property itself appears to be in a reasonable condition, with the interior exhibiting clean and neutrally-decorated rooms. However, a more comprehensive survey would be necessary to determine any significant maintenance or repair requirements. The kitchen and bathroom look slightly dated and could benefit from an update to enhance modern appeal and functionality.
The bungalow features a garden of moderate size, providing acceptable outdoor space for its size, but it does not have extensive grounds. The inclusion of a garage and other outbuildings enhances the property’s appeal.
The listing price is relatively competitive within its village location, suggesting that this might represent good value for money for a bungalow of this type and size, though further in-depth local analysis is needed for a more detailed and nuanced assessment. A buyer should be prepared for potential renovation costs, particularly focusing on the kitchen and bathroom to enhance the overall property value and modernise its features.
Therefore, we give this property 6 / 10. *Disclaimer: This is our option and does constitute a recommendation or financial advice. Do your own research. *
- Price
- 7
- Condition
- 6
- Location
- 7
- Land
- 4
- Bedrooms
- 2
- Bathrooms
- 1
- Sqft (est)
- 669.00
The heatmap indicates the level of crime in the area. The color of the heatmap indicates the crime severity and recency.
Metrics Year-on-Year
- Average area value
- 445,205.00 £Decreased by 3.69 %
- Est sale value
- 431,505.00 £Increased by 20.34 %
- Average area rental value
- 1,836.00 £/moIncreased by 4.79 %
- Est letting value
- 1,338.00 £/moUnchanged by 0.00 %
- Est rental Yield
- 4.95 %Increased by 8.79 %
- Crime Rate
- 18.00 %Unchanged by 0.00 %
Agent Activity
Ben Rose created the listing.
Nearby Schools
| Name | Type | Ofsted | Distance |
|---|---|---|---|
| Coppull Parish Church Of England Primary School | Voluntary Aided School | Good | 0.26 KM |
| Coppull Children'S Centre | Children's Centre | 1.29 KM | |
| Coppull Primary School And Nursery | Community School | Good | 1.34 KM |
| Southlands High School | Academy Converter | 1.69 KM | |
| St Oswald'S Catholic Primary School, Coppull | Voluntary Aided School | Good | 2.06 KM |
Images
Nearby Streets
| Name | Average Price | Average Sqft | Distance |
|---|---|---|---|
| Oakwood Road | £ 0 | 0 | 0.00 KM |
| Railway Gardens | £ 0 | 0 | 0.00 KM |
| Springfield Road | £ 185,000 | 0 | 0.00 KM |
| St. Oswalds Court | £ 274,995 | 0 | 0.00 KM |
| Burgh Lane South | £ 0 | 0 | 0.00 KM |
Nearby Transport
| Name | NLC | TLC | Distance |
|---|---|---|---|
| Chorley | 2745 | CRL | 4.16 KM |
| Euxton Balshaw Lane | 2080 | EBA | 4.18 KM |
| Buckshaw Parkway | 7501 | BSV | 5.18 KM |
| Adlington (Lancashire) | 2641 | ADL | 5.90 KM |
| Gathurst | 2397 | GST | 8.73 KM |
Nearby Listings
| Address | Price | Type | Score | Distance |
|---|---|---|---|---|
| Claytongate, Coppull, Chorley | £ 179,995 | BUY | 6 / 10 | 0.00 KM |
| Claytongate, Coppull, PR7 4PS | £ 185,000 | BUY | 8 / 10 | 0.07 KM |
| Spendmore Lane, Coppull, PR7 4NY | £ 135,000 | BUY | 5 / 10 | 0.09 KM |
| Oakwood Road, Coppull, Chorley | £ 169,995 | BUY | 6 / 10 | 0.10 KM |
| Claytongate, Coppull | £ 239,950 | BUY | 7 / 10 | 0.13 KM |
Nearby Properties
| Address | Price | Distance |
|---|---|---|
| 20 Spendmore Lane | £ 9,500 | 0.08 KM |
| 24 Spendmore Lane | £ 133,000 | 0.08 KM |
| 4 Spendmore Lane | £ 182,000 | 0.08 KM |
| 34 Oakwood Road | £ 125,000 | 0.11 KM |
| 38 Oakwood Road | £ 122,000 | 0.11 KM |