Chancellors says ..
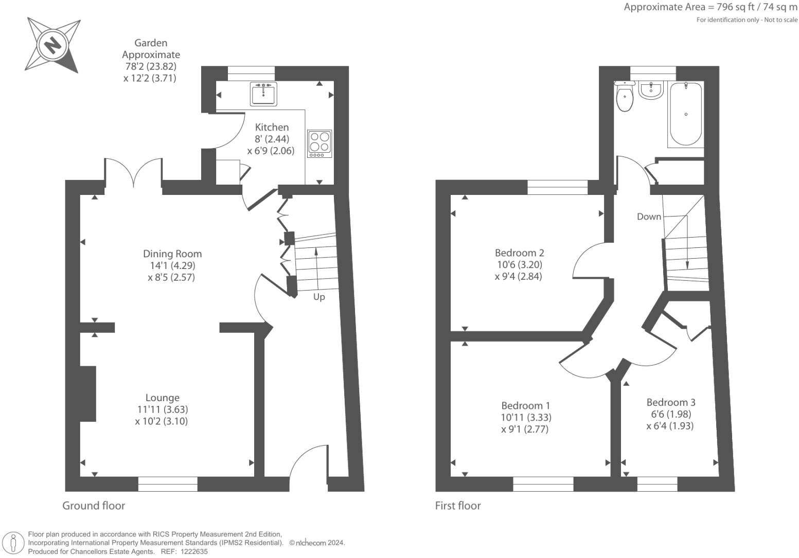
A well presented three bedroom cottage bursting with character positioned on the popular West End complete with original features. bathroom, kitchen, open living, large garden and sold with no onwards chain
Property Oracle says ..
Therefore, we give this property 6 / 10. *Disclaimer: This is our option and does constitute a recommendation or financial advice. Do your own research. *
- Price
- 6
- Condition
- 7
- Location
- 7
- Land
- 7
- Bedrooms
- 3
- Bathrooms
- 1
- Sqft (est)
- 796.00
- Lot (est)
- 949.84
The heatmap indicates the level of crime in the area. The color of the heatmap indicates the crime severity and recency.
Metrics Year-on-Year
- Average area value
- 270,000.00 £Increased by 41.58 %
- Est sale value
- 288,948.00 £Increased by 61.33 %
- Average area rental value
- 936.00 £/moDecreased by 3.51 %
- Est letting value
- 796.00 £/moUnchanged by 0.00 %
- Est rental Yield
- 4.16 %Decreased by 31.80 %
- Crime Rate
- 9.00 %Unchanged by 0.00 %
from 190,711.00 £
from 179,100.00 £
from 970.00 £/mo
from 796.00 £/mo
from 6.10 %
from 9.00 %
Agent Activity
Chancellors created the listing.
Nearby Schools
| Name | Type | Ofsted | Distance |
|---|---|---|---|
| Witney Community Primary School | Academy Converter | 0.71 KM | |
| The Batt Church Of England Primary School | Academy Converter | 0.92 KM | |
| Witney Children And Family Centre | Children's Centre | 0.92 KM | |
| St Mary'S Church Of England Controlled Infant School | Academy Converter | Good | 1.09 KM |
| Tower Hill Community Primary School | Academy Converter | Requires improvement | 1.11 KM |
Images
Nearby Streets
| Name | Average Price | Average Sqft | Distance |
|---|---|---|---|
| Captains Mill | £ 325,000 | 0 | 0.00 KM |
| Bridge Street | £ 427,500 | 0 | 0.00 KM |
| Meadow Court | £ 0 | 0 | 0.00 KM |
| Weavers Bridge | £ 0 | 0 | 0.00 KM |
| Chestnut Close | £ 375,000 | 0 | 0.00 KM |
Nearby Transport
| Name | NLC | TLC | Distance |
|---|---|---|---|
| Finstock | 3012 | FIN | 6.96 KM |
| Charlbury | 3004 | CBY | 8.97 KM |
Nearby Listings
| Address | Price | Type | Score | Distance |
|---|---|---|---|---|
| West End, Witney, OX28 | £ 325,000 | BUY | 6 / 10 | 0.00 KM |
| West End, Witney, OX28 1NJ | £ 500,000 | BUY | 7 / 10 | 0.04 KM |
| West End, Witney, OX28 | £ 550,000 | BUY | 7 / 10 | 0.04 KM |
| Millers Mews, Witney, OX28 | £ 600,000 | BUY | 7 / 10 | 0.06 KM |
| Millers Mews, Witney | £ 580,000 | BUY | 6 / 10 | 0.09 KM |
Nearby Properties
| Address | Price | Distance |
|---|---|---|
| 69 West End | £ 280,000 | 0.03 KM |
| 65b West End | £ 298,000 | 0.03 KM |
| 81 West End | £ 250,000 | 0.03 KM |
| 65a West End | £ 200,000 | 0.03 KM |
| 47a West End | £ 420,000 | 0.03 KM |