Russell Cope says ..
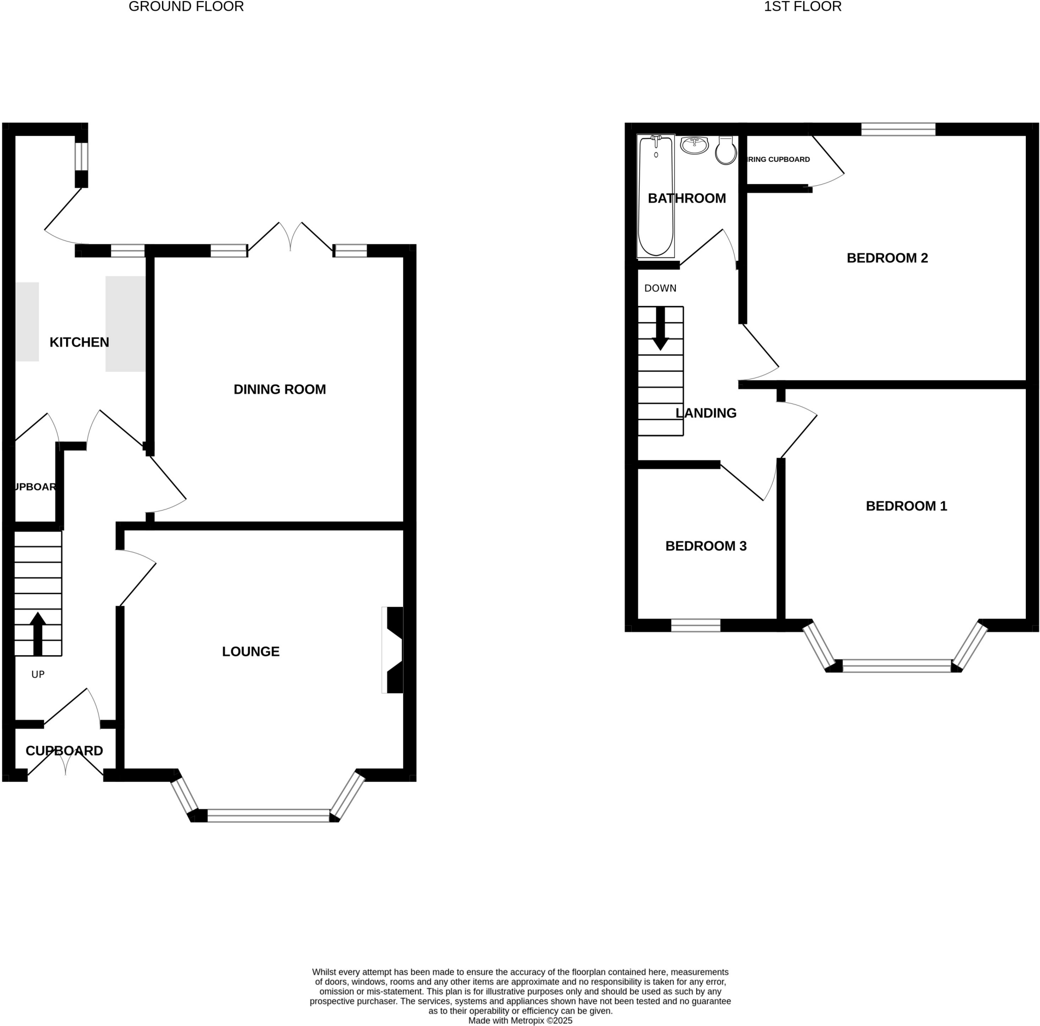
***TRADITIONAL BAYED MID TERRACED***UPDATING REQUIRED THROUGHOUT***OFFERED WITH NO ONWARD CHAIN***In brief the property comprises; entrance porch, entrance hall, living room, separate dining room, kitchen, three bedrooms and bathroom. UPVC double glazing (where specified). Gas fire places, and el...
Property Oracle says ..
This three-bedroom terraced house in Bedworth, Warwickshire is listed at £150,000. The property is situated on Coventry Road and benefits from being close to local amenities, schools (including The Canons C Of E Primary School, rated Outstanding by Ofsted), and transport links. While the property shows its age and requires some updating and modernisation, it offers a small rear garden. The average house price in the area is significantly higher (£390,398), and the average price per square foot is £331. Considering the need for modernisation and the smaller size of the property (780 sqft) compared to the area average (1177 sqft), the list price appears relatively reasonable in comparison to other similar properties on Coventry Road, although it is below the average price for the area.
Therefore, we give this property 5 / 10. *Disclaimer: This is our option and does constitute a recommendation or financial advice. Do your own research. *
- Price
- 6
- Condition
- 4
- Location
- 7
- Land
- 3
- Bedrooms
- 3
- Bathrooms
- 1
- Sqft (est)
- 780.00
The heatmap indicates the level of crime in the area. The color of the heatmap indicates the crime severity and recency.
Metrics Year-on-Year
- Average area value
- 411,094.00 £Increased by 15.33 %
- Est sale value
- 252,720.00 £Decreased by 10.99 %
- Average area rental value
- 1,035.00 £/moDecreased by 6.76 %
- Est letting value
- 0.00 £/moDecreased by 100.00 %
- Est rental Yield
- 3.02 %Decreased by 19.25 %
- Crime Rate
- 8.00 %Unchanged by 0.00 %
Agent Activity
Russell Cope marked this listing as sold.
Russell Cope created the listing.
Nearby Schools
| Name | Type | Ofsted | Distance |
|---|---|---|---|
| The Canons C Of E Primary School | Voluntary Aided School | Outstanding | 0.45 KM |
| Exhall Cedars Infant School | Community School | Requires improvement | 0.71 KM |
| Race Leys Infant School | Community School | Good | 0.95 KM |
| St Francis Catholic Academy | Academy Converter | Good | 1.11 KM |
| Race Leys Junior School | Academy Sponsor Led | Good | 1.12 KM |
Images
Nearby Streets
| Name | Average Price | Average Sqft | Distance |
|---|---|---|---|
| Gilbert Close | £ 0 | 0 | 0.00 KM |
| Black Bank | £ 0 | 0 | 0.00 KM |
| The Mews | £ 0 | 0 | 0.00 KM |
| Roadway Close | £ 0 | 0 | 0.00 KM |
| Dalton Road | £ 280,000 | 0 | 0.00 KM |
Nearby Transport
| Name | NLC | TLC | Distance |
|---|---|---|---|
| Bedworth | 1165 | BEH | 1.08 KM |
| Bermuda Park | 6543 | BEP | 2.97 KM |
| Coventry Arena | 7416 | CAA | 3.63 KM |
| Nuneaton | 1077 | NUN | 5.88 KM |
| Coventry | 1030 | COV | 9.23 KM |
Nearby Listings
| Address | Price | Type | Score | Distance |
|---|---|---|---|---|
| Coventry Road , Bedworth | £ 150,000 | BUY | 5 / 10 | 0.00 KM |
| Coventry Road, Bedworth | £ 155,000 | BUY | 5 / 10 | 0.00 KM |
| Coventry Road, Bedworth, Warwickshire, CV12 | £ 165,000 | BUY | 6 / 10 | 0.07 KM |
| Coventry Road, Bedworth | £ 230,000 | BUY | 7 / 10 | 0.08 KM |
| The Waterfront, Exhall, Coventry | £ 130,000 | BUY | 5 / 10 | 0.19 KM |
Nearby Properties
| Address | Price | Distance |
|---|---|---|
| 47 Coventry Road | £ 76,000 | 0.00 KM |
| 33 Coventry Road | £ 124,000 | 0.00 KM |
| 61 Coventry Road | £ 67,500 | 0.00 KM |
| 79 Coventry Road | £ 105,000 | 0.00 KM |
| 71 Coventry Road | £ 115,000 | 0.00 KM |