High Road, Romford, RM6
By Ashton Estate Agents
£ 700,000
Reviews
3 out of 5 stars
Ashton Estate Agents says ..
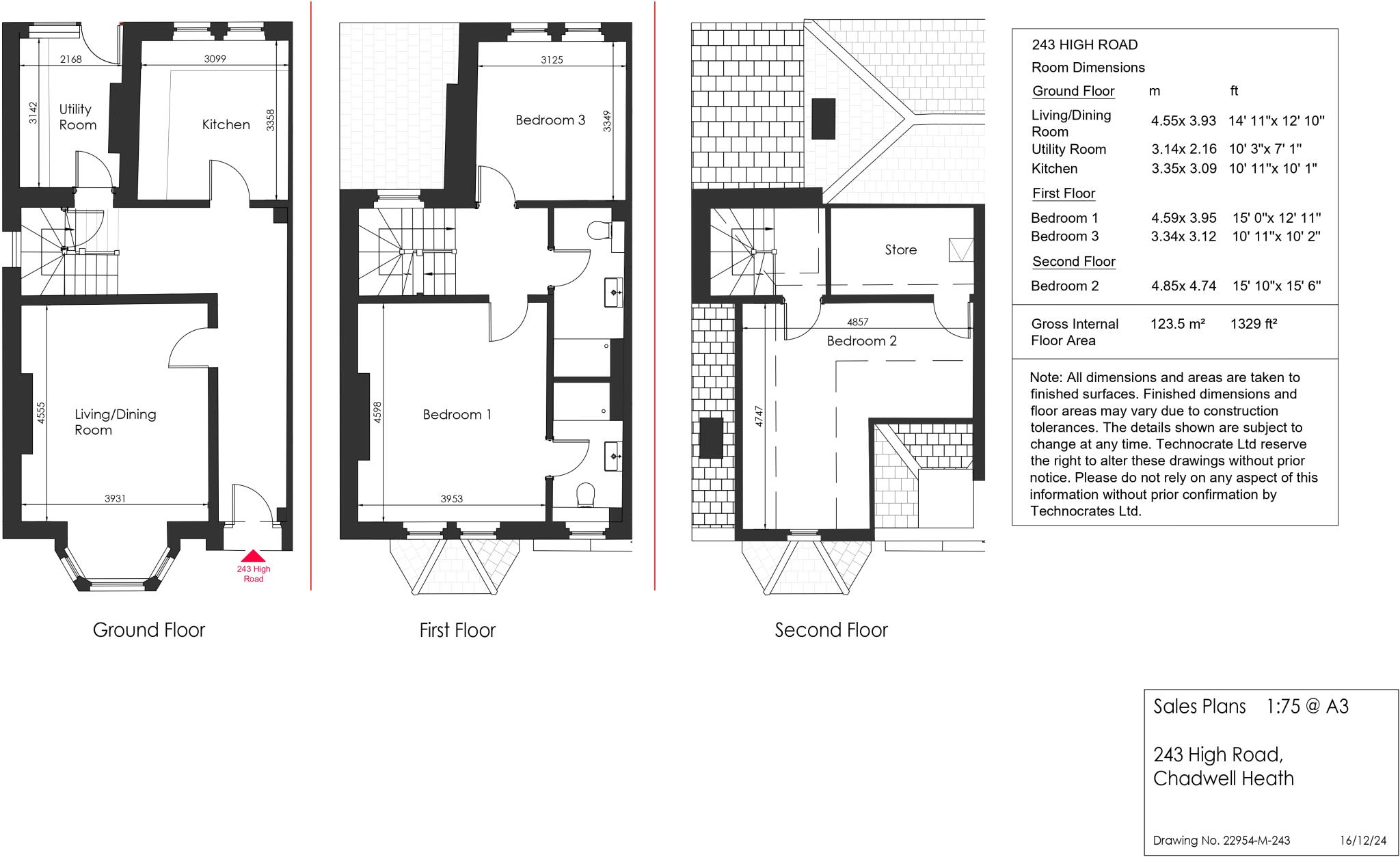
Ashton Estate Agents have the pleasure in offering for sale this stunning three bedroom semi-detached period house, which has undergone an extensive yet sympathetic programme of refurbishment. Situated within a gated development located just off Chadwell Heath High Road and within wal...
Property Oracle says ..
This three-bedroom semi-detached house in Romford is presented in excellent condition having undergone extensive refurbishment. The property benefits from a modern interior and a private garden, a rare find in this area. While the plot size is not specified, the images show a manageable, well-maintained outdoor space. The location is convenient, with nearby schools (Furze Infant School, Warren Junior School, and The Warren School are all within a short distance, and all have good Ofsted ratings) and Chadwell Heath train station providing access to London. However, the lack of readily available comparable properties with sqft data makes it challenging to definitively assess the price per sqft and its competitiveness within the market. The list price of £700,000 seems high compared to other nearby properties listed, but the extensive refurbishment and desirable features may justify this price for the right buyer.
Therefore, we give this property 7 / 10. *Disclaimer: This is our option and does constitute a recommendation or financial advice. Do your own research. *
- Price
- 6
- Condition
- 9
- Location
- 8
- Land
- 7
- Bedrooms
- 3
- Bathrooms
- 2
- Sqft (est)
- 1,329.34
The heatmap indicates the level of crime in the area. The color of the heatmap indicates the crime severity and recency.
Metrics Year-on-Year
- Average area value
- 299,571.00 £Decreased by 21.18 %
- Est sale value
- 612,825.74 £Decreased by 6.11 %
- Average area rental value
- 2,530.00 £/moIncreased by 49.44 %
- Est letting value
- 3,988.02 £/moIncreased by 50.00 %
- Est rental Yield
- 10.13 %Increased by 89.35 %
- Crime Rate
- 11.00 %Unchanged by 0.00 %
Agent Activity
Ashton Estate Agents created the listing.
Nearby Schools
| Name | Type | Ofsted | Distance |
|---|---|---|---|
| Furze Children'S Centre | Children's Centre Linked Site | 0.26 KM | |
| Furze Infant School | Community School | Good | 0.32 KM |
| Warren Junior School | Community School | Outstanding | 0.43 KM |
| The Warren School | Academy Sponsor Led | Good | 0.53 KM |
| Robert Clack School | Community School | Good | 1.22 KM |
Images
Nearby Streets
| Name | Average Price | Average Sqft | Distance |
|---|---|---|---|
| Gordon Road | £ 0 | 0 | 0.00 KM |
| Chaudewell Close | £ 0 | 0 | 0.00 KM |
| Dover Road | £ 0 | 0 | 0.00 KM |
| Cromer Road | £ 452,498 | 0 | 0.00 KM |
| Selinas Lane | £ 200,000 | 0 | 0.00 KM |
Nearby Transport
| Name | NLC | TLC | Distance |
|---|---|---|---|
| Chadwell Heath | 6874 | CTH | 1.61 KM |
| Goodmayes | 6878 | GMY | 3.62 KM |
| Romford | 6886 | RMF | 4.47 KM |
| Seven Kings | 6893 | SVK | 5.14 KM |
| Dagenham Dock | 7440 | DDK | 5.17 KM |
Nearby Listings
| Address | Price | Type | Score | Distance |
|---|---|---|---|---|
| High Road, Romford, RM6 | £ 700,000 | BUY | 7 / 10 | 0.00 KM |
| High Road, Romford, RM6 | £ 750,000 | BUY | 8 / 10 | 0.00 KM |
| High Road, Romford | £ 250,000 | BUY | 6 / 10 | 0.09 KM |
| High Road, Romford, RM6 | £ 265,000 | BUY | 6 / 10 | 0.09 KM |
| Maydeb Court, Whalebone Lane South, Chadwell Heath, RM6 | £ 250,000 | BUY | 5 / 10 | 0.09 KM |
Nearby Properties
| Address | Price | Distance |
|---|---|---|
| 232a High Road | £ 180,000 | 0.03 KM |
| 236a High Road | £ 125,000 | 0.03 KM |
| 238a High Road | £ 54,500 | 0.03 KM |
| 386 Whalebone Lane South | £ 55,000 | 0.12 KM |
| 396 Whalebone Lane South | £ 65,000 | 0.12 KM |