Conran Estates says ..
A spacious ground floor maisonette with a long south facing private garden that maximises the summer sunshine.
Property Oracle says ..
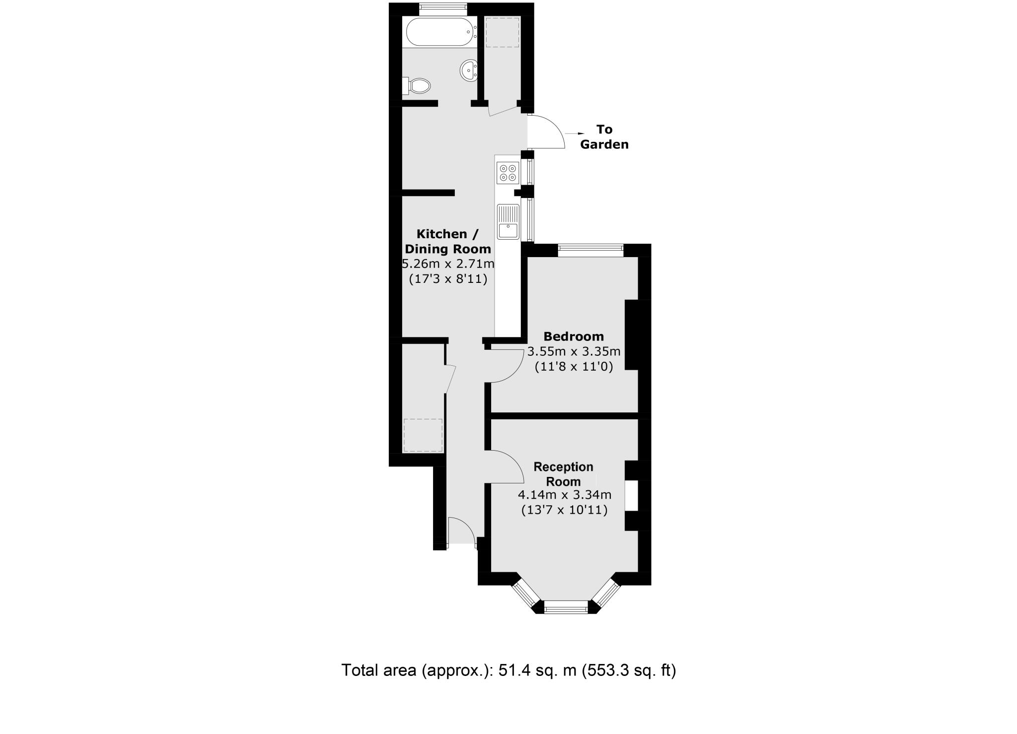
This one-bedroom, one-bathroom property located on Gurdon Road in Charlton, Greenwich, SE7, is presented as a terraced house, with a garden. The listing shows a relatively modest-sized property with a straightforward layout. The kitchen and bathroom show signs of recent modernization, though the extent of this may warrant further investigation on site. The photos suggest that the property is habitable and in generally good condition, without luxury finishes. The garden appears to be of reasonable size, providing additional outdoor space, which is a valuable asset in London. The location benefits from close proximity to Westcombe Park train station, improving overall access to transport links in the area. Several primary schools are located within a reasonable distance, making it potentially attractive to families. Nearby properties on Gurdon Road show a range of prices, reflecting the usual variations that exist within such a street. The list price of £325,000 should be considered in view of other recent sales in the neighbourhood and more investigation should be carried out by the prospective purchaser to establish market value. More detail would be needed to provide a more conclusive assessment, including the precise plot size and internal measurements to calculate the price per square foot. The property’s lack of specific details, such as the square footage and precise plot size, may cause a degree of uncertainty with respect to its overall value.
Therefore, we give this property 6 / 10. *Disclaimer: This is our option and does constitute a recommendation or financial advice. Do your own research. *
- Price
- 7
- Condition
- 6
- Location
- 7
- Land
- 4
- Bedrooms
- 1
- Bathrooms
- 1
- Sqft (est)
- 553.30
The heatmap indicates the level of crime in the area. The color of the heatmap indicates the crime severity and recency.
Metrics Year-on-Year
- Average area value
- 557,097.00 £Increased by 12.74 %
- Est sale value
- 389,523.20 £Increased by 22.65 %
- Average area rental value
- 2,359.00 £/moIncreased by 2.83 %
- Est letting value
- 1,106.60 £/moUnchanged by 0.00 %
- Est rental Yield
- 5.08 %Decreased by 8.80 %
- Crime Rate
- 6.00 %Unchanged by 0.00 %
Agent Activity
Conran Estates created the listing.
Nearby Schools
| Name | Type | Ofsted | Distance |
|---|---|---|---|
| Halstow Primary School | Academy Converter | Good | 0.64 KM |
| Fossdene Primary School | Community School | Good | 0.68 KM |
| Greenwich Steiner School | Other Independent School | 0.73 KM | |
| Sherington Primary School And Children'S Centre | Children's Centre | 0.74 KM | |
| Invicta Primary School And Children'S Centre | Children's Centre Linked Site | 0.74 KM |
Images
Nearby Streets
| Name | Average Price | Average Sqft | Distance |
|---|---|---|---|
| Bowen Drive | £ 483,000 | 0 | 0.00 KM |
| Fossdene Road | £ 330,000 | 0 | 0.00 KM |
| Empire Close | £ 229,750 | 0 | 0.00 KM |
| Woolwich Road | £ 352,500 | 0 | 0.00 KM |
| Bowater Place | £ 0 | 0 | 0.00 KM |
Nearby Transport
| Name | NLC | TLC | Distance |
|---|---|---|---|
| Westcombe Park | 5151 | WCB | 0.32 KM |
| Charlton | 5144 | CTN | 1.15 KM |
| Maze Hill | 5149 | MZH | 2.02 KM |
| Blackheath | 5095 | BKH | 2.58 KM |
| Kidbrooke | 5108 | KDB | 2.71 KM |
Nearby Listings
| Address | Price | Type | Score | Distance |
|---|---|---|---|---|
| Gurdon Road, Charlton, SE7 | £ 325,000 | BUY | 6 / 10 | 0.00 KM |
| Gurdon Road, Charlton, SE7 | £ 475,000 | BUY | 7 / 10 | 0.03 KM |
| Gurdon Road, Charlton | £ 475,000 | BUY | Unknown | 0.04 KM |
| Gurdon Road, London | £ 375,000 | BUY | Unknown | 0.05 KM |
| Fairthorn Road, London, SE7 | £ 375,000 | BUY | 7 / 10 | 0.07 KM |
Nearby Properties
| Address | Price | Distance |
|---|---|---|
| 3a Gurdon Road | £ 60,000 | 0.03 KM |
| 11 Gurdon Road | £ 600,000 | 0.03 KM |
| 1 Gurdon Road | £ 41,000 | 0.03 KM |
| 3 Gurdon Road | £ 285,000 | 0.03 KM |
| 1a Gurdon Road | £ 307,500 | 0.03 KM |