Main Street, Askham Bryan, York, YO23 3QU
By Hudson Moody
£ 475,000
Reviews
3 out of 5 stars
Hudson Moody says ..
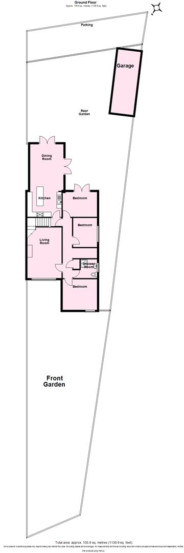
Set back from the Main Street in Askham Bryan with long lawned garden to the front, you will find this surprisingly spacious modern FOUR BEDROOM semi-detached dormer bungalow. The property has been extended to the rear to provide a superb kitchen/dining area together with excellent versatile fam...
Property Oracle says ..
Therefore, we give this property 7 / 10. *Disclaimer: This is our option and does constitute a recommendation or financial advice. Do your own research. *
- Price
- 6
- Condition
- 7
- Location
- 7
- Land
- 8
- Bedrooms
- 4
- Bathrooms
- 1
- Sqft (est)
- 1,008.69
The heatmap indicates the level of crime in the area. The color of the heatmap indicates the crime severity and recency.
Metrics Year-on-Year
- Average area value
- 571,732.00 £Increased by 11.62 %
- Est sale value
- 428,693.25 £Decreased by 8.01 %
- Average area rental value
- 1,116.00 £/moDecreased by 31.91 %
- Est letting value
- 0.00 £/moDecreased by 100.00 %
- Est rental Yield
- 2.34 %Decreased by 39.06 %
- Crime Rate
- 14.00 %Unchanged by 0.00 %
from 512,194.00 £
from 466,014.78 £
from 1,639.00 £/mo
from 1,008.69 £/mo
from 3.84 %
from 14.00 %
Agent Activity
Hudson Moody created the listing.
Nearby Schools
| Name | Type | Ofsted | Distance |
|---|---|---|---|
| Askham Bryan College | Further Education | Good | 1.13 KM |
| Copmanthorpe Primary School | Community School | Good | 2.46 KM |
| Westfield Primary Community School | Community School | Good | 2.95 KM |
| Westfield Children'S Centre | Children's Centre | 3.12 KM | |
| Woodthorpe Primary School | Academy Converter | 3.14 KM |
Images
Nearby Streets
| Name | Average Price | Average Sqft | Distance |
|---|---|---|---|
| College Road | £ 475,000 | 0 | 0.00 KM |
| Saint Nicholas Crescent | £ 425,000 | 0 | 0.00 KM |
| Ring Road | £ 0 | 0 | 0.00 KM |
Nearby Transport
| Name | NLC | TLC | Distance |
|---|---|---|---|
| Poppleton | 8254 | POP | 5.27 KM |
| York | 8263 | YRK | 7.63 KM |
Nearby Listings
| Address | Price | Type | Score | Distance |
|---|---|---|---|---|
| Main Street, Askham Bryan, York, YO23 3QU | £ 475,000 | BUY | 7 / 10 | 0.00 KM |
| Main Street, Askham Bryan, York | £ 325,000 | BUY | 6 / 10 | 0.10 KM |
| Field House, Askham Bryan, York | £ 750,000 | BUY | Unknown | 0.14 KM |
| Main Street, Askham Bryan, York | £ 800,000 | BUY | 7 / 10 | 0.14 KM |
| Low Hall, Askham Bryan, York | £ 1,750,000 | BUY | 8 / 10 | 0.28 KM |
Nearby Properties
| Address | Price | Distance |
|---|---|---|
| 10 Church Close | £ 286,000 | 0.10 KM |
| 29 Main Street | £ 357,500 | 0.12 KM |
| 57 Main Street | £ 300,000 | 0.12 KM |
| 4 Main Street | £ 377,500 | 0.12 KM |
| 62 Main Street | £ 382,000 | 0.12 KM |