Leaholes Avenue, Okehampton
ST

Leaholes Avenue, Okehampton

By Stags

£ 240,000

Reviews

3 out of 5 stars

Stags says ..

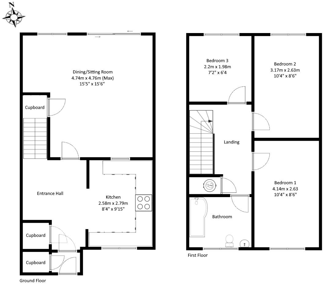
A 1980's built three bedroom semi detached house with parking and garage situated on this popular residential road. Kitchen. Dining/Sitting Room. Three Bedrooms. Family Bathroom. Gardens. Garage and Parking. No Chain. Freehold. Council Tax Band C. EPC Band C.

Property Oracle says ..

This three-bedroom house in Okehampton, Devon, presents a potentially attractive opportunity for buyers. Located on Leaholes Avenue, the property benefits from its proximity to local amenities and the scenic Dartmoor National Park. The house itself offers functional living spaces, including a kitchen, bathroom, and three bedrooms. The images reveal a property that is habitable but could benefit from some modernisation. The kitchen and bathroom, while clean and functional, exhibit a dated aesthetic. The flooring and wall coverings throughout the house also suggest the potential for updating. The property includes a small garden, a double garage and additional outbuildings, offering some outdoor space and storage. The lack of precise plot size information prevents a more detailed assessment of the land. The list price of £240,000 requires careful consideration in the context of the local market. While the price seems reasonable relative to comparable properties in Okehampton, a thorough review of recent sales data and a professional valuation are recommended before making an offer. Overall, this property offers a solid base for a comfortable home, but potential buyers should factor in the costs of modernisation and updating to fully assess the overall value proposition.

Therefore, we give this property 6 / 10. *Disclaimer: This is our option and does constitute a recommendation or financial advice. Do your own research. *

Price
7
Condition
6
Location
7
Land
4
Bedrooms
3
Bathrooms
1
Sqft (est)
943.67

The heatmap indicates the level of crime in the area. The color of the heatmap indicates the crime severity and recency.

Metrics Year-on-Year

Average area value
319,000.00 £
Increased by 2.65 %
from 310,773.00 £
Est sale value
339,721.20 £
Increased by 3.75 %
from 327,453.49 £
Average area rental value
833.00 £/mo
Increased by 0.48 %
from 829.00 £/mo
Est letting value
0.00 £/mo
from 0.00 £/mo
Est rental Yield
3.13 %
Decreased by 2.19 %
from 3.20 %
Crime Rate
17.00 %
Unchanged by 0.00 %
from 17.00 %

Agent Activity

  • Stags created the listing.

Nearby Schools

NameTypeOfstedDistance
St James Church Of England Primary And Nursery SchoolFree Schools0.55 KM
Okehampton CollegeAcademy Converter1.07 KM
Okehampton Area Children'S CentreChildren's Centre1.07 KM
Okehampton Primary School And Foundation UnitAcademy Converter1.60 KM
Exbourne Church Of England Primary SchoolAcademy Converter6.50 KM

Images

PXL_20250130_154245927~2.jpg PXL_20250131_103640348.MP~2.jpg PXL_20250131_103529932~2.jpg PXL_20250131_103613409~2.jpg PXL_20250131_103659028~2.jpg PXL_20250131_103543443.MP~2.jpg PXL_20250130_154052415~2.jpg PXL_20250130_154104261.jpg PXL_20250130_154213382.jpg PXL_20250130_154129798~2.jpg PXL_20250130_154143128.jpg PXL_20250131_103709582~2.jpg PXL_20250131_103517138~2.jpg

Nearby Streets

NameAverage PriceAverage SqftDistance
Stanway Court £ 000.00 KM
West View Road £ 000.00 KM
Cavell Way £ 000.00 KM
Ashley Road £ 000.00 KM
Courtenay Road £ 000.00 KM

Nearby Transport

NameNLCTLCDistance
Okehampton5786OKE1.15 KM
Sampford Courtenay8724SMC5.68 KM

Nearby Listings

AddressPriceTypeScoreDistance
Leaholes Avenue, Okehampton £ 240,000BUY6 / 100.00 KM
Holley Park, Okehampton £ 200,000BUYUnknown0.05 KM
Holley Park, Okehampton, Devon, EX20 £ 195,000BUY7 / 100.09 KM
Holley Park, Okehampton, Devon, EX20 £ 215,000BUY6 / 100.09 KM
The Heathers, Okehampton, Devon, EX20 £ 185,000BUY7 / 100.13 KM

Nearby Properties

AddressPriceDistance
45 Leaholes Avenue £ 258,0000.02 KM
66 Leaholes Avenue £ 213,5000.02 KM
60 Leaholes Avenue £ 180,0000.02 KM
54 Leaholes Avenue £ 300,0000.02 KM
47 Leaholes Avenue £ 172,0000.02 KM