Northfield Close, Church Crookham, Fleet, Hampshire, GU52
By Mackenzie Smith
£ 365,000
Reviews
3 out of 5 stars
Mackenzie Smith says ..
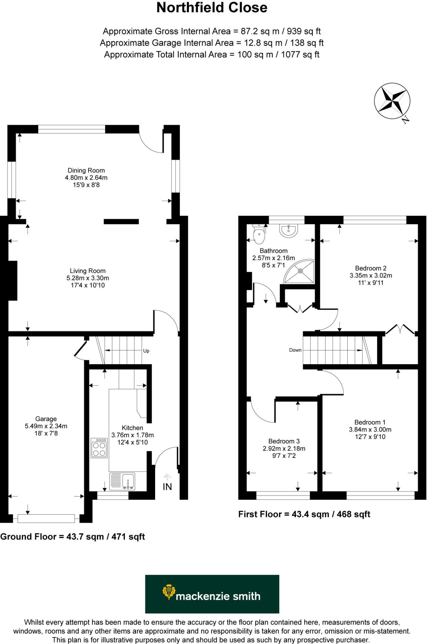
** NO ONWARD CHAIN ** Available to the market for the first time since its construction in 1969, this extended three-bedroom terraced home offers an excellent opportunity for families seeking space, comfort, and convenience. The property features a spacious living area, shower room, private garde...
Property Oracle says ..
This is a three-bedroom terraced house in Church Crookham, Fleet. The property offers a good amount of living space at 1,076.39 sqft and includes front and rear gardens. The location is desirable, with good access to local amenities and schools. However, the property requires significant renovation to modernize the interior. The asking price of £365,000 reflects the need for renovation and is in line with the average price for the area.
Therefore, we give this property 6 / 10. *Disclaimer: This is our option and does constitute a recommendation or financial advice. Do your own research. *
- Price
- 7
- Condition
- 4
- Location
- 7
- Land
- 6
- Bedrooms
- 3
- Bathrooms
- 1
- Sqft (est)
- 1,076.39
The heatmap indicates the level of crime in the area. The color of the heatmap indicates the crime severity and recency.
Metrics Year-on-Year
- Average area value
- 239,000.00 £Increased by 24.44 %
- Est sale value
- 289,548.91 £Increased by 15.95 %
- Average area rental value
- 850.00 £/moDecreased by 8.60 %
- Est letting value
- 0.00 £/moDecreased by 100.00 %
- Est rental Yield
- 4.27 %Decreased by 26.51 %
- Crime Rate
- 4.00 %Unchanged by 0.00 %
Agent Activity
Mackenzie Smith created the listing.
Nearby Schools
| Name | Type | Ofsted | Distance |
|---|---|---|---|
| Tweseldown Infant School | Community School | Outstanding | 0.88 KM |
| Wild Rose Children'S Centre | Children's Centre Linked Site | 0.88 KM | |
| Velmead Junior School | Community School | Good | 0.96 KM |
| Church Crookham Junior School | Community School | Outstanding | 0.99 KM |
| Fleet Infant School | Community School | Outstanding | 1.00 KM |
Images
Nearby Streets
| Name | Average Price | Average Sqft | Distance |
|---|---|---|---|
| Gordon Avenue | £ 550,000 | 0 | 0.00 KM |
| Hamilton Road | £ 0 | 0 | 0.00 KM |
| Redwoods Lane | £ 0 | 0 | 0.00 KM |
| Kenmore Close | £ 925,000 | 0 | 0.00 KM |
| Foxcroft | £ 0 | 0 | 0.00 KM |
Nearby Transport
| Name | NLC | TLC | Distance |
|---|---|---|---|
| Fleet | 5522 | FLE | 2.82 KM |
| Farnham | 5545 | FNH | 7.06 KM |
| Aldershot | 5623 | AHT | 7.65 KM |
| Farnborough (Main) | 5521 | FNB | 8.52 KM |
| Blackwater | 5625 | BAW | 9.15 KM |
Nearby Listings
| Address | Price | Type | Score | Distance |
|---|---|---|---|---|
| Northfield Close, Church Crookham, Fleet, Hampshire, GU52 | £ 365,000 | BUY | 6 / 10 | 0.00 KM |
| Grove Road, Church Crookham, Fleet | £ 800,000 | BUY | Unknown | 0.06 KM |
| Northfield Road, Church Crookham | £ 450,000 | BUY | 6 / 10 | 0.07 KM |
| Grove Road, Church Crookham, Fleet, Hampshire, GU52 | £ 435,000 | BUY | 7 / 10 | 0.08 KM |
| Grove Road, Church Crookham, Fleet, Hampshire, GU52 | £ 850,000 | BUY | 7 / 10 | 0.08 KM |
Nearby Properties
| Address | Price | Distance |
|---|---|---|
| 7 Northfield Close | £ 295,000 | 0.01 KM |
| 10 Northfield Close | £ 332,500 | 0.01 KM |
| 6 Northfield Close | £ 220,000 | 0.01 KM |
| 1 Northfield Close | £ 310,000 | 0.01 KM |
| 44 Northfield Road | £ 380,000 | 0.05 KM |