Brassey House, New Zealand Avenue, Walton-On-Thames
By Leaders Sales
£ 220,000
Reviews
3 out of 5 stars
Leaders Sales says ..
PERFECT FIRST-TIME BUY A stylish and contemporary one bedroom apartment, forming part of a select development in the centre of desirable Walton-on-Thames. Converted within the last ten years and enjoying a 990+ year lease, this superb property is offered to the market with ...
Property Oracle says ..
The property is a one-bedroom apartment located in Walton-on-Thames, Surrey. It is situated in a central location, as evidenced by its proximity to shops and businesses visible in the provided photographs. The apartment appears to be in good condition, with modern fixtures and fittings in the kitchen and bathroom. The images suggest a recently renovated or converted space, which is consistent with the listing description. While the exact plot size is provided, there is no indication of a private garden. The list price of £220,000 is significantly lower than the average price for the area (£652,035), and the price per square foot is also considerably lower than the average (£579.00). However, this is likely due to the smaller size of the property (276 sqft) and the fact that it’s an apartment rather than a house. The lower price may also reflect the lack of outdoor space. Considering its location, condition, and size, the price appears reasonable for a one-bedroom apartment in this area, especially given the lower average price per sqft compared to other properties. The proximity to Walton-on-Thames train station also enhances its appeal.
Therefore, we give this property 6 / 10. *Disclaimer: This is our option and does constitute a recommendation or financial advice. Do your own research. *
- Price
- 7
- Condition
- 8
- Location
- 9
- Land
- 3
- Bedrooms
- 1
- Bathrooms
- 1
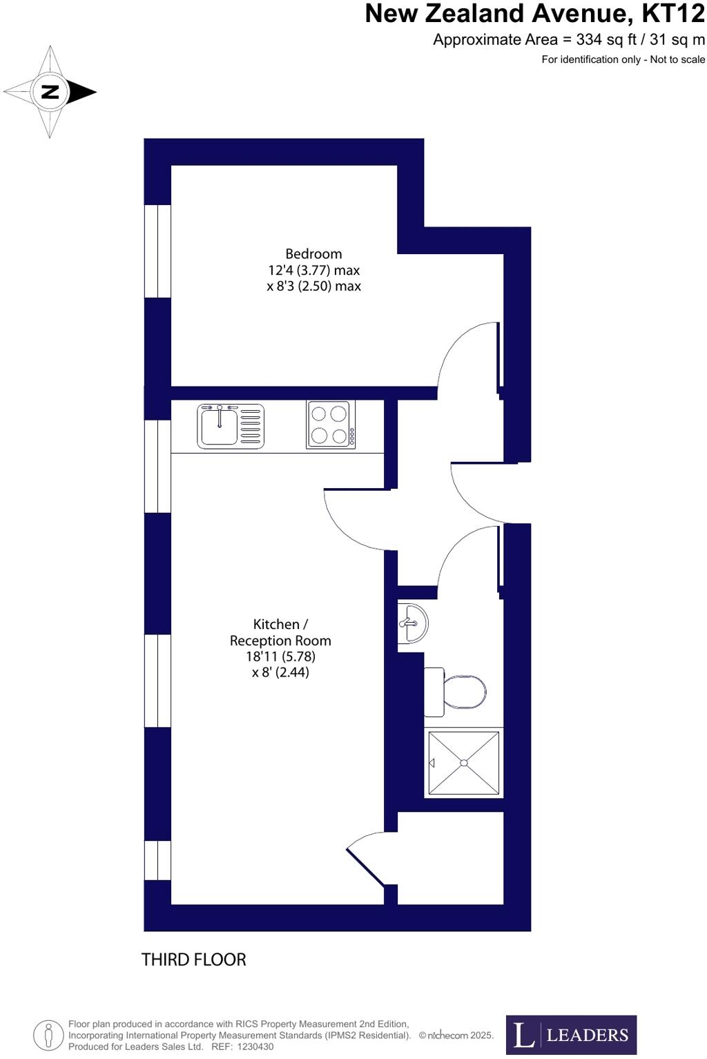
- Sqft (est)
- 276.00
- Lot (est)
- 334.00
The heatmap indicates the level of crime in the area. The color of the heatmap indicates the crime severity and recency.
Metrics Year-on-Year
- Average area value
- 586,250.00 £Decreased by 7.11 %
- Est sale value
- 173,052.00 £Increased by 17.20 %
- Average area rental value
- 2,293.00 £/moIncreased by 24.48 %
- Est letting value
- 552.00 £/moIncreased by 100.00 %
- Est rental Yield
- 4.69 %Increased by 34.00 %
- Crime Rate
- 60.00 %Unchanged by 0.00 %
Agent Activity
Leaders Sales created the listing.
Nearby Schools
| Name | Type | Ofsted | Distance |
|---|---|---|---|
| Ashley Church Of England Primary School | Academy Converter | 0.13 KM | |
| Westward School | Other Independent School | 0.96 KM | |
| The Danesfield Manor School | Other Independent School | 1.58 KM | |
| Cleves School | Academy Converter | 1.61 KM | |
| Grovelands Primary School | Community School | Good | 1.69 KM |
Images
Nearby Streets
| Name | Average Price | Average Sqft | Distance |
|---|---|---|---|
| Colby Road | £ 0 | 0 | 0.00 KM |
| Bishops Hill | £ 0 | 0 | 0.00 KM |
| Swan Close | £ 0 | 0 | 0.00 KM |
| Tennis Close | £ 698,333 | 0 | 0.00 KM |
| Kings Gardens | £ 0 | 0 | 0.00 KM |
Nearby Transport
| Name | NLC | TLC | Distance |
|---|---|---|---|
| Walton-On-Thames | 5575 | WAL | 1.36 KM |
| Hersham | 5590 | HER | 3.30 KM |
| Shepperton | 5605 | SHP | 3.38 KM |
| Upper Halliford | 5613 | UPH | 3.45 KM |
| Sunbury | 5608 | SUU | 3.77 KM |
Nearby Listings
| Address | Price | Type | Score | Distance |
|---|---|---|---|---|
| Brassey House, New Zealand Avenue, Walton-On-Thames | £ 220,000 | BUY | 6 / 10 | 0.00 KM |
| Brassey House, New Zealand Avenue, WALTON-ON-THAMES, Surrey, KT12 | £ 225,000 | BUY | 6 / 10 | 0.00 KM |
| Brassey House, New Zealand Avenue, Walton-On-Thames | £ 220,000 | BUY | 6 / 10 | 0.00 KM |
| New Zealand Avenue, Walton-on-thames, KT12 | £ 350,000 | BUY | 6 / 10 | 0.00 KM |
| Brassey House, Walton On Thames, Surrey, KT12 | £ 215,000 | BUY | 6 / 10 | 0.00 KM |
Nearby Properties
| Address | Price | Distance |
|---|---|---|
| 56a High Street | £ 382,500 | 0.03 KM |
| 46a High Street | £ 353,000 | 0.04 KM |
| 35a High Street | £ 315,000 | 0.12 KM |
| 542 The Heart | £ 249,000 | 0.12 KM |
| 346 The Heart | £ 167,500 | 0.12 KM |