DE
Limepark Crescent, Kelty, KY4
By Delmor Estate & Lettings Agents
£ 205,000
Reviews
3 out of 5 stars
Delmor Estate & Lettings Agents says ..
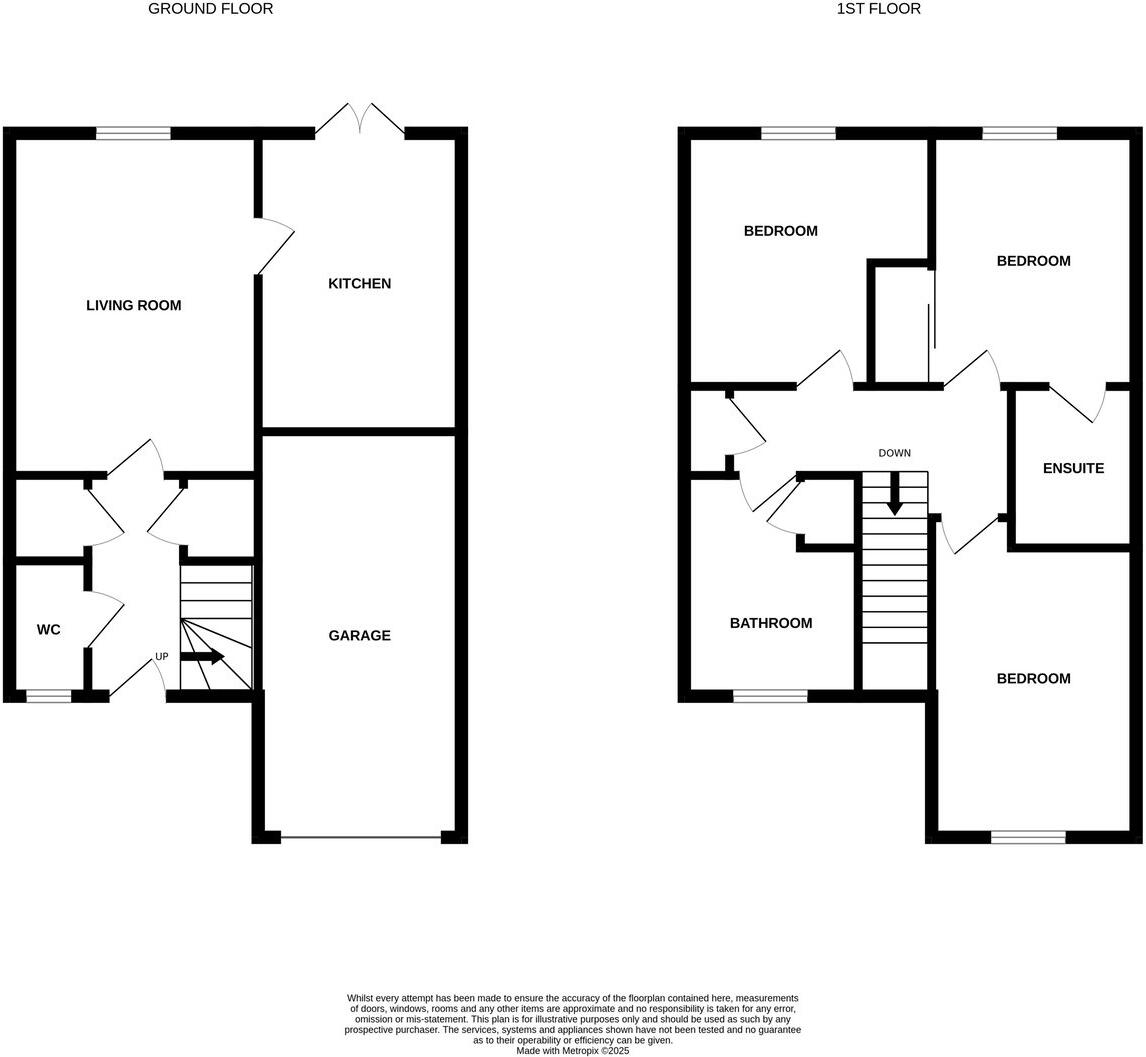
Well presented semi detached villa with modern kitchen, downstairs WC, master bedroom with en suite shower room and two further bedrooms. Driveway and garage. Early viewing is highly recommended.
Property Oracle says ..
Therefore, we give this property 7 / 10. *Disclaimer: This is our option and does constitute a recommendation or financial advice. Do your own research. *
- Price
- 8
- Condition
- 8
- Location
- 6
- Land
- 7
- Bedrooms
- 3
- Bathrooms
- 2
The heatmap indicates the level of crime in the area. The color of the heatmap indicates the crime severity and recency.
Metrics Year-on-Year
- Average area value
- 546,663.00 £Increased by 20.32 %
- Average area rental value
- 2,315.00 £/moIncreased by 58.13 %
- Est rental Yield
- 5.08 %Increased by 31.27 %
- Crime Rate
- 0.00 %
from 454,336.00 £
from 1,464.00 £/mo
from 3.87 %
from 0.00 %
Agent Activity
Delmor Estate & Lettings Agents created the listing.
Images
Nearby Streets
| Name | Average Price | Average Sqft | Distance |
|---|---|---|---|
| Stewart Road | £ 0 | 0 | 0.00 KM |
| Rowan Lea | £ 250,000 | 0 | 0.00 KM |
| Nasmyth Place | £ 0 | 0 | 0.00 KM |
| Colliers Lane | £ 163,000 | 0 | 0.00 KM |
| Blairadam Crescent | £ 0 | 0 | 0.00 KM |
Nearby Transport
| Name | NLC | TLC | Distance |
|---|---|---|---|
| Cowdenbeath | 9185 | COW | 4.20 KM |
| Lochgelly | 9156 | LCG | 6.35 KM |
| Dunfermline Queen Margaret | 9186 | DFL | 8.58 KM |
Nearby Listings
| Address | Price | Type | Score | Distance |
|---|---|---|---|---|
| Limepark Crescent, Kelty, KY4 | £ 205,000 | BUY | 7 / 10 | 0.00 KM |
| Great North Road, Kelty, KY4 | £ 179,000 | BUY | 6 / 10 | 0.18 KM |
| 13, Seafar Drive, Kelty, Fife, KY4 0JX | £ 378,000 | BUY | Unknown | 0.27 KM |
| 15 Rowan Lea, Kelty, KY4 0FY | £ 259,950 | BUY | Unknown | 0.41 KM |
| 21 Bluebell Grove, Kelty, KY4 0GX | £ 220,000 | BUY | 7 / 10 | 0.41 KM |