Noble Drive, West End, Woking, Surrey, GU24
By Seymours Estate Agents
£ 485,000
Reviews
3 out of 5 stars
Seymours Estate Agents says ..
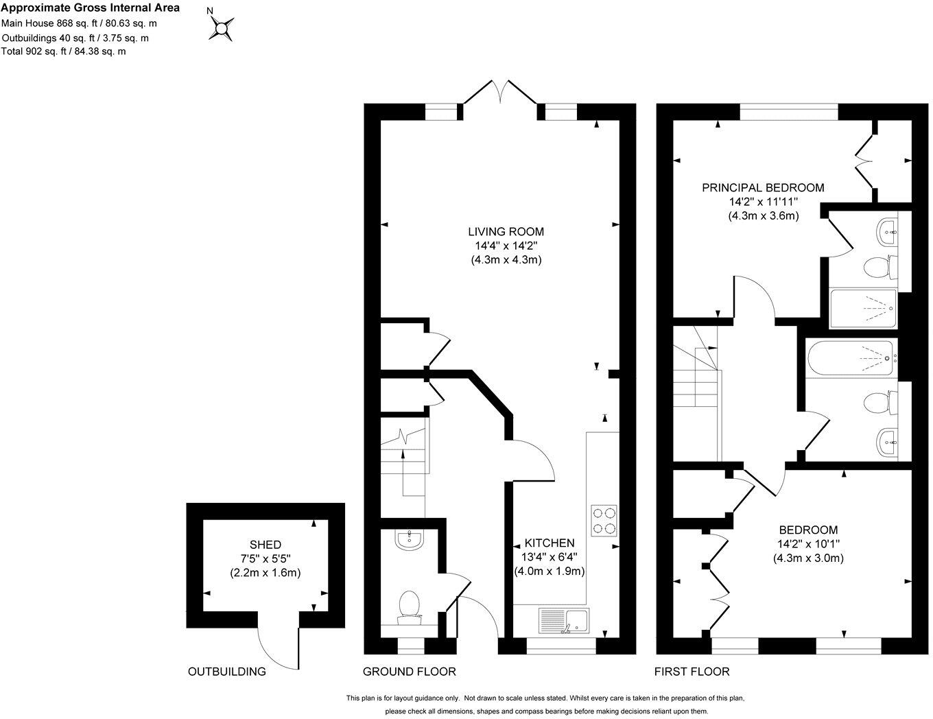
This beautifully presented semi-detached home occupies an enviable position within the sought-after, recently built Oaks Meadow Development in West End and is offered to the market in excellent condition throughout. Finished to an exceptional standard, the property offers well balanced accom...
Property Oracle says ..
This semi-detached property on Noble Drive in West End, Woking, presents a well-maintained and modern living space. The house features two bedrooms and two bathrooms, making it suitable for a small family or couple. The interior boasts a contemporary design, with updated kitchen and bathroom facilities. The presence of a garden with a patio and shed adds to the appeal, offering a private outdoor area. Its location provides a balance between suburban calm and accessibility to local amenities and schools. Overall, this property offers a comfortable and convenient living environment in a desirable Surrey location.
Therefore, we give this property 7 / 10. *Disclaimer: This is our option and does constitute a recommendation or financial advice. Do your own research. *
- Price
- 7
- Condition
- 8
- Location
- 7
- Land
- 7
- Bedrooms
- 2
- Bathrooms
- 2
- Sqft (est)
- 623.00
The heatmap indicates the level of crime in the area. The color of the heatmap indicates the crime severity and recency.
Metrics Year-on-Year
- Average area value
- 644,188.00 £Increased by 3.54 %
- Est sale value
- 264,152.00 £Decreased by 26.64 %
- Average area rental value
- 2,466.00 £/moDecreased by 21.84 %
- Est letting value
- 623.00 £/moDecreased by 50.00 %
- Est rental Yield
- 4.59 %Decreased by 24.63 %
- Crime Rate
- 19.00 %Unchanged by 0.00 %
Agent Activity
Seymours Estate Agents created the listing.
Nearby Schools
| Name | Type | Ofsted | Distance |
|---|---|---|---|
| Holy Trinity Cofe Primary School | Academy Converter | 0.67 KM | |
| Bisley Cofe Primary School | Voluntary Aided School | Good | 1.16 KM |
| Gordon'S School | Academy Converter | Outstanding | 1.59 KM |
| Knaphill School | Academy Converter | 2.39 KM | |
| The Knaphill Lower School | Academy Converter | 2.48 KM |
Images
Nearby Streets
| Name | Average Price | Average Sqft | Distance |
|---|---|---|---|
| Queens Place | £ 0 | 0 | 0.00 KM |
| Sarsen Court | £ 625,000 | 0 | 0.00 KM |
| Iris Drive | £ 0 | 0 | 0.00 KM |
| Strawberry Fields | £ 925,000 | 0 | 0.00 KM |
Nearby Transport
| Name | NLC | TLC | Distance |
|---|---|---|---|
| Brookwood | 5687 | BKO | 3.47 KM |
| Sunningdale | 5671 | SNG | 6.35 KM |
| Bagshot | 5681 | BAG | 6.77 KM |
| Longcross | 5674 | LNG | 7.16 KM |
| Worplesdon | 5686 | WPL | 7.73 KM |
Nearby Listings
| Address | Price | Type | Score | Distance |
|---|---|---|---|---|
| Noble Drive, West End, Woking, Surrey, GU24 | £ 485,000 | BUY | 7 / 10 | 0.00 KM |
| Noble Drive, West End, Woking, Surrey, GU24 | £ 475,000 | BUY | Unknown | 0.00 KM |
| Kings Court, West End, Woking, Surrey, GU24 | £ 475,000 | BUY | 7 / 10 | 0.07 KM |
| Noble Drive, West End, Woking, GU24 | £ 550,000 | BUY | 8 / 10 | 0.09 KM |
| Kings Close, West End, Woking, Surrey, GU24 | £ 625,000 | BUY | 8 / 10 | 0.12 KM |
Nearby Properties
| Address | Price | Distance |
|---|---|---|
| 58 Kings Road | £ 550,000 | 0.15 KM |
| 50 Kings Road | £ 525,000 | 0.15 KM |
| 45 Kings Road | £ 410,000 | 0.15 KM |
| 33 Kings Road | £ 500,000 | 0.15 KM |
| 49 Kings Road | £ 355,000 | 0.15 KM |