Chestnut Close, Rushden
Oscar James logo

Chestnut Close, Rushden

By Oscar James

£ 550,000

Reviews

3 out of 5 stars

Oscar James says ..

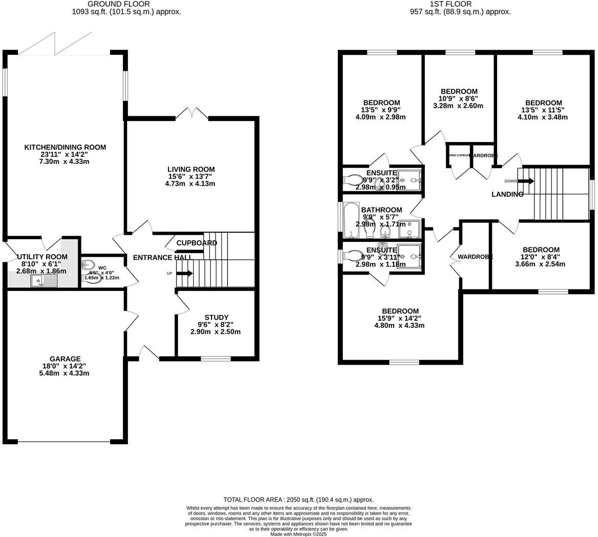
This stunning, executive detached home is situated in a cul-de-sac in Rushden, within walking distance of the popular Rushden Lakes shopping & leisure complex. Immaculately presented throughout, the current owners have tastefully upgraded every detail, creating a luxurious family home. From the m...

Property Oracle says ..

A modern detached property in Rushden, Northamptonshire. The property is well-maintained and benefits from a garden. It is located within a reasonable distance of schools and transportation links.

Therefore, we give this property 7 / 10. *Disclaimer: This is our option and does constitute a recommendation or financial advice. Do your own research. *

Price
6
Condition
9
Location
7
Land
7
Bedrooms
5
Bathrooms
4
Sqft (est)
1,559.38

The heatmap indicates the level of crime in the area. The color of the heatmap indicates the crime severity and recency.

Metrics Year-on-Year

Average area value
305,421.00 £
Increased by 25.02 %
from 244,293.00 £
Est sale value
463,135.86 £
Decreased by 1.00 %
from 467,814.00 £
Average area rental value
928.00 £/mo
Decreased by 3.53 %
from 962.00 £/mo
Est letting value
0.00 £/mo
Decreased by 100.00 %
from 1,559.38 £/mo
Est rental Yield
3.65 %
Decreased by 22.83 %
from 4.73 %
Crime Rate
6.00 %
Unchanged by 0.00 %
from 6.00 %

Agent Activity

  • Oscar James created the listing.

Nearby Schools

NameTypeOfstedDistance
Tennyson Road Infant SchoolCommunity SchoolRequires improvement0.67 KM
Rushden AcademyAcademy Sponsor Led0.77 KM
Rushden Children'S CentreChildren's Centre1.15 KM
Whitefriars Primary SchoolCommunity SchoolGood1.22 KM
Alfred Street Junior School, RushdenCommunity SchoolRequires improvement1.41 KM

Images

home-1047.jpg home-1001.jpg home-1032.jpg home-0997.jpg home-1023.jpg home-1036.jpg home-1040.jpg home-1037.jpg home-1024.jpg home-1025.jpg home-1042.jpg home-1029.jpg home-1026.jpg home-1027.jpg home-1028.jpg home-1031.jpg home-1045.jpg home-1044.jpg home-1043.jpg

Nearby Streets

NameAverage PriceAverage SqftDistance
Beech Grove £ 741,66700.00 KM
Sandpiper Close £ 000.00 KM
Pochard Street £ 325,00000.00 KM
West Crescent £ 000.00 KM
Shakespeare Road £ 210,00000.00 KM

Nearby Transport

NameNLCTLCDistance
Wellingborough1940WEL7.31 KM

Nearby Listings

AddressPriceTypeScoreDistance
Chestnut Close, Rushden £ 550,000BUY7 / 100.00 KM
Wellingborough Road, Rushden, NN10 9XP £ 475,000BUY7 / 100.11 KM
Oakley Road, Rushden £ 200,000BUY6 / 100.12 KM
Wildman Court, Rushden £ 110,000BUY5 / 100.13 KM
Wellingborough Road, Rushden, Northants, NN10 £ 550,000BUY6 / 100.18 KM

Nearby Properties

AddressPriceDistance
4c Chestnut Close £ 55,5000.06 KM
4b Chestnut Close £ 123,5000.06 KM
264 Wellingborough Road £ 425,0000.12 KM
268 Wellingborough Road £ 187,5000.12 KM
256 Wellingborough Road £ 155,0000.12 KM