RE
St. Josephs Close, Shaw, OL2
By Revilo Homes Ltd
£ 279,950
Reviews
3 out of 5 stars
Revilo Homes Ltd says ..
An invitation for viewings is welcomed, as experiencing the property firsthand is the best way to fully appreciate its unique charm and potential. Don't miss out on the opportunity.
Property Oracle says ..
Therefore, we give this property 7 / 10. *Disclaimer: This is our option and does constitute a recommendation or financial advice. Do your own research. *
- Price
- 6
- Condition
- 7
- Location
- 7
- Land
- 8
- Bedrooms
- 3
- Bathrooms
- 2
- Sqft (est)
- 1,032.26
The heatmap indicates the level of crime in the area. The color of the heatmap indicates the crime severity and recency.
Metrics Year-on-Year
- Average area value
- 256,741.00 £Decreased by 11.11 %
- Est sale value
- 372,645.86 £Increased by 37.79 %
- Average area rental value
- 1,045.00 £/moIncreased by 8.52 %
- Est letting value
- 1,032.26 £/mo
- Est rental Yield
- 4.88 %Increased by 22.00 %
- Crime Rate
- 41.00 %Unchanged by 0.00 %
from 288,824.00 £
from 270,452.12 £
from 963.00 £/mo
from 0.00 £/mo
from 4.00 %
from 41.00 %
Agent Activity
Revilo Homes Ltd created the listing.
Nearby Schools
| Name | Type | Ofsted | Distance |
|---|---|---|---|
| East Crompton St James Cofe Primary School | Voluntary Aided School | Good | 0.49 KM |
| Rushcroft Primary School | Community School | Good | 0.67 KM |
| Beal Vale Primary School | Academy Converter | 0.76 KM | |
| East Crompton St George'S Cofe School | Academy Converter | Good | 0.90 KM |
| Buckstones Primary School | Community School | Outstanding | 0.93 KM |
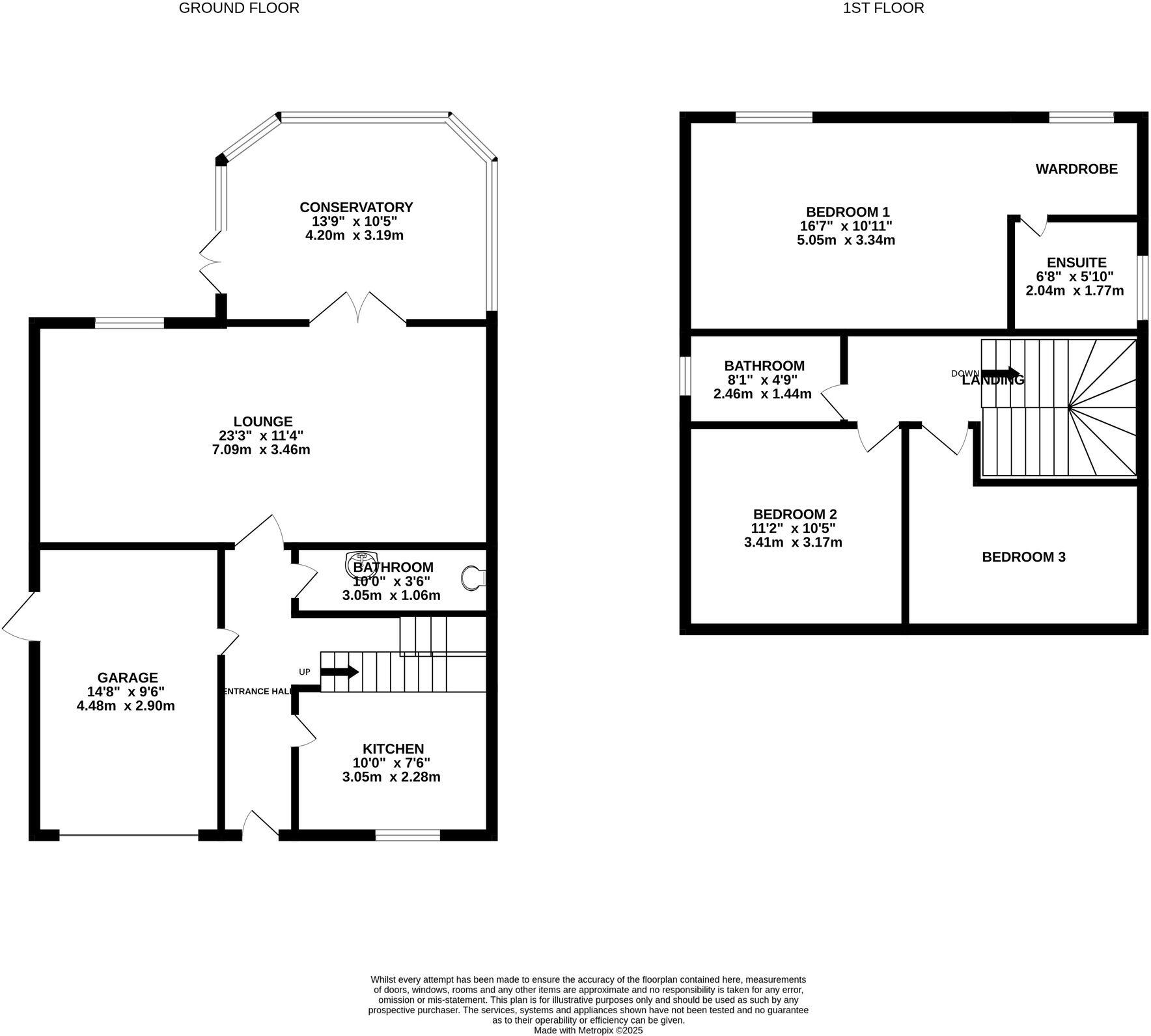
Images
Nearby Streets
| Name | Average Price | Average Sqft | Distance |
|---|---|---|---|
| St Joseph's Close | £ 0 | 0 | 0.00 KM |
| Napier Street | £ 150,000 | 0 | 0.00 KM |
| Gilderdale Close | £ 0 | 0 | 0.00 KM |
| Kingston Close | £ 175,000 | 0 | 0.00 KM |
| Rutland Way | £ 0 | 0 | 0.00 KM |
Nearby Transport
| Name | NLC | TLC | Distance |
|---|---|---|---|
| Smithy Bridge | 2660 | SMB | 6.05 KM |
| Littleborough | 2661 | LTL | 6.60 KM |
| Rochdale | 2924 | RCD | 7.55 KM |
| Mossley (Manchester) | 2903 | MSL | 9.41 KM |
| Mills Hill (Manchester) | 2920 | MIH | 9.64 KM |
Nearby Listings
| Address | Price | Type | Score | Distance |
|---|---|---|---|---|
| St. Josephs Close, Shaw, OL2 | £ 279,950 | BUY | 7 / 10 | 0.00 KM |
| St Josephs Close, Shaw, Oldham, Greater Manchester, OL2 | £ 299,950 | BUY | 8 / 10 | 0.01 KM |
| St. Josephs Close, Oldham, OL2 | £ 310,000 | BUY | 7 / 10 | 0.01 KM |
| St. Josephs Close, Oldham | £ 289,950 | BUY | 8 / 10 | 0.01 KM |
| St. Josephs Close, Shaw, Oldham | £ 225,000 | BUY | 7 / 10 | 0.04 KM |
Nearby Properties
| Address | Price | Distance |
|---|---|---|
| 9 St Josephs Close | £ 140,000 | 0.01 KM |
| 17 St Josephs Close | £ 188,000 | 0.01 KM |
| 23 St Josephs Close | £ 160,000 | 0.01 KM |
| 15 St Josephs Close | £ 166,000 | 0.01 KM |
| 8 St Josephs Close | £ 85,400 | 0.01 KM |