holland & odam says ..
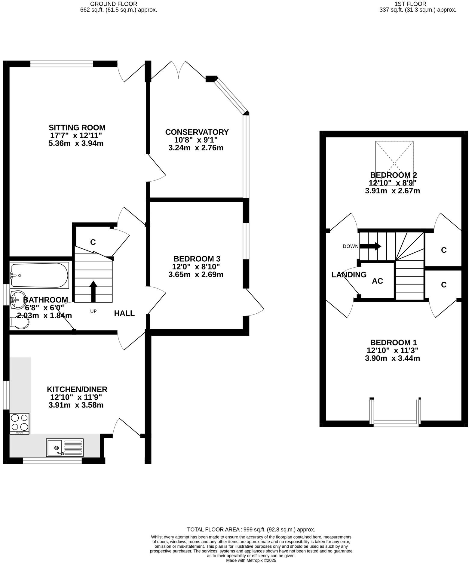
A detached and extended house set in a residential development within easy reach of the city centre and with the one of the largest gardens in the Close and two allocated, adjacent parking spaces. The accommodation is well planned and can provide ground floor living if required. No onward chain.
Property Oracle says ..
This detached property on Walnut Tree Close, Wells, offers three bedrooms and one bathroom. While the property requires some modernisation, it benefits from a garden and off-street parking. The location is convenient, with nearby schools and local amenities. The property is listed for £325,000, which appears to be a fair price given the condition and location.
Therefore, we give this property 6 / 10. *Disclaimer: This is our option and does constitute a recommendation or financial advice. Do your own research. *
- Price
- 7
- Condition
- 5
- Location
- 7
- Land
- 6
- Bedrooms
- 3
- Bathrooms
- 1
The heatmap indicates the level of crime in the area. The color of the heatmap indicates the crime severity and recency.
Metrics Year-on-Year
- Average area value
- 399,806.00 £Decreased by 23.85 %
- Average area rental value
- 1,049.00 £/moIncreased by 3.76 %
- Est rental Yield
- 3.15 %Increased by 36.36 %
- Crime Rate
- 13.00 %Unchanged by 0.00 %
Agent Activity
holland & odam created the listing.
Nearby Schools
| Name | Type | Ofsted | Distance |
|---|---|---|---|
| The Blue School | Academy Converter | Good | 0.34 KM |
| St Cuthbert'S Cofe Junior School | Voluntary Controlled School | Requires improvement | 0.93 KM |
| Wells Building | Children's Centre Linked Site | 0.94 KM | |
| St Cuthbert'S Church Of England Academy Infants And Pre-School | Academy Converter | Good | 0.98 KM |
| Wells Cathedral School | Other Independent School | 1.50 KM |
Images
Nearby Streets
| Name | Average Price | Average Sqft | Distance |
|---|---|---|---|
| Davies Court | £ 0 | 0 | 0.00 KM |
| Wookey Hole Road | £ 580,000 | 0 | 0.00 KM |
| Westfield Road | £ 0 | 0 | 0.00 KM |
| Melrose Court | £ 0 | 0 | 0.00 KM |
| Valley Close | £ 0 | 0 | 0.00 KM |
Nearby Listings
| Address | Price | Type | Score | Distance |
|---|---|---|---|---|
| Walnut Tree Close, Wells | £ 325,000 | BUY | 6 / 10 | 0.00 KM |
| Walnut Tree Close, Wells, BA5 | £ 275,000 | BUY | 6 / 10 | 0.03 KM |
| Welsford Avenue, Wells, BA5 | £ 350,000 | BUY | 7 / 10 | 0.10 KM |
| Welsford Avenue, Wells, Somerset | £ 285,000 | BUY | Unknown | 0.13 KM |
| Mary Road, Wells, BA5 | £ 440,000 | BUY | 6 / 10 | 0.14 KM |
Nearby Properties
| Address | Price | Distance |
|---|---|---|
| 7 Walnut Tree Close | £ 54,000 | 0.02 KM |
| 9 Walnut Tree Close | £ 250,000 | 0.04 KM |
| 6 Walnut Tree Close | £ 156,000 | 0.04 KM |
| 4 Walnut Tree Close | £ 160,000 | 0.04 KM |
| 12 Blake Road | £ 250,000 | 0.06 KM |