Central Reading, Berkshire, RG1
By Chancellors
£ 280,000
Reviews
3 out of 5 stars
Chancellors says ..
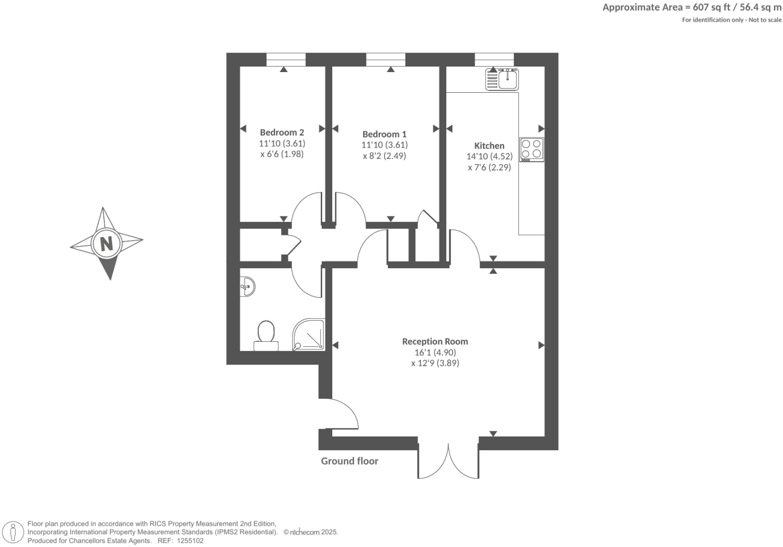
Set in this Iconic building, convenient for Town Centre, University and Hospital is this two double bedroom apartment with open living / dining room, kitchen with appliances, bathroom, refitted bathroom. Almost an acre of communal grounds and No chain
Property Oracle says ..
This property is a 2-bedroom flat located in central Reading, Berkshire. The flat is modern and well-presented, with a contemporary kitchen and bathroom. The location is excellent, within easy reach of Reading town centre and its amenities, as well as good transport links. While the property itself is in good condition, the small plot size is a notable factor. The list price is slightly below the average price for the area, but considering the smaller size of the property compared to the average, it seems reasonably priced.
Therefore, we give this property 7 / 10. *Disclaimer: This is our option and does constitute a recommendation or financial advice. Do your own research. *
- Price
- 8
- Condition
- 9
- Location
- 10
- Land
- 3
- Bedrooms
- 2
- Bathrooms
- 1
- Sqft (est)
- 139.00
- Lot (est)
- 607.00
The heatmap indicates the level of crime in the area. The color of the heatmap indicates the crime severity and recency.
Metrics Year-on-Year
- Average area value
- 350,323.00 £Decreased by 1.18 %
- Est sale value
- 59,909.00 £Increased by 20.73 %
- Average area rental value
- 1,334.00 £/moDecreased by 2.49 %
- Est letting value
- 139.00 £/moUnchanged by 0.00 %
- Est rental Yield
- 4.57 %Decreased by 1.30 %
- Crime Rate
- 10.00 %Unchanged by 0.00 %
Agent Activity
Chancellors created the listing.
Nearby Schools
| Name | Type | Ofsted | Distance |
|---|---|---|---|
| The Deenway Montessori School | Other Independent School | Good | 0.21 KM |
| Kendrick School | Academy Converter | 0.24 KM | |
| The Abbey School Reading | Other Independent School | 0.31 KM | |
| Red Balloon Learner Centre Reading | Other Independent School | 0.56 KM | |
| Trinity Christian School | Other Independent School | 0.88 KM |
Images
Nearby Streets
| Name | Average Price | Average Sqft | Distance |
|---|---|---|---|
| London Road | £ 0 | 0 | 0.00 KM |
| Queen's Road | £ 259,950 | 0 | 0.00 KM |
| Queens Road | £ 287,000 | 0 | 0.00 KM |
| Queens Road | £ 368,000 | 0 | 0.00 KM |
| Highgrove Terrace | £ 0 | 0 | 0.00 KM |
Nearby Transport
| Name | NLC | TLC | Distance |
|---|---|---|---|
| Reading | 3149 | RDG | 1.35 KM |
| Reading West | 3160 | RDW | 3.12 KM |
| Earley | 5694 | EAR | 5.02 KM |
| Tilehurst | 3154 | TLH | 7.81 KM |
| Winnersh Triangle | 5698 | WTI | 8.00 KM |
Nearby Listings
| Address | Price | Type | Score | Distance |
|---|---|---|---|---|
| Central Reading, Berkshire, RG1 | £ 280,000 | BUY | 7 / 10 | 0.00 KM |
| Reading, Berkshire, RG1 | £ 280,000 | BUY | 7 / 10 | 0.01 KM |
| St Laurence Hall, 16 London Road, Reading, Berkshire, RG1 | £ 400,000 | BUY | Unknown | 0.03 KM |
| London Road, Reading | £ 350,000 | BUY | 7 / 10 | 0.05 KM |
| London Road, Reading, Berkshire, RG1 | £ 270,000 | BUY | Unknown | 0.06 KM |
Nearby Properties
| Address | Price | Distance |
|---|---|---|
| 1 Boult Street | £ 86,500 | 0.10 KM |
| 5 Boult Street | £ 294,000 | 0.10 KM |
| 3 Boult Street | £ 210,000 | 0.10 KM |
| 8 Boult Street | £ 233,000 | 0.10 KM |
| 27 The Grove | £ 485,000 | 0.10 KM |