Valley View Road, Rochester, ME1
By Greyfox Estate Agents
£ 340,000
Reviews
3 out of 5 stars
Greyfox Estate Agents says ..
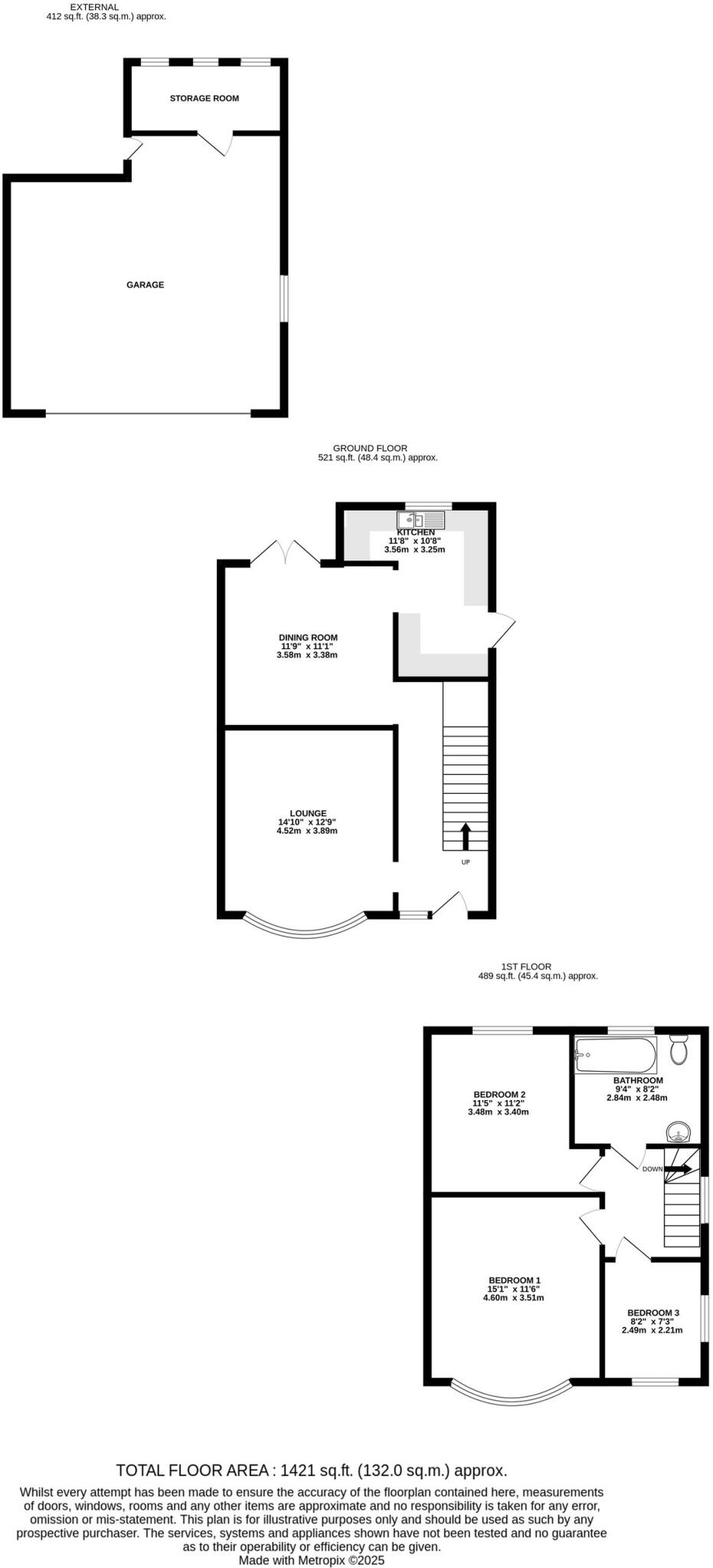
Being offered with no forward chain is this three bedroom 1930s home. The property has lots of potential and if you are looking for a project to place your own creative stamp then this would be ideal. The property sits on a good size plot and there is the opportunity to extend subject to relev...
Property Oracle says ..
This semi-detached property on Valley View Road, Rochester, presents a good opportunity for buyers. While it requires some modernisation, it benefits from a garden and is located within a reasonable distance of schools and transportation links. The property is listed at £340,000, which is slightly above the average for the area, reflecting its potential and location. The property offers three bedrooms and one bathroom, making it suitable for families or couples.
Therefore, we give this property 6 / 10. *Disclaimer: This is our option and does constitute a recommendation or financial advice. Do your own research. *
- Price
- 6
- Condition
- 5
- Location
- 7
- Land
- 7
- Bedrooms
- 3
- Bathrooms
- 1
The heatmap indicates the level of crime in the area. The color of the heatmap indicates the crime severity and recency.
Metrics Year-on-Year
- Average area value
- 265,071.00 £Decreased by 34.02 %
- Average area rental value
- 1,344.00 £/moDecreased by 2.33 %
- Est rental Yield
- 6.08 %Increased by 47.93 %
- Crime Rate
- 3.00 %Unchanged by 0.00 %
Agent Activity
Greyfox Estate Agents created the listing.
Nearby Schools
| Name | Type | Ofsted | Distance |
|---|---|---|---|
| Sir Joseph Williamson'S Mathematical School | Academy Converter | 0.45 KM | |
| St William Of Perth Roman Catholic Primary School | Voluntary Aided School | Good | 0.59 KM |
| The Rochester Grammar School | Academy Converter | 0.72 KM | |
| Medway Secure Training Centre | Secure Units | 0.90 KM | |
| The Thomas Aveling School | Academy Converter | Good | 1.10 KM |
Images
Nearby Streets
| Name | Average Price | Average Sqft | Distance |
|---|---|---|---|
| Pennant Road | £ 0 | 0 | 0.00 KM |
| Anchor Road | £ 365,000 | 0 | 0.00 KM |
| Frobisher Gardens | £ 0 | 0 | 0.00 KM |
| Leander Road | £ 0 | 0 | 0.00 KM |
| Hooper's Place | £ 0 | 0 | 0.00 KM |
Nearby Transport
| Name | NLC | TLC | Distance |
|---|---|---|---|
| Rochester | 5203 | RTR | 2.46 KM |
| Strood (Kent) | 5191 | SOO | 3.03 KM |
| Chatham | 5199 | CTM | 3.16 KM |
| Cuxton | 5201 | CUX | 3.66 KM |
| Halling | 5173 | HAI | 5.82 KM |
Nearby Listings
| Address | Price | Type | Score | Distance |
|---|---|---|---|---|
| Valley View Road, Rochester, ME1 | £ 340,000 | BUY | 6 / 10 | 0.00 KM |
| Valley View Road, Rochester, Kent | £ 340,000 | BUY | 6 / 10 | 0.01 KM |
| Valley View Road, Rochester | £ 165,000 | BUY | 7 / 10 | 0.10 KM |
| Secretan Road, Rochester, Kent, ME1 | £ 190,000 | BUY | 4 / 10 | 0.12 KM |
| 13 SIR EVELYN ROAD, ROCHESTER | £ 370,000 | BUY | Unknown | 0.14 KM |
Nearby Properties
| Address | Price | Distance |
|---|---|---|
| 76 Valley View Road | £ 290,000 | 0.01 KM |
| 101 Valley View Road | £ 167,000 | 0.01 KM |
| 79 Valley View Road | £ 390,000 | 0.01 KM |
| 83 Valley View Road | £ 311,000 | 0.01 KM |
| 88 Valley View Road | £ 249,000 | 0.01 KM |