Wooldeys Road, Gillingham, Kent, ME8
By Phoenix Property Services
£ 360,000
Reviews
3 out of 5 stars
Phoenix Property Services says ..
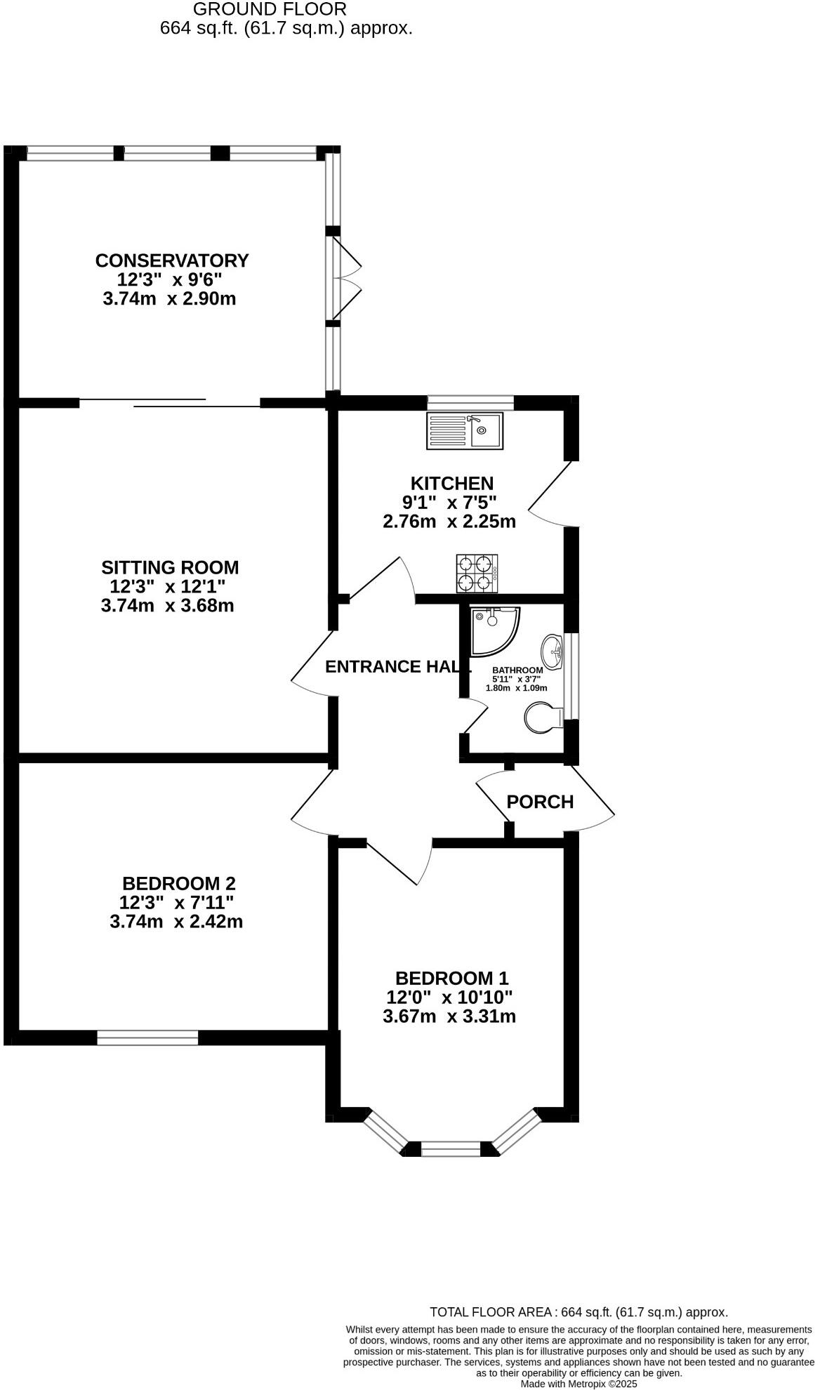
2 Bedroom, Semi-Detached Bungalow, Conservatory, Garage, EPC Rating D, Council Tax Band D
Property Oracle says ..
This property is a 2-bedroom bungalow located in Rainham, Kent. The location benefits from being close to Rainham railway station, providing convenient access to London and other areas. Several primary schools with good Ofsted ratings are also within a reasonable distance. The property itself appears to be in reasonable condition, although some minor cosmetic updates may be desirable. The garden is of a manageable size, and there is off-street parking. The list price of £360,000 is slightly below the average price for the area, but it is important to consider the smaller size of this property compared to the average. While the property is not in need of major renovations, some updating could improve its value.
Therefore, we give this property 7 / 10. *Disclaimer: This is our option and does constitute a recommendation or financial advice. Do your own research. *
- Price
- 7
- Condition
- 7
- Location
- 8
- Land
- 6
- Bedrooms
- 2
- Bathrooms
- 1
- Sqft (est)
- 664.13
The heatmap indicates the level of crime in the area. The color of the heatmap indicates the crime severity and recency.
Metrics Year-on-Year
- Average area value
- 405,000.00 £Increased by 14.70 %
- Est sale value
- 263,659.61 £Increased by 5.03 %
- Average area rental value
- 1,825.00 £/moIncreased by 1.45 %
- Est letting value
- 664.13 £/moUnchanged by 0.00 %
- Est rental Yield
- 5.41 %Decreased by 11.46 %
- Crime Rate
- 2.00 %Unchanged by 0.00 %
Agent Activity
Phoenix Property Services created the listing.
Nearby Schools
| Name | Type | Ofsted | Distance |
|---|---|---|---|
| Riverside Primary School | Academy Converter | Good | 0.98 KM |
| Riverside Children'S Centre | Children's Centre | 1.03 KM | |
| St Margaret'S Infant School | Academy Converter | Good | 1.21 KM |
| St Margaret'S Church Of England Junior School | Academy Converter | Good | 1.21 KM |
| Thames View Primary School | Academy Converter | Good | 1.37 KM |
Images
Nearby Streets
| Name | Average Price | Average Sqft | Distance |
|---|---|---|---|
| Sunderland Drive | £ 0 | 0 | 0.00 KM |
| Thames Avenue | £ 0 | 0 | 0.00 KM |
| Endeavour Drive | £ 0 | 0 | 0.00 KM |
| Beata Gardens | £ 525,000 | 0 | 0.00 KM |
| Blackthorne Road | £ 325,000 | 0 | 0.00 KM |
Nearby Transport
| Name | NLC | TLC | Distance |
|---|---|---|---|
| Rainham (Kent) | 5177 | RAI | 0.42 KM |
| Newington | 5175 | NGT | 6.58 KM |
| Gillingham (Kent) | 5169 | GLM | 7.05 KM |
Nearby Listings
| Address | Price | Type | Score | Distance |
|---|---|---|---|---|
| Wooldeys Road, Rainham, Gillingham | £ 360,000 | BUY | 7 / 10 | 0.00 KM |
| Wooldeys Road, Gillingham, Kent, ME8 | £ 360,000 | BUY | 7 / 10 | 0.00 KM |
| Wooldeys Road, Rainham, Gillingham, ME8 | £ 350,000 | BUY | 7 / 10 | 0.01 KM |
| Bushmeadow Road, Rainham, Gillingham | £ 350,000 | BUY | 6 / 10 | 0.06 KM |
| Broomcroft Road, Rainham, Gillingham, Kent, ME8 | £ 400,000 | BUY | 7 / 10 | 0.09 KM |
Nearby Properties
| Address | Price | Distance |
|---|---|---|
| 4 Wooldeys Road | £ 225,000 | 0.00 KM |
| 25 Wooldeys Road | £ 385,000 | 0.00 KM |
| 26 Wooldeys Road | £ 227,000 | 0.00 KM |
| 2 Wooldeys Road | £ 310,000 | 0.00 KM |
| 10 Wooldeys Road | £ 280,000 | 0.00 KM |