Elston Road, Aldershot, Hampshire, GU12
By Bridges Estate Agents
£ 200,000
Reviews
3 out of 5 stars
Bridges Estate Agents says ..
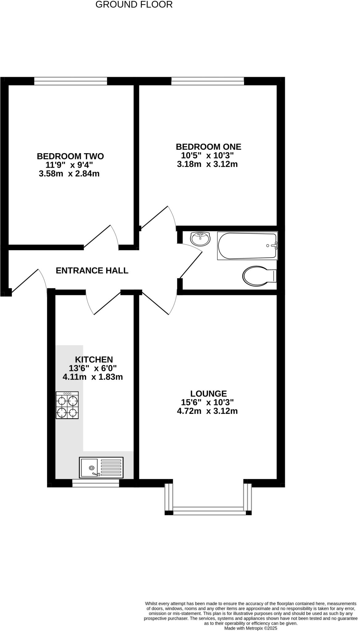
A two bedroom ground floor apartment situated in a sought after location, offered to the market with no onward chain. Accessed via a communal entrance, the accommodation comprises a welcoming entrance hall, a spacious lounge/dining room, and a well presented kitchen. Alongside the prin...
Property Oracle says ..
This is a 2-bedroom flat located on Elston Road, Aldershot. The property is listed for £200,000. While the internal photos suggest that the property would benefit from some modernisation, it does have a garden. The location is reasonably convenient, with access to nearby schools and transportation links. Considering the price in relation to the location and condition, this property could be a good investment for first-time buyers or investors willing to undertake some renovation work.
Therefore, we give this property 6 / 10. *Disclaimer: This is our option and does constitute a recommendation or financial advice. Do your own research. *
- Price
- 8
- Condition
- 5
- Location
- 6
- Land
- 7
- Bedrooms
- 2
- Bathrooms
- 1
- Sqft (est)
- 455.71
The heatmap indicates the level of crime in the area. The color of the heatmap indicates the crime severity and recency.
Metrics Year-on-Year
- Average area value
- 250,000.00 £Increased by 29.42 %
- Est sale value
- 136,257.29 £Increased by 32.89 %
- Average area rental value
- 833.00 £/moDecreased by 23.08 %
- Est letting value
- 0.00 £/moDecreased by 100.00 %
- Est rental Yield
- 4.00 %Decreased by 40.56 %
- Crime Rate
- 7.00 %Unchanged by 0.00 %
Agent Activity
Bridges Estate Agents created the listing.
Nearby Schools
| Name | Type | Ofsted | Distance |
|---|---|---|---|
| St Michael'S Church Of England Controlled Junior School | Voluntary Controlled School | Requires improvement | 0.39 KM |
| Park Primary School | Community School | Good | 0.59 KM |
| St Michael'S Church Of England Controlled Infant School | Voluntary Controlled School | Outstanding | 0.65 KM |
| Sunflowers Children'S Centre | Children's Centre Linked Site | 0.70 KM | |
| Maple Vue Children'S Centre | Children's Centre | 1.09 KM |
Images
Nearby Streets
| Name | Average Price | Average Sqft | Distance |
|---|---|---|---|
| Orchard Way | £ 400,000 | 0 | 0.00 KM |
| Churchill Avenue | £ 566,667 | 0 | 0.00 KM |
| Newport Road | £ 307,778 | 0 | 0.00 KM |
| Church Road | £ 395,000 | 0 | 0.00 KM |
| Church Hill | £ 90,000 | 0 | 0.00 KM |
Nearby Transport
| Name | NLC | TLC | Distance |
|---|---|---|---|
| Aldershot | 5623 | AHT | 1.15 KM |
| Ash | 5641 | ASH | 4.32 KM |
| North Camp | 5636 | NCM | 4.42 KM |
| Ash Vale | 5547 | AHV | 4.74 KM |
| Farnham | 5545 | FNH | 5.63 KM |
Nearby Listings
| Address | Price | Type | Score | Distance |
|---|---|---|---|---|
| Elston Road, Aldershot, Hampshire, GU12 | £ 200,000 | BUY | 6 / 10 | 0.00 KM |
| Elston Road, Aldershot, Hampshire, GU12 | £ 500,000 | BUY | 7 / 10 | 0.03 KM |
| Elston Road, Aldershot, Hampshire, GU12 | £ 210,000 | BUY | 5 / 10 | 0.03 KM |
| Elston Road, Aldershot, Hampshire, GU12 | £ 450,000 | BUY | 6 / 10 | 0.05 KM |
| Elston Road, Aldershot, Hampshire, GU12 | £ 450,000 | BUY | 7 / 10 | 0.07 KM |
Nearby Properties
| Address | Price | Distance |
|---|---|---|
| 7 Elston Road | £ 420,000 | 0.08 KM |
| 22 Elston Road | £ 197,000 | 0.08 KM |
| 29 Elston Road | £ 299,995 | 0.08 KM |
| 16 Elston Road | £ 350,000 | 0.08 KM |
| 4 Elston Road | £ 299,950 | 0.08 KM |