Martin & Co says ..
Elegant Period Conversion With Garden in Central Vauxhall
Property Oracle says ..
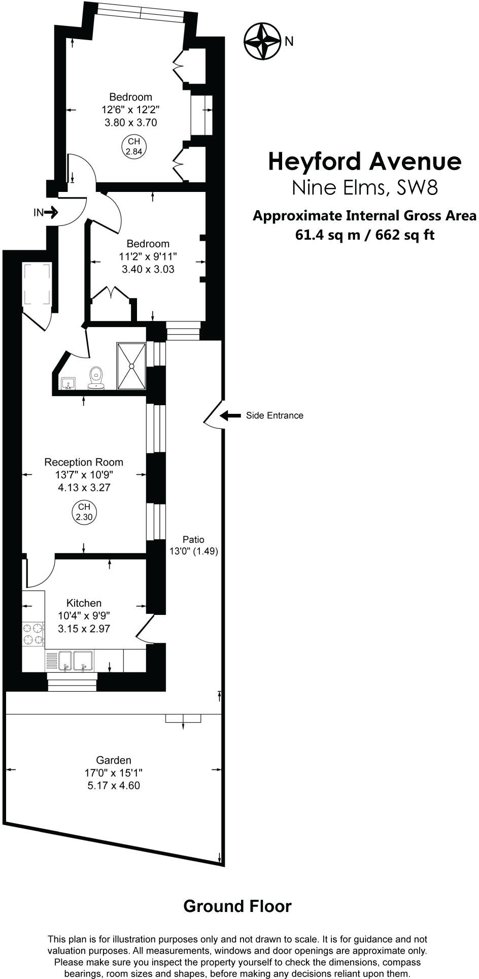
This ground floor flat is located on Heyford Avenue in the Vauxhall area of Lambeth, London. The property benefits from a modern interior and a well-maintained private garden. The location is convenient, with Vauxhall train station within walking distance, providing easy access to central London. Several highly-rated primary schools are also nearby. While the property is smaller than the average in the area at 675 sqft, the list price of £675,000 appears reasonable when compared to similar properties in the area. The average price per sqft in the local area is £1,667, and this property is priced slightly below that average.
Therefore, we give this property 8 / 10. *Disclaimer: This is our option and does constitute a recommendation or financial advice. Do your own research. *
- Price
- 8
- Condition
- 9
- Location
- 9
- Land
- 8
- Bedrooms
- 2
- Bathrooms
- 1
- Sqft (est)
- 675.00
- Lot (est)
- 662.00
The heatmap indicates the level of crime in the area. The color of the heatmap indicates the crime severity and recency.
Metrics Year-on-Year
- Average area value
- 1,317,905.00 £Decreased by 10.65 %
- Est sale value
- 1,279,800.00 £Increased by 28.72 %
- Average area rental value
- 2,872.00 £/moDecreased by 3.72 %
- Est letting value
- 2,700.00 £/moIncreased by 100.00 %
- Est rental Yield
- 2.62 %Increased by 7.82 %
- Crime Rate
- 4.00 %Unchanged by 0.00 %
Agent Activity
Martin & Co created the listing.
Nearby Schools
| Name | Type | Ofsted | Distance |
|---|---|---|---|
| St Stephen'S Church Of England Primary School | Voluntary Aided School | Good | 0.13 KM |
| St Stephens Ce Primary School & Children'S Centre | Children's Centre | 0.14 KM | |
| Wyvil Primary School And Resource Bases For Speech, Language And Communication Needs, And Autism | Foundation School | Outstanding | 0.45 KM |
| Herbert Morrison Primary School | Community School | Outstanding | 0.53 KM |
| St Anne'S Catholic Primary School | Voluntary Aided School | Good | 0.61 KM |
Images
Nearby Streets
| Name | Average Price | Average Sqft | Distance |
|---|---|---|---|
| Walton Close | £ 0 | 0 | 0.00 KM |
| Bondway | £ 1,443,000 | 0 | 0.00 KM |
| Parry Street | £ 3,163,750 | 0 | 0.00 KM |
| Wyvil Road | £ 820,000 | 0 | 0.00 KM |
| Thorncroft Street | £ 0 | 0 | 0.00 KM |
Nearby Transport
| Name | NLC | TLC | Distance |
|---|---|---|---|
| Vauxhall | 5597 | VXH | 0.65 KM |
| Clapham High Street | 5301 | CLP | 2.07 KM |
| Brixton | 5081 | BRX | 2.08 KM |
| Wandsworth Road | 5372 | WWR | 2.21 KM |
| Loughborough Junction | 5082 | LGJ | 2.65 KM |
Nearby Listings
| Address | Price | Type | Score | Distance |
|---|---|---|---|---|
| Heyford Avenue, Vauxhall | £ 675,000 | BUY | 8 / 10 | 0.00 KM |
| Heyford Avenue, London, SW8 | £ 500,000 | BUY | 6 / 10 | 0.01 KM |
| Heyford Avenue, Oval, London, SW8 | £ 675,000 | BUY | 7 / 10 | 0.01 KM |
| Heyford Avenue, London, SW8 | £ 500,000 | BUY | 5 / 10 | 0.04 KM |
| Rita Road, Vauxhall | £ 600,000 | BUY | 5 / 10 | 0.06 KM |
Nearby Properties
| Address | Price | Distance |
|---|---|---|
| 73 Heyford Avenue | £ 145,000 | 0.02 KM |
| 65a Heyford Avenue | £ 630,000 | 0.02 KM |
| 63 Heyford Avenue | £ 320,000 | 0.02 KM |
| 69 Heyford Avenue | £ 462,500 | 0.02 KM |
| 83 Heyford Avenue | £ 435,000 | 0.02 KM |