Little Green Street, Kentish Town, London
SA

Little Green Street, Kentish Town, London

By Salter Rex

£ 1,250,000

Reviews

3 out of 5 stars

Salter Rex says ..

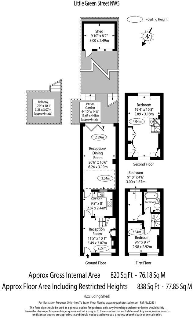
A charming and very characterful Grade II Listed Georgian terraced cottage, quietly tucked away on one of London’s last remaining Georgian cobbled streets, within a short walk of The Heath. Steeped in over 250 years of history, this delightful property has been sympathetically refurbishe...

Property Oracle says ..

Therefore, we give this property 7 / 10. *Disclaimer: This is our option and does constitute a recommendation or financial advice. Do your own research. *

Price
9
Condition
7
Location
8
Land
7
Bedrooms
3
Bathrooms
1
Sqft (est)
1,592.52

The heatmap indicates the level of crime in the area. The color of the heatmap indicates the crime severity and recency.

Metrics Year-on-Year

Average area value
1,296,250.00 £
Increased by 47.94 %
from 876,227.00 £
Est sale value
2,422,222.92 £
Increased by 136.18 %
from 1,025,582.88 £
Average area rental value
2,707.00 £/mo
Increased by 9.24 %
from 2,478.00 £/mo
Est letting value
4,777.56 £/mo
Increased by 200.00 %
from 1,592.52 £/mo
Est rental Yield
2.51 %
Decreased by 25.96 %
from 3.39 %
Crime Rate
4.00 %
Unchanged by 0.00 %
from 4.00 %

Agent Activity

  • Salter Rex created the listing.

Nearby Schools

NameTypeOfstedDistance
Acland Burghley SchoolCommunity SchoolGood0.50 KM
Parliament Hill SchoolCommunity SchoolGood0.56 KM
La Sainte Union Catholic Secondary SchoolVoluntary Aided SchoolGood0.66 KM
Eleanor Palmer Primary SchoolCommunity SchoolOutstanding0.71 KM
Gospel Oak Primary SchoolCommunity SchoolOutstanding0.72 KM

Images

52531_hi-res(15).jpg 52531_hi-res(2).jpg 52531_hi-res(6).jpg 52531_hi-res(8).jpg 52531_hi-res(30).jpg 52531_hi-res(32).jpg 52531_hi-res(17).jpg 52531_hi-res(12).jpg 52531_hi-res(11).jpg 52531_hi-res(7).jpg 52531_hi-res(13).jpg 52531_hi-res(18).jpg 52531_hi-res(19).jpg 52531_hi-res(16).jpg 52531_hi-res(20).jpg 52531_hi-res(14).jpg 52531_hi-res(01).jpg 52531_hi-res(3).jpg 52531_hi-res(4).jpg 52531_hi-res(5).jpg 52531_hi-res(9).jpg 52531_hi-res(10).jpg 52531_hi-res(21).jpg 52531_hi-res(23).jpg 52531_hi-res(25).jpg 52531_hi-res(26).jpg 52531_hi-res(27).jpg 52531_hi-res(28).jpg 52531_hi-res(29).jpg

Nearby Streets

NameAverage PriceAverage SqftDistance
Landing £ 000.00 KM
Gottfried Mews £ 000.00 KM
Spring Place £ 000.00 KM
Barrington Close £ 000.00 KM
Boris Nemtsov Place £ 4,500,00000.00 KM

Nearby Transport

NameNLCTLCDistance
Gospel Oak1409GPO0.60 KM
Kentish Town1553KTN0.80 KM
Kentish Town West1449KTW1.04 KM
Camden Road1440CMD1.72 KM
Upper Holloway1524UHL1.96 KM

Nearby Listings

AddressPriceTypeScoreDistance
Little Green Street, Kentish Town, London £ 1,250,000BUY7 / 100.00 KM
Highgate Road, Kentish Town £ 650,000BUY8 / 100.07 KM
Highgate Road, Dartmouth Park, NW5 £ 550,000BUY7 / 100.08 KM
Wiblin Mews, Kentish Town, London, NW5 £ 1,800,000BUY7 / 100.09 KM
Highgate Road, Kentish Town, London, NW5 £ 685,000BUYUnknown0.09 KM

Nearby Properties

AddressPriceDistance
8 Little Green Street £ 1,230,0000.01 KM
114b Highgate Road £ 158,0000.08 KM
106 Highgate Road £ 1,250,0000.08 KM
122b Highgate Road £ 287,0000.08 KM
108 Highgate Road £ 650,0000.08 KM