Southernhay, Staple Hill, Bristol
Hunters logo

Southernhay, Staple Hill, Bristol

By Hunters

£ 340,000

Reviews

3 out of 5 stars

Hunters says ..

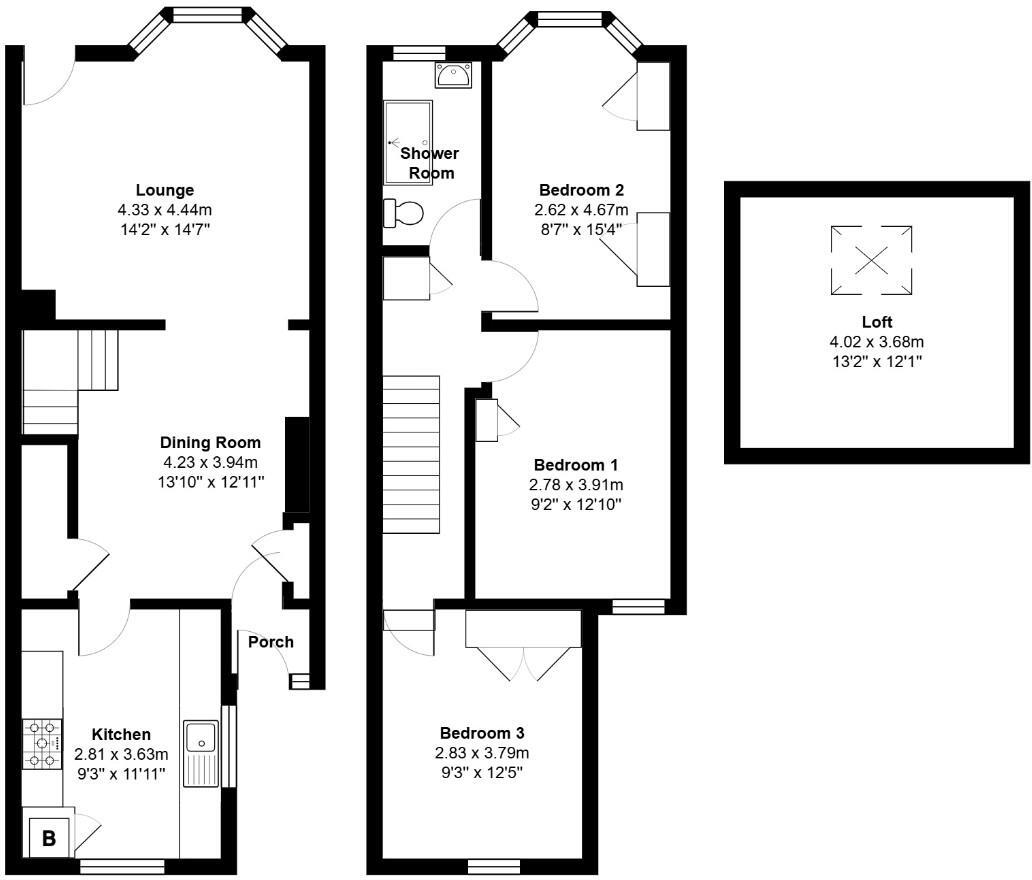
Nestled in the desirable area of Southernhay, Staple Hill, Bristol, this charming mid-terraced house from the 1900s offers a delightful blend of character and comfort. With its elevated position, the property boasts superb views that enhance the overall appeal of this lovely home. Inside, you wil...

Property Oracle says ..

The property is a three-bedroom terraced house located in Staple Hill, Bristol. It is listed for £340,000 by Hunters. The property benefits from a garden and is located within a reasonable distance of local schools and transportation links. However, the interior appears dated and in need of some renovation. The price is slightly above the average for the area, but this may be justified by the garden. Overall, the property offers potential but requires some investment to bring it up to modern standards.

Therefore, we give this property 6 / 10. *Disclaimer: This is our option and does constitute a recommendation or financial advice. Do your own research. *

Price
6
Condition
5
Location
7
Land
7
Bedrooms
3
Bathrooms
1

The heatmap indicates the level of crime in the area. The color of the heatmap indicates the crime severity and recency.

Metrics Year-on-Year

Average area value
329,278.00 £
Decreased by 6.43 %
from 351,894.00 £
Average area rental value
1,630.00 £/mo
Increased by 5.43 %
from 1,546.00 £/mo
Est rental Yield
5.94 %
Increased by 12.71 %
from 5.27 %
Crime Rate
4.00 %
Unchanged by 0.00 %
from 4.00 %

Agent Activity

  • Hunters created the listing.

Nearby Schools

NameTypeOfstedDistance
Staple Hill Children'S CentreChildren's Centre0.43 KM
Staple Hill Primary SchoolCommunity SchoolRequires improvement0.53 KM
Christ Church, Church Of England Junior School, DownendVoluntary Controlled SchoolGood0.56 KM
Pathways Learning CentrePupil Referral UnitGood0.74 KM
Minerva Primary AcademyAcademy Sponsor LedGood0.81 KM

Images

94d2f432-PXL_20260102_104653463.jpg c9ad346c-PXL_20260102_104930660.jpg ef488ac1-PXL_20260102_105114127.jpg da9e5439-PXL_20260102_105340960.jpg 48d22670-PXL_20260102_105357373.jpg 41c69a02-PXL_20260102_105718932.jpg 7b1f0e04-PXL_20260102_104359361.jpg bbc0a109-PXL_20260102_104449858.jpg 0a7facef-PXL_20260102_104506352.jpg fc551cd4-PXL_20260102_104811831.jpg 49590a34-PXL_20260102_105436159.jpg 86acb62b-PXL_20260102_105535452.jpg 5aa0e575-PXL_20260102_104413497.jpg 3f223fa9-PXL_20260102_104611802.jpg 93098ddc-PXL_20260102_104533085.jpg d584210b-PXL_20260102_104523026.jpg 14f1d49d-PXL_20260102_104546984.jpg 011429ba-PXL_20260102_104636789.jpg 2a3eeb5b-PXL_20260102_104757108.jpg 84a2ec97-PXL_20260102_104726267.jpg fcc42093-PXL_20260102_104741786.jpg b2d200ed-PXL_20260102_104850400.jpg 9b976f8e-PXL_20260102_104831246.jpg d1af9768-PXL_20260102_105058304.jpg 0a9082b8-PXL_20260102_105027724.jpg f5b48fe4-PXL_20260102_105730811.jpg ca5cfcd5-PXL_20260102_105504697.jpg 1fa339c5-PXL_20260102_105959662.jpg dd2c33a9-PXL_20260102_105451610.jpg e2fc416f-PXL_20260102_105549577.jpg af021c71-PXL_20260102_105412811.jpg

Nearby Streets

NameAverage PriceAverage SqftDistance
Acacia Avenue £ 000.00 KM
Midland Road £ 000.00 KM
Acacia Close £ 000.00 KM
Kendall Road £ 210,00000.00 KM
Thicket Road £ 000.00 KM

Nearby Transport

NameNLCTLCDistance
Bristol Parkway3230BPW5.01 KM
Stapleton Road3250SRD6.08 KM
Filton Abbey Wood3235FIT6.19 KM
Lawrence Hill3225LWH6.21 KM
Keynsham3237KYN7.11 KM

Nearby Listings

AddressPriceTypeScoreDistance
Southernhay, Staple Hill, Bristol £ 340,000BUY6 / 100.00 KM
Kensington Road, Staple Hill, Bristol £ 325,000BUY6 / 100.04 KM
Kensington Road, Staple Hill £ 340,000BUY7 / 100.07 KM
Kensington Road, Staple Hill £ 335,000BUY6 / 100.07 KM
Lower Station Road, Staple Hill £ 310,000BUY5 / 100.08 KM

Nearby Properties

AddressPriceDistance
23 Southernhay £ 316,0000.05 KM
19 Southernhay £ 184,0000.05 KM
15 Southernhay £ 257,0000.05 KM
17 Southernhay £ 225,0000.05 KM
43b Lower Station Road £ 130,0000.06 KM