Gibbs Gillespie says ..
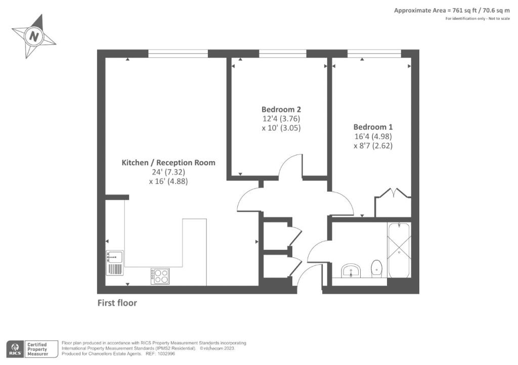
SHARED OWNERSHIP LISTING - 30% AVAILABLE SHARE Gibbs Gillespie are pleased to be showcasing this chain-free two double bedroom apartment, situated on the ever-popular Bentley Grove Estate. 30% Shared Ownership available. 100% Ownership also available. The property comprise...
Property Oracle says ..
This is a two-bedroom apartment located in Capel Crescent, Stanmore. The property is listed at a very attractive price of £97,500, significantly below the average property price in the area. The apartment appears to be in good condition, with modern fixtures and fittings. While the apartment doesn’t have a private garden, it benefits from communal green spaces. The location is a desirable suburban area with good schools and transport links. Overall, this property presents a potentially excellent opportunity for first-time buyers or investors.
Therefore, we give this property 7 / 10. *Disclaimer: This is our option and does constitute a recommendation or financial advice. Do your own research. *
- Price
- 9
- Condition
- 7
- Location
- 7
- Land
- 5
- Bedrooms
- 2
- Bathrooms
- 1
The heatmap indicates the level of crime in the area. The color of the heatmap indicates the crime severity and recency.
Metrics Year-on-Year
- Average area value
- 625,703.00 £Decreased by 3.61 %
- Average area rental value
- 2,383.00 £/moDecreased by 5.55 %
- Est rental Yield
- 4.57 %Decreased by 1.93 %
- Crime Rate
- 14.00 %Unchanged by 0.00 %
Agent Activity
Gibbs Gillespie created the listing.
Nearby Schools
| Name | Type | Ofsted | Distance |
|---|---|---|---|
| St John'S Cofe School | Voluntary Aided School | Good | 1.07 KM |
| Stanmore Park | Children's Centre Linked Site | 1.74 KM | |
| Immanuel College | Other Independent School | 1.91 KM | |
| Bentley Wood High School | Academy Converter | Outstanding | 1.94 KM |
| Avanti House Primary School | Free Schools | Good | 1.97 KM |
Images
Nearby Streets
| Name | Average Price | Average Sqft | Distance |
|---|---|---|---|
| Priory Close | £ 2,500,000 | 0 | 0.00 KM |
| Holland Close | £ 1,416,667 | 0 | 0.00 KM |
| Linden Close | £ 1,650,000 | 0 | 0.00 KM |
| Elizabeth Grove | £ 1,923,333 | 0 | 0.00 KM |
| Ray Gardens | £ 350,000 | 0 | 0.00 KM |
Nearby Transport
| Name | NLC | TLC | Distance |
|---|---|---|---|
| Harrow And Wealdstone | 1397 | HRW | 4.52 KM |
| Headstone Lane | 1434 | HDL | 5.07 KM |
| Elstree And Borehamwood | 1542 | ELS | 5.17 KM |
| Kenton | 1399 | KNT | 5.43 KM |
| Hatch End | 1398 | HTE | 5.77 KM |
Nearby Listings
| Address | Price | Type | Score | Distance |
|---|---|---|---|---|
| Capel Crescent, Stanmore | £ 97,500 | BUY | 7 / 10 | 0.00 KM |
| Capel Crescent, Stanmore, London, HA7 | £ 140,000 | BUY | 6 / 10 | 0.00 KM |
| Capel Crescent, Stanmore, Middlesex | £ 140,000 | BUY | 5 / 10 | 0.00 KM |
| Capel Crescent, Stanmore, Middlesex | £ 355,000 | BUY | 5 / 10 | 0.00 KM |
| Capel Crescent, Stanmore, HA7 | £ 350,000 | BUY | 6 / 10 | 0.03 KM |
Nearby Properties
| Address | Price | Distance |
|---|---|---|
| 1 Capel Crescent | £ 399,950 | 0.05 KM |
| 2 Capel Crescent | £ 369,950 | 0.05 KM |
| 2 Myddleton Close | £ 1,110,000 | 0.17 KM |
| 1 Myddleton Close | £ 589,950 | 0.17 KM |
| 5 Myddleton Close | £ 782,500 | 0.18 KM |