Nested says ..
Nestled in a quiet and well-connected location, this delightful three-bedroom home offers generous living space.
Property Oracle says ..
Therefore, we give this property 6 / 10. *Disclaimer: This is our option and does constitute a recommendation or financial advice. Do your own research. *
- Price
- 5
- Condition
- 7
- Location
- 8
- Land
- 7
- Bedrooms
- 3
- Bathrooms
- 2
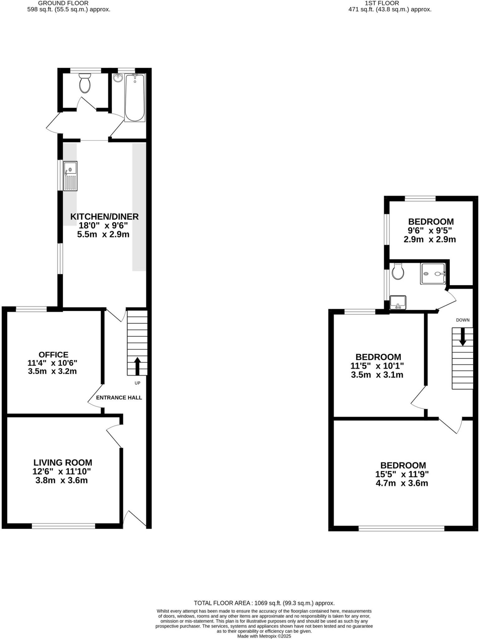
- Sqft (est)
- 825.00
The heatmap indicates the level of crime in the area. The color of the heatmap indicates the crime severity and recency.
Metrics Year-on-Year
- Average area value
- 500,000.00 £Decreased by 20.05 %
- Est sale value
- 628,650.00 £Increased by 0.53 %
- Average area rental value
- 2,149.00 £/moIncreased by 11.93 %
- Est letting value
- 2,475.00 £/moIncreased by 50.00 %
- Est rental Yield
- 5.16 %Increased by 40.22 %
- Crime Rate
- 3.00 %Unchanged by 0.00 %
from 625,401.00 £
from 625,350.00 £
from 1,920.00 £/mo
from 1,650.00 £/mo
from 3.68 %
from 3.00 %
Agent Activity
Nested created the listing.
Nearby Schools
| Name | Type | Ofsted | Distance |
|---|---|---|---|
| Church Hill Nursery School | Local Authority Nursery School | Outstanding | 0.69 KM |
| Walthamstow East Children Centre | Children's Centre | 0.71 KM | |
| Walthamstow School For Girls | Community School | Outstanding | 0.76 KM |
| Leyton Children'S Centre | Children's Centre | 0.79 KM | |
| Belmont Park School | Community Special School | Good | 0.83 KM |
Images
Nearby Streets
| Name | Average Price | Average Sqft | Distance |
|---|---|---|---|
| Shaftesbury Road | £ 0 | 0 | 0.00 KM |
| Granville Road | £ 497,308 | 0 | 0.00 KM |
| Stanhope Road | £ 430,000 | 0 | 0.00 KM |
| The Driveway | £ 0 | 0 | 0.00 KM |
| Pembroke Road | £ 1,191,667 | 0 | 0.00 KM |
Nearby Transport
| Name | NLC | TLC | Distance |
|---|---|---|---|
| Walthamstow Central | 6953 | WHC | 0.70 KM |
| Walthamstow Queen'S Road | 7407 | WMW | 1.01 KM |
| Leyton Midland Road | 7402 | LEM | 1.26 KM |
| Wood Street | 6954 | WST | 1.67 KM |
| St James Street | 6973 | SJS | 1.98 KM |
Nearby Listings
| Address | Price | Type | Score | Distance |
|---|---|---|---|---|
| Grove Road, London, E17 | £ 775,000 | BUY | 6 / 10 | 0.00 KM |
| Grove Road, Walthamstow, London, E17 | £ 375,000 | BUY | 5 / 10 | 0.04 KM |
| Grove Road, Walthamstow, London, E17 | £ 330,000 | BUY | 5 / 10 | 0.05 KM |
| Pendlestone Road, Wathamstow | £ 1,100,000 | BUY | 7 / 10 | 0.06 KM |
| Grove Road, Walthamstow | £ 475,000 | BUY | 5 / 10 | 0.07 KM |
Nearby Properties
| Address | Price | Distance |
|---|---|---|
| 19 Grove Road | £ 344,000 | 0.04 KM |
| 63a Grove Road | £ 185,000 | 0.04 KM |
| 45 Grove Road | £ 666,000 | 0.04 KM |
| 1 Grove Road | £ 64,534 | 0.04 KM |
| 61 Grove Road | £ 250,000 | 0.04 KM |