Cedar Avenue, Alsager
CH

Cedar Avenue, Alsager

By Chris Hamriding Lettings & Estates

£ 265,000

Reviews

3 out of 5 stars

Chris Hamriding Lettings & Estates says ..

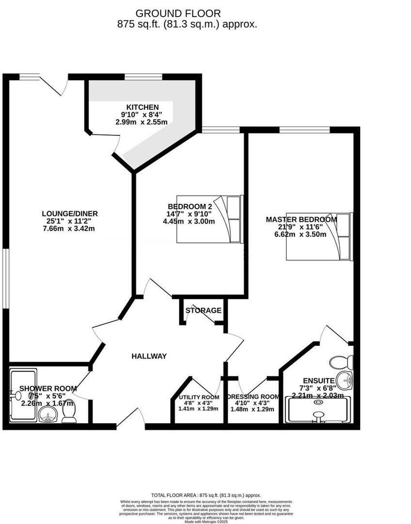
GROUND FLOOR, TWO DOUBLE BEDROOM APARTMENT WITH PARKING SPACE - Constructed by McCarthy & Stone, Chris Hamriding estate agents are delighted to present, 'The Oaks' - An exclusively designed development for the over 60’s, comprising of both one and two bedroom retirement apartments, the developmen...

Property Oracle says ..

This is a two-bedroom retirement property located on Cedar Avenue, Alsager. The property is in good condition and benefits from modern fixtures and fittings. It is located in a desirable area, close to local amenities and transport links. The property is slightly overpriced compared to other properties in the area.

Therefore, we give this property 6 / 10. *Disclaimer: This is our option and does constitute a recommendation or financial advice. Do your own research. *

Price
6
Condition
8
Location
7
Land
4
Bedrooms
2
Bathrooms
2
Sqft (est)
875.11

The heatmap indicates the level of crime in the area. The color of the heatmap indicates the crime severity and recency.

Metrics Year-on-Year

Average area value
220,900.00 £
Decreased by 29.15 %
from 311,779.00 £
Est sale value
182,022.88 £
Decreased by 24.91 %
from 242,405.47 £
Average area rental value
1,048.00 £/mo
Decreased by 5.76 %
from 1,112.00 £/mo
Est letting value
0.00 £/mo
from 0.00 £/mo
Est rental Yield
5.69 %
Increased by 32.94 %
from 4.28 %
Crime Rate
6.00 %
Unchanged by 0.00 %
from 6.00 %

Agent Activity

  • Chris Hamriding Lettings & Estates created the listing.

Nearby Schools

NameTypeOfstedDistance
St Gabriel'S Catholic Primary SchoolVoluntary Aided SchoolOutstanding0.19 KM
Alsager Highfields Community Primary SchoolAcademy Sponsor Led0.68 KM
Sandbach Children'S Centre -Alsager SiteChildren's Centre Linked Site0.86 KM
Alsager SchoolAcademy ConverterOutstanding1.23 KM
Pikemere SchoolAcademy Converter1.63 KM

Images

Sandbach Template.00_00_35_24.Still153.jpg DSC_3152-DSC_3156.jpg DSC_3132-DSC_3136.jpg DSC_3127-DSC_3131.jpg DSC_3137-DSC_3141.jpg WXZ9fh7W4kSjnHfHNCqZuA.jpg GWU0jXOKCkqyez2_96IYbg.jpg 61DCgseLmEKzw5BdMIQMvw.jpg VEymT_6S4kq5xNcSaMUr5Q.jpg DSC_3142-DSC_3146.jpg DSC_3147-DSC_3151.jpg DSC_3157-DSC_3161.jpg ISPwz0zgnkG0bwD7g700GA.jpg cm9Kp8TeZkmrE2BoNURfSA.jpg y0CcISkVDUOuTc4bGiWVlA.jpg Zn4zzxH_N0GwrTUUD8RkyQ.jpg 4h2dvdMuIU2QAr3FfkYo7g.jpg qzeETkf9J0K63EG_wPVzAQ.jpg RcCMVDP-fkm0_TshS8v-Pg.jpg

Nearby Streets

NameAverage PriceAverage SqftDistance
Chancery Lane £ 481,66700.00 KM
Blenheim Court £ 000.00 KM
Nightingale Way £ 000.00 KM
Beechwood Drive £ 775,00000.00 KM
Brookfield Drive £ 000.00 KM

Nearby Transport

NameNLCTLCDistance
Alsager1223ASG1.05 KM
Kidsgrove1229KDG7.09 KM

Nearby Listings

AddressPriceTypeScoreDistance
Cedar Avenue, Alsager £ 265,000BUY6 / 100.00 KM
Cedar Avenue, Alsager £ 270,000BUY7 / 100.02 KM
Cedar Avenue, Alsager £ 240,000BUY6 / 100.05 KM
Cedar Avenue, Alsager, Cheshire £ 300,000BUYUnknown0.08 KM
Well Lane, Alsager £ 325,000BUY7 / 100.11 KM

Nearby Properties

AddressPriceDistance
60 Station Road £ 298,0000.11 KM
38 Station Road £ 387,0000.11 KM
34 Station Road £ 299,9500.12 KM
63 Station Road £ 59,0000.12 KM
78a Station Road £ 492,0000.12 KM