haart says ..
Located on the top part of Biggin Hill is this three bedroom detached bungalow, the property offers so much space in and out and will surprise you from start to finish, call now to be blown away
Property Oracle says ..
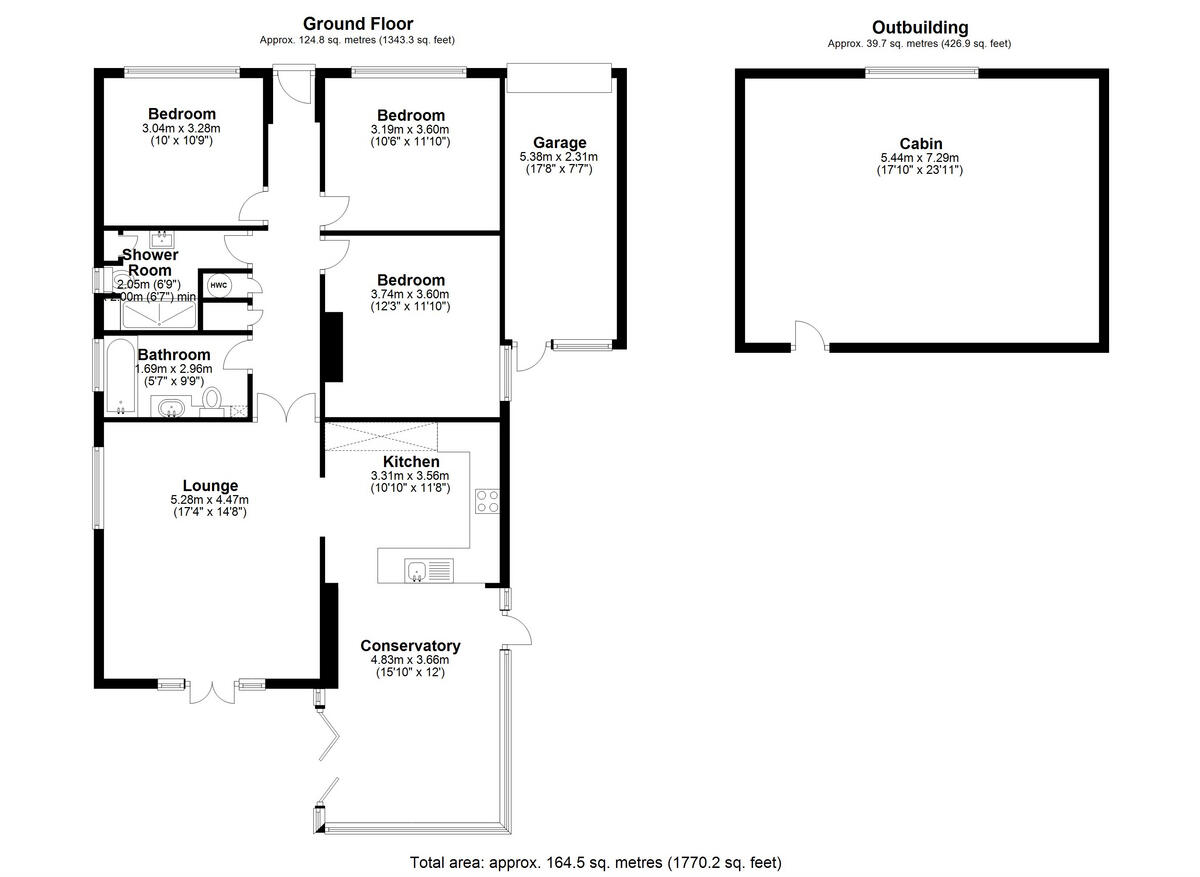
This three-bedroom detached bungalow is located in Biggin Hill, Bromley, in the London Borough of Greater London. The property benefits from a large plot size of 1,770.20 sqft and appears to be in good condition based on the provided photographs. The kitchen and conservatory are modern and well-maintained, and the property includes a garden. The location is desirable, with nearby schools rated as “Good” by Ofsted and relatively easy access to several train stations. However, the lack of square footage information for the property itself makes it difficult to assess the price per square foot and definitively comment on the overall value. Additional information regarding the property’s square footage would be beneficial for a comprehensive evaluation.
Therefore, we give this property 7 / 10. *Disclaimer: This is our option and does constitute a recommendation or financial advice. Do your own research. *
- Price
- 6
- Condition
- 8
- Location
- 7
- Land
- 9
- Bedrooms
- 3
- Bathrooms
- 2
- Lot (est)
- 1,770.20
The heatmap indicates the level of crime in the area. The color of the heatmap indicates the crime severity and recency.
Metrics Year-on-Year
- Average area value
- 770,000.00 £Increased by 1.19 %
- Average area rental value
- 1,713.00 £/moDecreased by 7.36 %
- Est rental Yield
- 2.67 %Decreased by 8.56 %
- Crime Rate
- 5.00 %Unchanged by 0.00 %
Agent Activity
haart marked this listing as sold.
haart created the listing.
Nearby Schools
| Name | Type | Ofsted | Distance |
|---|---|---|---|
| Charles Darwin School | Academy Converter | Good | 1.12 KM |
| Biggin Hill Primary School | Academy Converter | Good | 1.14 KM |
| Cudham Church Of England Primary School | Academy Converter | Good | 1.55 KM |
| Biggin Hill Children And Family Centre | Children's Centre | 1.90 KM | |
| Oaklands Primary Academy | Academy Converter | Good | 2.44 KM |
Images
Nearby Streets
| Name | Average Price | Average Sqft | Distance |
|---|---|---|---|
| Woodbury Close | £ 0 | 0 | 0.00 KM |
| Clarence Road | £ 0 | 0 | 0.00 KM |
| Avenue Road | £ 900,000 | 0 | 0.00 KM |
| Hillside Road | £ 950,000 | 0 | 0.00 KM |
| Manor Road | £ 895,000 | 0 | 0.00 KM |
Nearby Transport
| Name | NLC | TLC | Distance |
|---|---|---|---|
| Oxted | 5377 | OXT | 7.59 KM |
| Hurst Green | 5463 | HUR | 8.13 KM |
| Hayes | 5050 | HYS | 8.74 KM |
| Orpington | 5122 | ORP | 9.03 KM |
| Chelsfield | 5098 | CLD | 9.12 KM |
Nearby Listings
| Address | Price | Type | Score | Distance |
|---|---|---|---|---|
| St Winifreds Road, Biggin Hill | £ 700,000 | BUY | 7 / 10 | 0.00 KM |
| St. Winifreds Road, Biggin Hill, Kent, TN16 | £ 575,000 | BUY | 6 / 10 | 0.05 KM |
| St. Winifreds Road, Biggin Hill, Westerham | £ 575,000 | BUY | Unknown | 0.06 KM |
| Belvedere Road, Westerham, TN16 | £ 675,000 | BUY | 7 / 10 | 0.13 KM |
| Main Road, Biggin Hill | £ 700,000 | BUY | 8 / 10 | 0.17 KM |
Nearby Properties
| Address | Price | Distance |
|---|---|---|
| 23 St Winifreds Road | £ 430,000 | 0.06 KM |
| 41 St Winifreds Road | £ 300,000 | 0.06 KM |
| 34 St Winifreds Road | £ 575,000 | 0.06 KM |
| 28 St Winifreds Road | £ 395,000 | 0.06 KM |
| 36 St Winifreds Road | £ 361,000 | 0.07 KM |