Ladbroke Road, Horley, Surrey, RH6
By Mayhew Estates
£ 450,000
Reviews
3 out of 5 stars
Mayhew Estates says ..
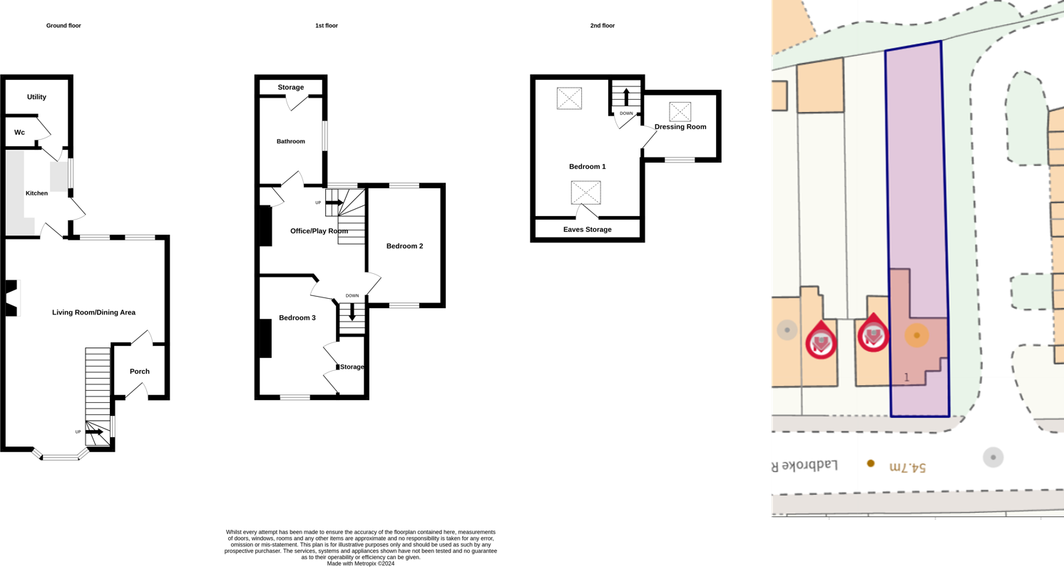
OFFERED TO THE MARKET ON A PRICE GUIDE OF £450,000 - £475,000. CHAIN FREE. A large three double bedroom semi-detached family home with a generous rear garden and within walking distance of Horley town centre and train station.
Property Oracle says ..
This three-bedroom, two-bathroom semi-detached house in Horley, Surrey, is presented as a family home. The property’s location is convenient, with proximity to Horley town centre, the train station, and highly-rated schools, making it potentially attractive to families. The provided photographs showcase a well-maintained interior, though some aspects show age that might need updating to enhance its modern appeal. The kitchen seems functional. The garden offers additional living space, while its size remains undetermined based on provided information. The absence of precise square footage data for the subject property and nearby comparables makes it difficult to definitively assess its value against similar properties. However, considering similar homes on Ladbroke road having a price guide of £450,000 - £475,000 suggests that the asking price may be in line with the market value, but a more specific valuation would require more detailed information on the property’s dimensions and a thorough survey. The property offers a potential for value addition based on upgrades and renovations. Considering the potential of the location combined with the potential for increased value through improvements, this property may prove to be an attractive purchase for buyers within their given price range. However, potential buyers should undertake a detailed survey of the property before completing a purchase.
Therefore, we give this property 6 / 10. *Disclaimer: This is our option and does constitute a recommendation or financial advice. Do your own research. *
- Price
- 7
- Condition
- 6
- Location
- 7
- Land
- 5
- Bedrooms
- 3
- Bathrooms
- 2
- Sqft (est)
- 1,000.00
The heatmap indicates the level of crime in the area. The color of the heatmap indicates the crime severity and recency.
Metrics Year-on-Year
- Average area value
- 599,545.00 £Increased by 35.17 %
- Est sale value
- 503,000.00 £Increased by 19.76 %
- Average area rental value
- 1,964.00 £/moIncreased by 8.15 %
- Est letting value
- 1,000.00 £/moUnchanged by 0.00 %
- Est rental Yield
- 3.93 %Decreased by 19.96 %
- Crime Rate
- 15.00 %Unchanged by 0.00 %
Agent Activity
Mayhew Estates created the listing.
Nearby Schools
| Name | Type | Ofsted | Distance |
|---|---|---|---|
| Yattendon School | Foundation School | Good | 0.51 KM |
| Horley Infant School | Community School | Good | 0.78 KM |
| Horley Community Sure Start Children'S Centre | Children's Centre | 0.89 KM | |
| Meath Green Infant School | Community School | Outstanding | 0.93 KM |
| Langshott Primary School | Community School | Good | 1.13 KM |
Images
Nearby Streets
| Name | Average Price | Average Sqft | Distance |
|---|---|---|---|
| Oakwood Road | £ 500,000 | 0 | 0.00 KM |
| Elm Tree Close | £ 331,667 | 0 | 0.00 KM |
| Larksfield | £ 550,000 | 0 | 0.00 KM |
| Birchwood Close | £ 0 | 0 | 0.00 KM |
| Mallard Close | £ 550,000 | 0 | 0.00 KM |
Nearby Transport
| Name | NLC | TLC | Distance |
|---|---|---|---|
| Horley | 5365 | HOR | 1.40 KM |
| Salfords (Surrey) | 5380 | SAF | 2.28 KM |
| Gatwick Airport | 5416 | GTW | 2.76 KM |
| Earlswood (Surrey) | 5414 | ELD | 5.22 KM |
| Nutfield | 5476 | NUF | 6.03 KM |
Nearby Listings
| Address | Price | Type | Score | Distance |
|---|---|---|---|---|
| Ladbroke Road, Horley, Surrey, RH6 | £ 435,000 | BUY | 6 / 10 | 0.04 KM |
| The Bungalow, Ladbroke Road, Horley, RH6 | £ 450,000 | BUY | 7 / 10 | 0.04 KM |
| Cranbourne Close, Horley, Surrey, RH6 | £ 325,000 | BUY | 6 / 10 | 0.08 KM |
| The Chestnuts, Horley, Surrey, RH6 | £ 240,000 | BUY | 7 / 10 | 0.10 KM |
| Chestnut Road, Horley, Surrey, RH6 | £ 450,000 | BUY | 8 / 10 | 0.11 KM |
Nearby Properties
| Address | Price | Distance |
|---|---|---|
| The Cottage | £ 347,500 | 0.04 KM |
| Fern Cottage | £ 325,000 | 0.04 KM |
| 8 Ladbroke Road | £ 248,000 | 0.04 KM |
| Crondall | £ 380,000 | 0.04 KM |
| 3 Ladbroke Road | £ 275,000 | 0.04 KM |