Downhills Park Road, London, N17
By Winkworth
£ 445,000
Reviews
3 out of 5 stars
Winkworth says ..
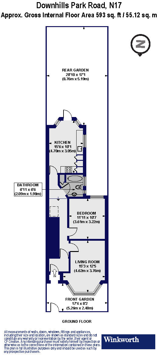
A beautifully presented one-bedroom ground-floor garden flat set within an attractive Victorian terrace, moments from Downhills Park and excellent transport links. Sole Agent
Property Oracle says ..
This one bedroom apartment is located in Downhills Park Road, London, N17. The property is well presented and benefits from a recently modernised kitchen and bathroom. The apartment is situated close to local amenities and transport links, including several primary schools which are within walking distance. The property also benefits from a private rear garden. While the average price per square foot in the area is £725, this apartment is listed at a price that is significantly below average for the area. This may be due to the smaller size of the property compared to the average. However, given the location, condition and the inclusion of a private garden, the asking price appears reasonable.
Therefore, we give this property 7 / 10. *Disclaimer: This is our option and does constitute a recommendation or financial advice. Do your own research. *
- Price
- 7
- Condition
- 8
- Location
- 9
- Land
- 7
- Bedrooms
- 1
- Bathrooms
- 1
- Sqft (est)
- 613.54
The heatmap indicates the level of crime in the area. The color of the heatmap indicates the crime severity and recency.
Metrics Year-on-Year
- Average area value
- 517,500.00 £Decreased by 2.69 %
- Est sale value
- 288,977.34 £Decreased by 37.53 %
- Average area rental value
- 2,820.00 £/moIncreased by 42.71 %
- Est letting value
- 1,227.08 £/moUnchanged by 0.00 %
- Est rental Yield
- 6.54 %Increased by 46.64 %
- Crime Rate
- 1.00 %Unchanged by 0.00 %
Agent Activity
Winkworth created the listing.
Nearby Schools
| Name | Type | Ofsted | Distance |
|---|---|---|---|
| Belmont Junior School | Community School | Outstanding | 0.18 KM |
| Belmont Infant School | Community School | Good | 0.18 KM |
| The Grove | Free Schools Special | 0.19 KM | |
| Park View School | Community School | Good | 0.52 KM |
| West Green Primary School | Community School | Good | 0.63 KM |
Images
Nearby Streets
| Name | Average Price | Average Sqft | Distance |
|---|---|---|---|
| Anstey Walk | £ 0 | 0 | 0.00 KM |
| Mosaic Circle | £ 0 | 0 | 0.00 KM |
| Penniston Close | £ 635,714 | 0 | 0.00 KM |
| Park Road | £ 360,000 | 0 | 0.00 KM |
| Colina Mews | £ 0 | 0 | 0.00 KM |
Nearby Transport
| Name | NLC | TLC | Distance |
|---|---|---|---|
| Harringay Green Lanes | 7401 | HRY | 1.56 KM |
| Harringay | 6012 | HGY | 1.92 KM |
| Hornsey | 6015 | HRN | 2.05 KM |
| Seven Sisters | 6931 | SVS | 2.25 KM |
| Stamford Hill | 6968 | SMH | 2.61 KM |
Nearby Listings
| Address | Price | Type | Score | Distance |
|---|---|---|---|---|
| Downhills Park Road, London, N17 | £ 445,000 | BUY | 7 / 10 | 0.00 KM |
| Downhills Park Road, London, N17 | £ 995,000 | BUY | 6 / 10 | 0.03 KM |
| Belmont Avenue, London, N17 | £ 450,000 | BUY | 8 / 10 | 0.08 KM |
| Crossfield Road, London, N17 | £ 415,000 | BUY | Unknown | 0.08 KM |
| Belmont Avenue, London | £ 700,000 | BUY | 6 / 10 | 0.09 KM |
Nearby Properties
| Address | Price | Distance |
|---|---|---|
| 81 Downhills Park Road | £ 450,000 | 0.01 KM |
| 73 Downhills Park Road | £ 179,000 | 0.01 KM |
| 77 Downhills Park Road | £ 193,000 | 0.01 KM |
| 75 Downhills Park Road | £ 800,000 | 0.01 KM |
| 83 Downhills Park Road | £ 147,000 | 0.01 KM |