MC
Byrness, Newcastle Upon Tyne, NE5
By McGowan Housing
£ 110,000
Reviews
2 out of 5 stars
McGowan Housing says ..
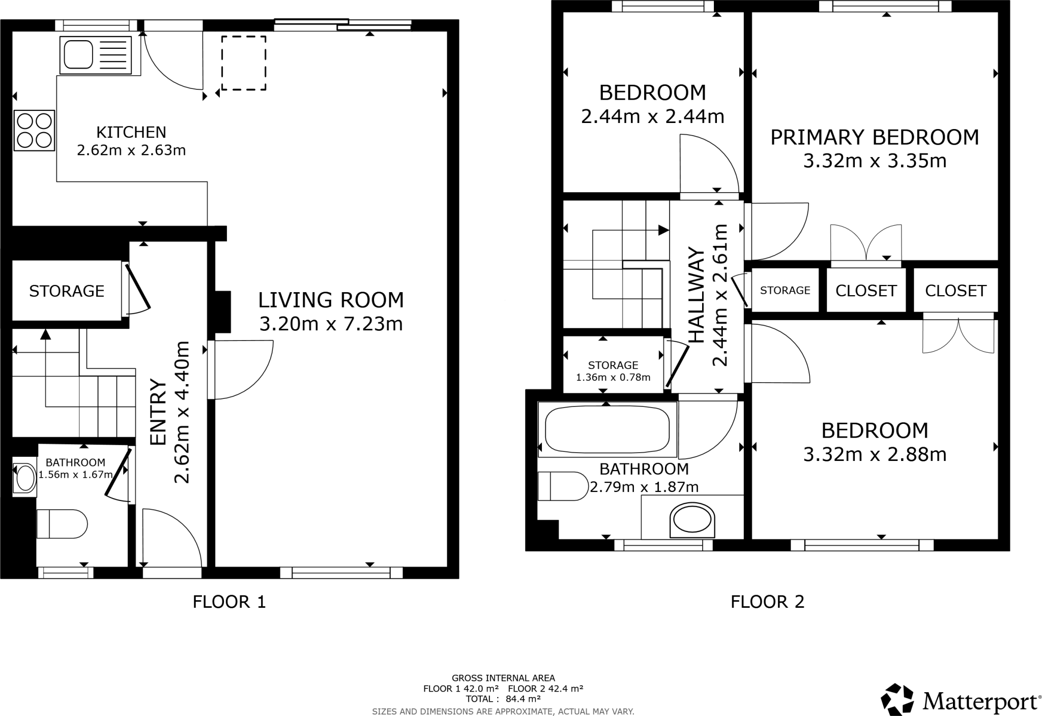
Buy-to-Let Opportunity | Tenants Currently Situated | 3 bedroom Mid-Terrace House |Good Condition | Spacious Lounge | Communal Private Parking | Private Front and Rear Gardens | Easy Access to Local Amenities | Prime Rental Location- Newcastle Upon Tyne
Property Oracle says ..
Therefore, we give this property 5 / 10. *Disclaimer: This is our option and does constitute a recommendation or financial advice. Do your own research. *
- Price
- 9
- Condition
- 6
- Location
- 7
- Land
- 1
- Bedrooms
- 3
- Bathrooms
- 2
- Sqft (est)
- 898.35
The heatmap indicates the level of crime in the area. The color of the heatmap indicates the crime severity and recency.
Metrics Year-on-Year
- Average area value
- 680,998.00 £Decreased by 7.75 %
- Est sale value
- 480,617.25 £Increased by 80.13 %
- Average area rental value
- 1,898.00 £/moDecreased by 25.22 %
- Est letting value
- 898.35 £/moUnchanged by 0.00 %
- Est rental Yield
- 3.34 %Decreased by 19.13 %
- Crime Rate
- 14.00 %Unchanged by 0.00 %
from 738,203.00 £
from 266,809.95 £
from 2,538.00 £/mo
from 898.35 £/mo
from 4.13 %
from 14.00 %
Agent Activity
McGowan Housing created the listing.
Nearby Schools
| Name | Type | Ofsted | Distance |
|---|---|---|---|
| Studio West | Studio Schools | Good | 0.45 KM |
| Mary Astell Academy | Academy Alternative Provision Sponsor Led | 0.57 KM | |
| Thomas Bewick School | Academy Special Converter | 0.57 KM | |
| Beech Hill Primary School | Academy Converter | 0.65 KM | |
| Broadwood Primary School | Foundation School | Requires improvement | 1.16 KM |
Images
Nearby Streets
| Name | Average Price | Average Sqft | Distance |
|---|---|---|---|
| Howick Drive | £ 178,662 | 0 | 0.00 KM |
| Belsay Lane | £ 114,995 | 0 | 0.00 KM |
| Chatton Grove | £ 0 | 0 | 0.00 KM |
| Lindisfarne Close | £ 50,000 | 0 | 0.00 KM |
| Hotch Pudding Place | £ 0 | 0 | 0.00 KM |
Nearby Transport
| Name | NLC | TLC | Distance |
|---|---|---|---|
| Blaydon | 7503 | BLO | 3.29 KM |
| Metrocentre | 7725 | MCE | 4.92 KM |
| Dunston | 7744 | DOT | 7.52 KM |
| Newcastle | 7728 | NCL | 9.10 KM |
Nearby Listings
| Address | Price | Type | Score | Distance |
|---|---|---|---|---|
| Byrness, Newcastle Upon Tyne, NE5 | £ 110,000 | BUY | 5 / 10 | 0.00 KM |
| Howick Drive, Newcastle Upon Tyne, NE5 | £ 175,000 | BUY | Unknown | 0.09 KM |
| Byrness, Newcastle upon Tyne, Tyne and Wear, NE5 | £ 89,950 | BUY | 7 / 10 | 0.09 KM |
| Chatton Grove, Newcastle Upon Tyne, NE5 | £ 83,250 | BUY | 7 / 10 | 0.11 KM |
| Chatton Grove, Newcastle upon Tyne, Tyne and Wear, NE5 | £ 170,000 | BUY | 7 / 10 | 0.14 KM |
Nearby Properties
| Address | Price | Distance |
|---|---|---|
| 30 Byrness | £ 96,000 | 0.11 KM |
| 20 Byrness | £ 100,000 | 0.11 KM |
| 32 Byrness | £ 127,000 | 0.11 KM |
| 22 Byrness | £ 79,000 | 0.11 KM |
| 24 Byrness | £ 114,000 | 0.11 KM |