Francisan Road, Tooting
By Next Step Estates (South West) Ltd
£ 600,000
Reviews
2 out of 5 stars
Next Step Estates (South West) Ltd says ..
**Cash Buyers Only** **In Need of Modernisation** **Tenants in Situ** Please be advised This property is being sold with tenants in situ. Prospective buyers should note that the property is being sold without vacant possession. Buyers will assume responsibility for the existing (cont.)
Property Oracle says ..
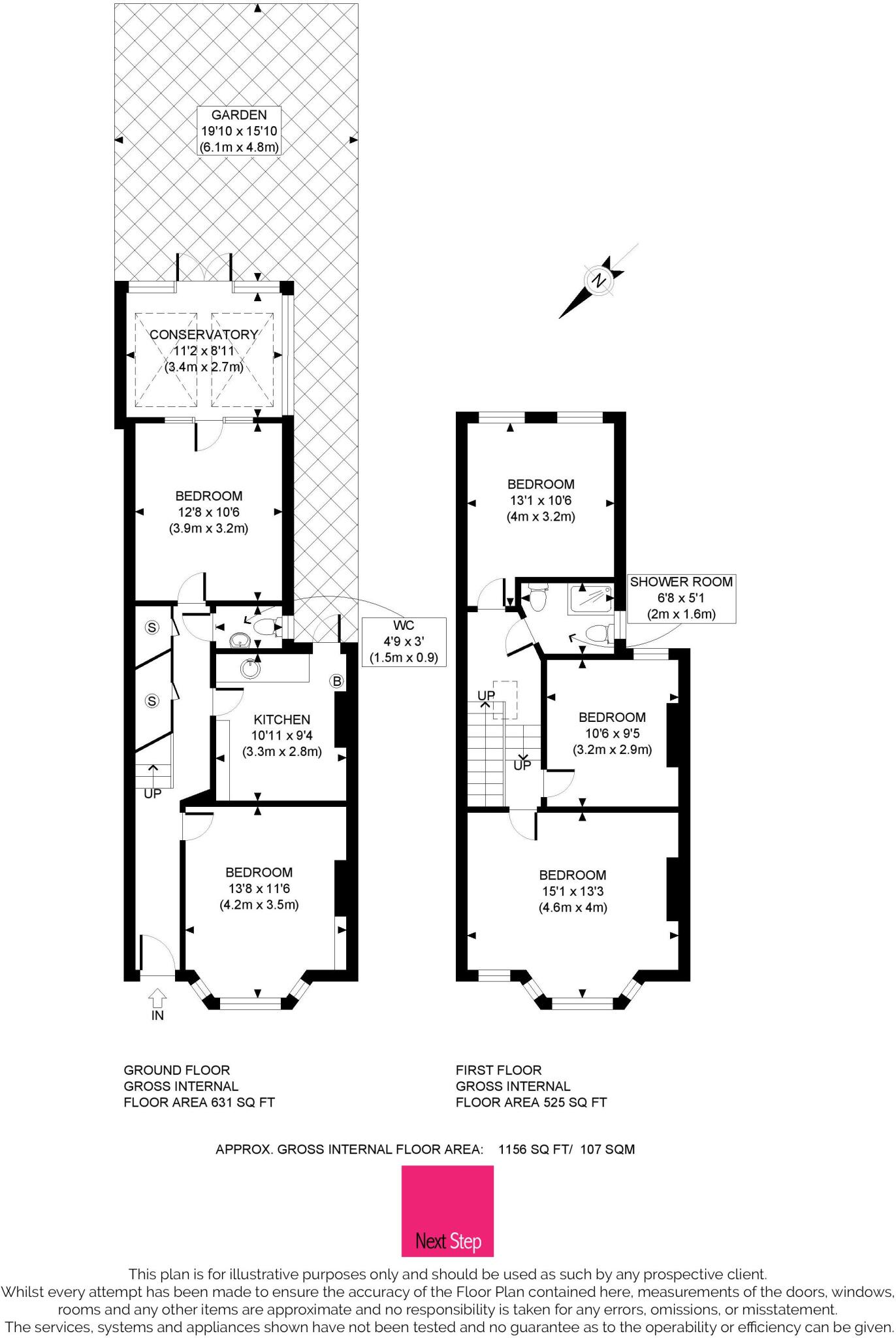
This property is a three-bedroom terraced house located on Franciscan Road in Tooting, South West London. The area benefits from being close to Tooting Broadway tube station (Northern Line) and several well-regarded primary schools, including Franciscan Primary School and Hillbrook School, both within a short walking distance. The property itself is in need of modernisation and some repairs. The kitchen and bathroom appear dated and require updating. While the property includes a small rear garden, it is currently overgrown and requires attention. The list price of £600,000 is slightly above the average price for the area (£582,591), but given the property’s size (1,151.74 sqft) and the need for renovation, it might be considered reasonably priced compared to similar properties in the area that are in better condition. However, the lack of plot size information in the listing makes a definitive conclusion difficult.
Therefore, we give this property 5 / 10. *Disclaimer: This is our option and does constitute a recommendation or financial advice. Do your own research. *
- Price
- 6
- Condition
- 4
- Location
- 8
- Land
- 3
- Bedrooms
- 3
- Bathrooms
- 1
- Sqft (est)
- 1,151.74
The heatmap indicates the level of crime in the area. The color of the heatmap indicates the crime severity and recency.
Metrics Year-on-Year
- Average area value
- 685,278.00 £Increased by 17.39 %
- Est sale value
- 642,670.92 £Decreased by 18.30 %
- Average area rental value
- 2,413.00 £/moDecreased by 6.91 %
- Est letting value
- 1,151.74 £/moDecreased by 66.67 %
- Est rental Yield
- 4.23 %Decreased by 20.64 %
- Crime Rate
- 8.00 %Unchanged by 0.00 %
Agent Activity
Next Step Estates (South West) Ltd created the listing.
Nearby Schools
| Name | Type | Ofsted | Distance |
|---|---|---|---|
| Franciscan Primary School | Academy Converter | 0.18 KM | |
| Hillbrook School | Foundation School | Outstanding | 0.22 KM |
| Franciscan Primary School And Children'S Centre | Children's Centre | 0.26 KM | |
| Tooting Primary School | Free Schools | Outstanding | 0.43 KM |
| Hillbrook Primary School And Centre For Childen & Families | Children's Centre | 0.47 KM |
Images
Nearby Streets
| Name | Average Price | Average Sqft | Distance |
|---|---|---|---|
| Bruce Hall Mews | £ 0 | 0 | 0.00 KM |
| Saint Benedict's Close | £ 335,000 | 0 | 0.00 KM |
| Topsham Road | £ 750,000 | 0 | 0.00 KM |
| Upper Tooting Road | £ 410,000 | 0 | 0.00 KM |
| St. Cyprians Street | £ 650,000 | 0 | 0.00 KM |
Nearby Transport
| Name | NLC | TLC | Distance |
|---|---|---|---|
| Tooting | 5389 | TOO | 1.03 KM |
| Balham | 5399 | BAL | 1.76 KM |
| Wandsworth Common | 5395 | WSW | 2.00 KM |
| Mitcham Eastfields | 5069 | MTC | 2.39 KM |
| Streatham Common | 5384 | SRC | 2.76 KM |
Nearby Listings
| Address | Price | Type | Score | Distance |
|---|---|---|---|---|
| Francisan Road, Tooting | £ 600,000 | BUY | 5 / 10 | 0.00 KM |
| Franciscan Road, London | £ 850,000 | BUY | 6 / 10 | 0.03 KM |
| Lessingham Avenue, Tooting | £ 675,000 | BUY | 6 / 10 | 0.04 KM |
| Coteford Street, Tooting | £ 850,000 | BUY | 8 / 10 | 0.07 KM |
| Lessingham Avenue, London, SW17 | £ 650,000 | BUY | 6 / 10 | 0.07 KM |
Nearby Properties
| Address | Price | Distance |
|---|---|---|
| 201 Franciscan Road | £ 585,000 | 0.03 KM |
| 211 Franciscan Road | £ 627,000 | 0.03 KM |
| 203 Franciscan Road | £ 465,000 | 0.03 KM |
| 199 Franciscan Road | £ 613,000 | 0.03 KM |
| 134 Franciscan Road | £ 640,000 | 0.06 KM |